隱於江畔的花園美墅
優雅不是要傳達低調
而是要到達人的內心深處
——克裏斯汀·拉克魯瓦
千載青林渡口,江畔雅舍閑庭
在寧波母親河姚江邊上,有一個千年渡口——青林渡,元代詩人張子淵有詩雲:“青林渡頭月影微,舍南雅陣歸提提。澄江入夜客喚渡,短艇剪燭閑裁詩。”
千載時光悠悠而過,如今在這裏,形成了一個風景優美的小區-青林灣,而本案就坐落於此。三層的聯排別墅,臨河而建,西麵就是花園和姚江水係,南北也各有一個花園,景觀資源十分出色。
設計師總是會從有缺陷的事物中發現美。原建築在結構上有一些瑕疵:首先是樓梯位置被安排在了入戶門的背後,進門就是一個大坑,存在安全隱患;其次是原建築的開間較窄且結構梁比較多,頂部視線淩亂。
但室內設計的精彩之處往往就在於能夠化腐朽為神奇,在FEN+的設計之下,這兩個原建築的瑕疵,成為了空間中最吸睛的亮點。
U型板的功能與藝術
首先,設計師在樓梯部分用白色的衝孔板做了一個U形的裝置,包裹內部的旋轉樓梯,這部樓梯就好像一個藝術裝置,瞬間提升了整套房子的格調。
更何況這種設計的應用並不僅僅為了美觀,它不僅解決了傳統扶手在這個地方無法消除人們恐懼的問題,規律布置的小孔也讓樓梯間的采光依舊充足且充滿著變化的趣味。
水利萬物,化於無形
其次,針對頂部橫梁的問題,設計師用折紙的概念設計了一個波浪形的吊頂,不僅完美地遮蓋了橫梁帶來的壓迫感和淩亂感,同時在寓意上與姚江共水,符合人們精神文化中水為財源的美好期望。
建築與基地間應當有著某種經驗上的聯係,一種形而上的聯係,一種詩意的連結!在景觀和采光部分,設計師將西邊開窗部分全部放大,采用落地玻璃,極大地增加了室內的采光。更重要的是,充分發掘了項目的景觀優勢,將公園的綠植和姚江的水景引入室內,讓室內空間與自然環境之間有了開放式地互動,讓整個家變得豐富、自然而靈動。
奢侈是舒適的,否則就不是奢侈。一層的布局南北通透,從南至北依次是玄關、客廳、餐廳和廚房。設計師因勢利導,讓原建築的地台很好地充當了區隔的角色。
中間東側靠牆是電梯的位置,和樓梯正對,垂直交通在臨近的平行線上,同時電梯廳旁邊就是一層的衛浴,使用非常方便,但由於開門方向朝東,所以被完美的隱藏在中部的圍合造型之中。
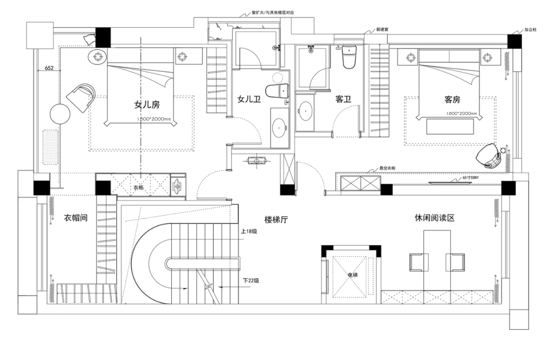
二層三層主要作為寢室使用。二層是女兒房和客房,在樓梯出口設計了一個休閑閱讀區,作為整個二層的公共區域,適合獨處時的放鬆和休閑。
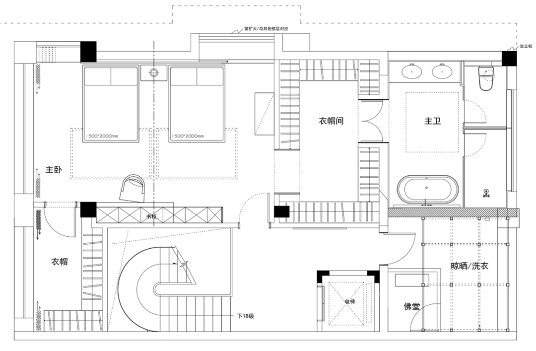
三樓整層作為主臥套房使用,並根據主人的生活習慣做了雙床設計。
室內的視覺主調延續了整個設計的格調,以原木和白色為主基調,頂部根據建築的形態設計了坡屋頂,在視線上更加的柔和多變,多麵的景觀窗讓這裏的視野更加開放,而兩個超大的衣帽間奢侈地滿足了兩位主人的衣物收納需求。
黑白線條與光影組合成極致簡約的衛生間,淋浴房和浴缸分立,高級且富有質感。
“白鳥回峰碧,青林渡水陰。荷輕初露墜,風定暗香侵。”王夫之一首《 夏夕·西清開一曲》用來描繪這套房子,再也合適不過。
∇ 一層平麵圖
∇ 二層平麵圖
∇ 三層平麵圖
項目信息
項目名稱 | 青林白鷺
項目地點 | 中國 寧波·青林灣
項目麵積 | 500㎡
設計單位 | FEN+DESIGN 張奇峰室內設計工作室
設計總監 | 張奇峰
設計團隊 | 沈璐 賴綺夢 梁燕華 楊櫻
園林設計 | 什物造園
主要建材 | 衝孔板、岩板、瓷磚、地板、木飾麵、塗料、家具
項目攝影 | 金像視覺









































