海德公園別墅位於一條繁忙的街道上,旨在最大限度地欣賞馬路對麵綠樹成蔭的海德公園和城市天際線,同時保持家庭的隱私。麵臨的挑戰是設計一個不試圖複製但具有現代感的住宅,以滿足家庭的需求並適合其街景,而不是強加於它,因為它將是兩層樓,鄰居是單層樓.
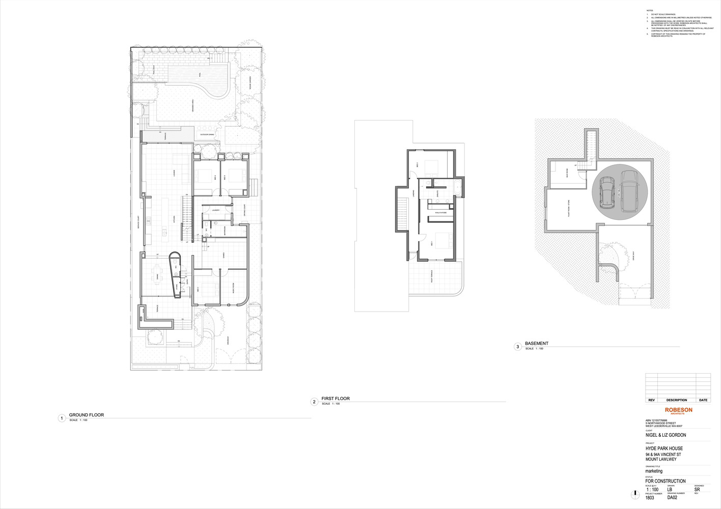
對場地、環境和簡報的概念性反應是將房屋縱向沿中間分開,東側位於自然地麵上,一樓在上,地下室用於停放汽車。這使建築能夠遵守物業的高度限製。在房子的西半部,設計師決定保留一層,並將其分配給生活區。設計師將這部分抬高到自然地麵以上 0.5 米,這為街道上的汽車和行人提供了隱私,這意味著設計師可以在生活區創造高而有趣的天花板高度和體積,同時仍然符合高度要求。
泳池甲板和泳池被抬高,因此當坐在泳池中時,可以直接透過客廳看到海德公園和更遠的綠樹成蔭的景色。高高的天花板和高大的玻璃窗讓這個機會甚至可以從街區的後角看到景色。升高水池也消除了對一層水池欄杆的需要,因為水池的高度有效地形成了這種屏障保護。池壁覆蓋著勃艮第的日本瓷磚,帶有嵌入式景觀照明,可在夜間照亮。CAPA 景觀設計師為前後花園區域提供了概念設計,包括彎曲的水池形狀,與直線形建築形式形成鮮明對比。
這個凸起的生活部分可以更好地觀察公園的樹木,同時阻擋繁忙的交通和停在下麵的汽車。在規劃階段,視線從街道上的行人和坐在餐桌旁的住戶的視線高度畫出,以確保起居部分被抬高到適當的高度以保護隱私。通往餐廳的全高 Vitrosca 玻璃隔斷,使餐廳能夠延伸到露台,形成一個更大的室內/室外房間,感覺外部但受到保護。餐廳朝南,可以看到風景,而休息室則位於客廳的另一端,房子的後部朝北。
版權聲明:本站所有文章除投稿授權發布外,其他文字內容均為原創,享有著作權保護,未經許可不得以任何形式進行轉載(包括且不限於:媒體、網站、公眾號等)。所有項目照片/設計圖形版權歸原作者所有。本站部分內容源自網絡公開資源或用戶分享,如若侵犯了原作者的合法權益,可聯係我們進行處理。


























