設計 Fonte das Perdizes 房屋是一個完全不同的挑戰,因為該項目需要一座現代形狀的房屋,完全融入阿連特茹粗獷的自然景觀。建造房子的正確地點是自然選擇的,因為它是唯一一個能讓房子在景觀中占據主導地位、與自然環境有最好的接觸並保護現有聖橡樹的地方。這種保存的樹木有助於塑造房屋的形狀,並有助於提高房屋麵積的價值,使它們更加融入土地。
自然色彩的使用對於這個項目的發展也是至關重要,它的色彩整合是使房子自然融入鄉村景觀的一個主要因素,所以我們傾向於使用與本土色彩相融合的材料,同時提供阿連特茹惡劣氣候所需的耐用性。帶有灰色和棕色顏料的彩色板岩的存在是指導材料選擇的關鍵顏色。
作為預選材料之一的混凝土,我們隻需將其顏色調整為所需的色調,即深灰色。另一方麵,為了搭配棕色,我們需要一種更溫暖的材料,我們選擇了鬆木,經過特殊處理,可以將其用於房屋的內部和外部,從而形成深灰色混凝土和深色絲質木材與建築的完美結合。
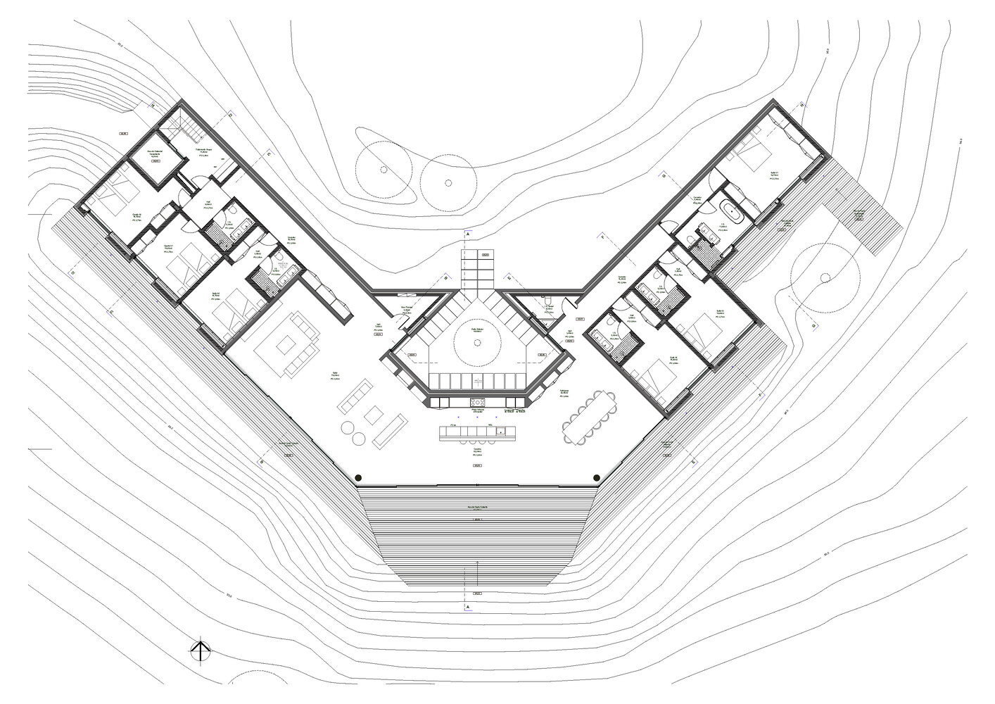
房屋形狀由 3 個 45 度體塊組成,遵循東西方向,將南北完全分開,有 47 米長、高 3.50 米的混凝土牆。房子的主入口被設置為通過一個小型私人庭院,以一棵古老的聖橡樹為標誌,作為整個項目的鉸鏈和平衡點。
一旦越過北麵屏障,房子就向阿連特茹景觀敞開,其 170 平方米的社交區域共用一個 35 米寬的窗戶,窗戶由 5 米懸臂混凝土懸挑保護,保護房子內部免受夏季酷熱的影響。
廚房位於房子的中間,將東側的用餐區與西側的起居區分開,並通向一個寬敞的露台。房子的私人部分位於東側和西側,可通過長長的走廊進入,走廊被兩扇房子入口門照亮,通向臥室。
房屋內部使用與外部相同的材料,盡可能減少項目的材料種類和配色方案,因此,牆壁、天花板和地板使用相同的外露深灰色混凝土,所有木製品都是旨在保持整個房屋特征的均勻建築語言,在牆麵覆層、室內門、3米高的旋轉門、衣櫃、浴室和廚房櫥櫃以及臥室百葉窗上使用相同的棕色鬆木。
∇ 平麵圖






































