洛杉磯Siena Way 上130㎡的別墅隱藏在 Bel Air 陡峭的山坡上,整體設計具有顯著的現代主義原則。自 2013 年以來,由於利益相關者和客戶利益的變化產生了三個完整的設計,該項目的主要目標從未改變,即:以優雅的方式解決場地的挑戰,盡管建築高度限製繁重,但仍提供足夠的麵積可用,並提供為未來的居民提供親密的家庭環境和廣泛的娛樂能力。
該項目位於貝萊爾,麵臨許多挑戰,包括場地的陡峭、狹窄的街道正麵、鄰居施加的建築高度限製以及車輛出入困難。通過遵循場地的自然輪廓,設計師最大化了計劃,將建築物拉入場地,並根據地形逐步增加體量。結果是一種不可定義的曲線形式,仍然在建築幾何學中抽象,但具有更加流暢和有機的形狀。
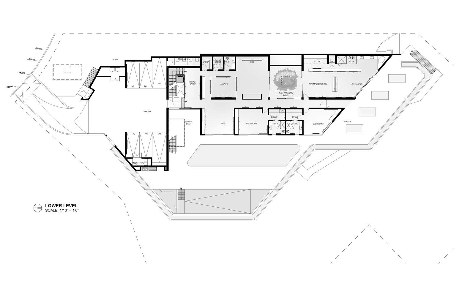
一個特定的一層以上的街區高度限製意味著設計師必須深入挖掘該地點,以挖掘所需的額外麵積。因此,挑戰在於將日光降低到較低的水平。兩座大型采光井,一座帶有巨大的樓梯和玻璃電梯,另一座用作下沉式庭院,有一棵雕塑橄欖樹,創造了所需的日光和通風,使較低的樓層令人愉悅、舒適。
庭院不僅提供采光,還為房屋中一些最常用的區域帶來自然,讓上層經常出入的區域可以體驗樹冠,下層可以體驗橄欖樹的樹幹。從街上看,這所房子看起來相對不顯眼,但實際上卻很寬敞。
為了解決房子外部複雜的幾何形狀,設計師重新審視了灰泥作為立麵的解決方案,盡管它在過去被過度使用。灰泥隻需要很少的連接線,看起來幾乎是整體的,與外部的青銅色鋁板搭配得很好。將內部統一起來是一個內斂的調色板和一致的飾麵:牆壁是白色的,而地板和牆板是胡桃木。整個石材都是淺米色,這種顏色在石灰華入口牆上重複出現。大量帶有黑色陽極氧化鋁框架的玻璃為家庭提供充足的光線和通風。
∇ 平麵布置圖
版權聲明:本站所有文章除投稿授權發布外,其他文字內容均為原創,享有著作權保護,未經許可不得以任何形式進行轉載(包括且不限於:媒體、網站、公眾號等)。所有項目照片/設計圖形版權歸原作者所有。本站部分內容源自網絡公開資源或用戶分享,如若侵犯了原作者的合法權益,可聯係我們進行處理。



























