和光同塵,詩意棲居
當設計師開始設計自己的住宅時?他會如何給家定義?當設計師能夠無限自由發揮時,他將如何描述自己的居所?作品,情感投射亦或是真正的生活?
無法與大地分裂開的,才是建築。我看重的是回到那片土地,再次連接建築和地球。
——隈研吾
∇ 建築原貌
“鬆際露微月,南山鸞鶴群。”此項目四麵環山,位於重慶南山的山坳中,居住山間是山居生活的隱逸與回歸,豁達於山水間,超然境外。宅院依山而建,承載了對”久在繁華裏,複得返自然“的尋覓與向往,因此更看重建築、自然與人之間的關係。原本建築外觀相對平淡,花園也無變化起伏。
故在設計中,最大限度改變原有建築結構,利用和發揮宅院周圍自然環境的優勢,以季節、空間、光影與院中綠植為構造,采用當代極簡手法進行構思表達,讓建築與空間凸顯層次,人與自然充分交流,純粹山水間,建築語言蓬勃無盡。
同為設計師的馬艾洋夫婦,即是設計師又是居住體驗者。本案融合了兩人對家的期許以及對周邊建築和自然環境的尊重與剖析,力求創造一個富有生機、充滿自然生命力的居家空間。
前花園|與光同庭
宅院外是小區主路,原建築是從側花園直接入戶。設計上改變了建築結構與人行動線,將入戶路徑進行迂回,加強建築的橫向構成與形式感,構築風雨連廊,在單薄的建築體中形成橫向的構成,增加建築層次與靈動性,並使之巧妙的融入自然景觀。
連廊采用半透玻璃與線條構成,為室內引入更多的光線,在光影流動間,勾畫出建築的橫豎與縱深,塊麵與線條、虛與實,豐富了建築層次,讓其富有生活詩意。
在極簡的設計之上,移情自然,最大可能的重塑建築與自然的關係,保留原有生態植物,高樹花木是最好的自然主義。花園外原本的大樹與連廊形成穿插透視,室內外在此互相融合,借用東方造園的漏景手法,形成獨特的視覺與自然藝術。
同時,設計師也通過在原有自然景觀的基礎上人工造景的方式再次突出自然野趣,車位之間,利用原有的植物再栽種花木,自然毫不刻意,豐富的層次變化增加景觀深度與庭院生機。
構成之外,還利用色彩與質感讓建築、景觀、環境有機融合,將一樓建築外牆進行改造,形成簡約的塊麵與線條構成。讓建築外牆與花園、地麵保持同一色係,利用恰到好處的低飽和度的暖灰色係,使其與原建築色係相輔相成的同時形成視覺整體。
顆粒感質感漆牆麵,手工質感荔枝麵磚石,以及手工打鑿的自然麵的質感石材台階,通過自然質感的營造,讓建築在細節上充滿自然情緒。
將入戶改造成兩步階梯,形成門廳區域,台階牆角看似不經意的多肉植物小景與建築線條的露景構成,是設計師精心構思的趣味插入。
“我從不放過一絲陽光或是一株花草的裝點,家應是充滿自然樂趣之所“,設計師馬艾洋這樣表達他對自然的熱愛。
內庭|自然生長
“院子要有水,要有不多兩三棵漂亮的樹。”,是女主人對庭院生活的一種構想。極簡之庭,一株楓樹立於院中,入戶後豁然開朗,借用遠山作為庭院背景,與楓樹、水池、花圃相映成趣,形成微觀縮景。
四季在此更迭,具有色彩變化的楓樹(雞爪槭)譜寫著它四時的風景,春天有嫩綠枝椏開紫色小花,夏日綠蔭蔥蘢,秋天葉序由綠漸變橙色再被催成大紅。
楓樹,不再隻是一棵楓樹
享受自然與生活寧靜的美
圍牆一角是女主人種下的一棵棗樹,依偎在圍牆之上,與不遠處的一棵檸檬樹,遙相守望。秋天,垂著累累果實,收獲自然的驚喜與饋贈。
內庭牆麵大量留白,通過漏景處理,視角不被建築空間局限,建築室內外建立關聯,坐於室內也能感受內庭自然之趣。光影透著枝葉於牆上擦出歲月痕跡。偶爾剪下枝葉裝點生活,靜觀庭院,隨意曠達。
庭院的另一側,以木柵欄矮圍牆的方式與鄰居空間巧妙隔斷,鄰居種的薔薇悄悄探入院落,增加暖色一抹,人和人之間界限不再生硬。
庭院生活區,女主人對柴火灶有童年情結,院中要有生活外廚,於是有了露天的柴火灶、長型餐桌與BBQ、圍合沙發等。天氣晴好之時,與三兩友人在此享受陽光、聚會燒烤,於花園中享受戶外野趣,空間帶來體驗的多樣性,生活有了多重審美意趣。
內院下沉區,是朋友露天聚餐的好去處,當夜幕降臨,此處搖身變為露天影院空間。
下庭院|愜意悠閑
下沉圍合庭院中,利用空間結構構造出下沉庭院,連通上下空間,賦予空間不同尺度,生動整棟建築。
這是主人最喜歡的庭院一隅,中間種上金合歡,牆角植物層疊生長,陽光傾瀉下來,在樹下曬太陽,喝茶聊天,在環形流動的空間內,建立席地而居的閑適安逸,既在室內又在庭中。
下沉庭院旁,利用原本建築條石堡坎,保留原來肌理,形成空間構成,去繁就簡,不做多餘裝飾,構築健身區硬朗質感的同時又保留並尊重自然。
整個庭院空間以山水為架,花木為骨,以不同形式鋪裝與點綴,淺池、繁花、野棗二三,營造出隨著四季與心境變幻的感受,開闔中又有小景通幽,令人心曠神怡。
室內|心靈棲居
院落空間,是室內空間的延伸,作為室內空間的重要視覺構成部分。在本案設計中,設計師沒有過分強調室內空間的裝點,而是從居家的體驗感、舒適性、實用性、起居功能等角度去著筆與思考,希望人能更多的融入自然,享受山居生活的樂趣。
玄關區在鞋櫃位置做露景處理,將人的視線放大,於尺度、光線、場景和氛圍上都展現出明顯的特質。同時考慮大量儲藏,入戶鞋櫃、包裹櫃、實用雜物區以及後勤儲藏,都是設計師於日常家居生活的用心巧思。
將一層與負一層的公共活動空間盡可能的打開,融合了各功能空間的共享性,即能裝下使用者多維的生活方式,又能體現空間的通透,塑造了靈活的空間氛圍。一層主客廳在開闊的結構中,用會客區、西廚吧與多功能茶房三個主要功能空間豐富日常生活。
西廚吧,是業主很喜歡的生活空間。女主人常在此處烹飪早餐,與朋友在此小酌、聊天。男主人亦常在此創作、閱讀,在工作的同時也能享受家庭生活的閑適與輕鬆。
功夫茶空間,男主人也常在此處寫書法和閱讀,這是一個完全自主的場地,明亮的空間、溫暖的木質、貼合的家具,家的概念巧妙地在空間核心處展開。
小貓的加入為居家生活增添了更多的趣味與閑適。負一層空間打造兩處下沉庭院,將空間全部打開,增強空間通透與空氣對流。引入陽光、雨露,加強了地下室與自然的聯係融合,讓地下室空間更加靈動、自然。
中間共享會客區融合會客、影院、喝酒、聚餐等功能空間,設計將娛樂休閑與餐廚後勤連接起來,呼應了“家是日常的生活”這個主題。
L型下沉庭院空間有獨特的采光結構,營造美妙自然的和諧。以多功能榻榻米增加靈活的休閑體驗,主人閑暇在此玩音樂,涼快的夏日午後,也適合小憩。一旁的棋牌區、健身區與休閑區、餐廚區一起,增加人與空間的對話關係,讓來到此間宅院的人,層層遞進感受家的真實麵貌:無論是哪一種體驗,哪一種空間表達,都充滿詩意與溫度,並為生活服務。
女主人熱愛花草,利用屋頂露台空間打造了一處陽光花房,也是作為畫室,花草競相開放時,空間如同山中植物一樣生長著。對於設計師馬艾洋來講,設計,無論是自己的家亦或客人的宅院。設計一個家,首先都是整理居住者當下和未來的生活需求,以設計對應生活的意趣和審美。
正如這間宅院一樣,反複推敲而後定稿的花園,前後院落,下沉庭院、房屋與自然的水、光、植物,遠處的山、樹結合,精心構建一個層次豐富的理想居住環境。庭院中,既有輕盈通透的形態,又有強烈體積感,設計師以自己的山中居所構建了一處人與自然純粹聯通之所,精神回歸自然,萬象秩序循環,宅院成為高山花木的有機整體,自成“洞天”。
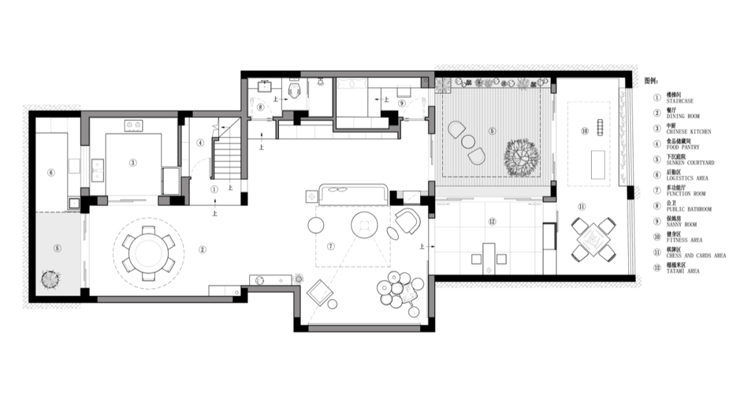
∇ 負一層平麵圖
∇ 一層平麵圖
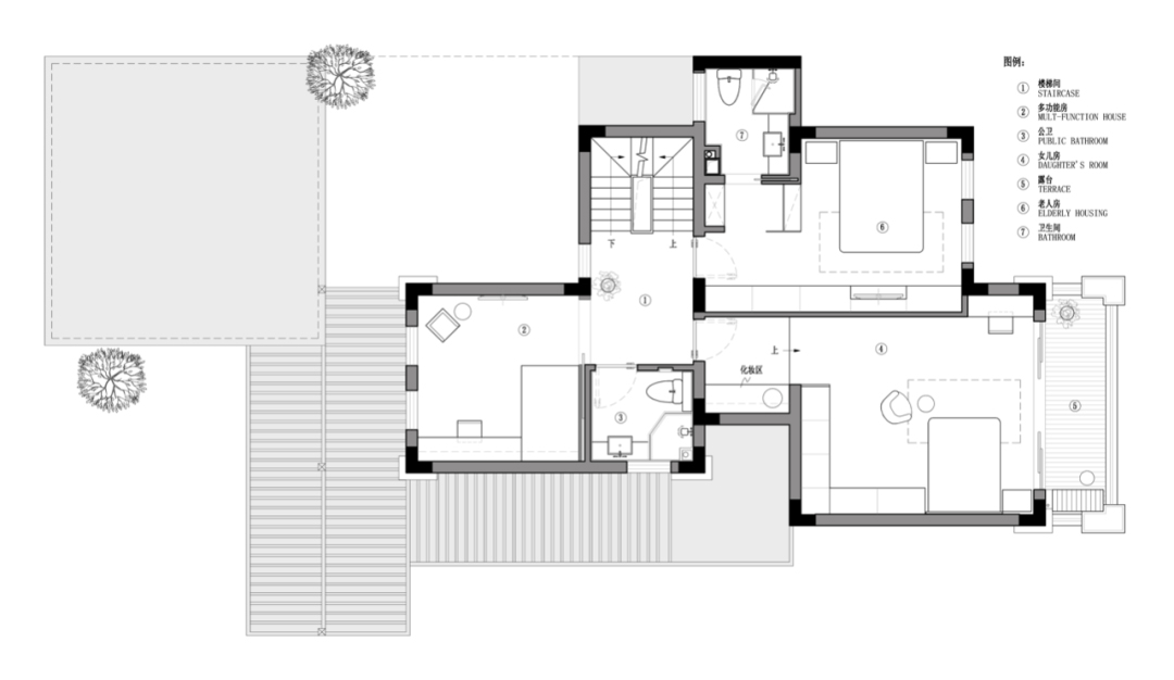
∇ 二層平麵圖
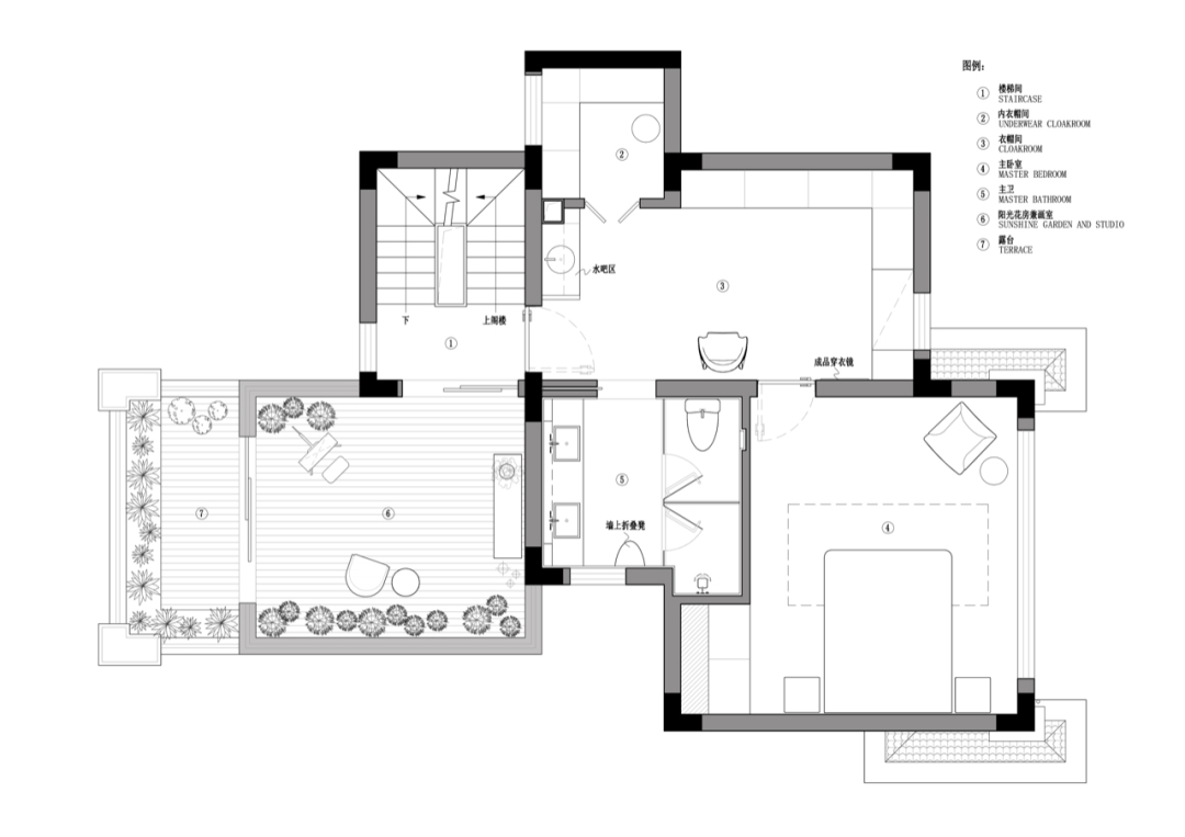
∇ 三層平麵圖
項目信息
項目名稱|重慶南山別墅
設計麵積|480㎡
設計單位|馬艾洋室內設計事務所
主創設計|馬艾洋 覃勇毅
助理設計|張琳玲 周利 胡柔娟 陳熊
軟裝設計|重慶熙予軟裝 覃勇毅 王雅竹
工程施工|重慶帝安裝飾設計工程有限公司
項目攝影|張騎麟
部分品牌|poltronaFrau、Porro、cassina、 Vineko、Georg Jensen、Nude、Revol、 Abyss、Flos、Artemide、Occhio、VIBIA

















































