本案是一棟800㎡的USLAB合創空間研究所,位於浙江杭州的南複路附近,隱秘於鬧市邊的一棟建築。
這不是關於建築,更多的是關於場地的體驗和尊重自然。設計師希望這棟建築成為這種自然體驗的一部分。
航拍俯瞰整個建築隱於自然景觀之中,樹木蔥鬱,擋掉了一部分天光,豁達於山水間,超然境外。設計之初便引發了我們思考:“久在繁華裏,複得返自然”。設計師嚐試讓結構與自然對話,相互呼應,同時也重新考慮建築、人與自然三者的關係。
設計之始,設計師對整棟建築的外立麵進行了改造。舍棄了原有建築的外牆,在既有建築形式與結構的基礎之上,打開原本封閉的盒子,采用了長條窗,大塊落地玻璃等設計形式,引入多層次的光,讓自然風景融入到室內,營造自然、開放、高效的會客和辦公環境。
建築是對景觀的微妙回應,設計師精心設計了自然與結構、室內與室外、輕與重之間的巧妙過度。
本項目中,設計師利用和發揮建築周圍自然環境的優勢,以季節、空間、光影、院中綠植和西麵無邊水景為構造,采用當代極簡手法進行結構表達,讓建築與空間凸顯層次,人與自然充分交流。
踏步台階采用材質的變化和燈光的變化來豐富庭院場景的層次感,並與建築結構關係保持聯係,使得整個場景不再呆板。
自由前廳完成了進入整個空間的場域氛圍的營造。極大的自由度讓空間有更多的可能性,一層大空間設計師采用了留白的手法,讓這個空間可以做展覽,可以聚會等,可以容納各種形式的內容。頂麵采用了鋁板,使整體空間有了一種漂浮感,可以自由呼吸。
通往二層的扶手似柵欄般錯落,拾級而上,二層玻璃大窗灑入陽光,使空間充滿自然光線,設計師盡量保證空間的通透和室外景觀的融入。
二層空間的功能劃分主要為體驗區、洽談區、辦公區三部分組成。設計師特別在洽談區的設計中做了大量的減法,去除了很多牆體,把室外的自然景觀借入室內,讓人去感受四季的變化,同時在室內享受沉靜式體驗和辦公。
有兩個洽談區還特別考慮了壁爐的設計,在冬天,室外落葉凋零,雪花紛飛,點起溫暖的壁爐,人生須臾,不過爾爾。
空間的品質感需要細節來豐富。在家具的選擇上都采用了進口品牌和中古家具,會客廳和會議室的家具設計師都進行了設計,增添了空間更多的“趣味性”。讓空間更有包容性,讓家居陳設去喚起空間的情感。
其中兩處辦公區和會客區,一扇窗的借景則展現出另外一種理想居住狀態的追求,窗外屋簷上的老瓦片正好與視線平行。特別是下雨天,雨點打在瓦片上發出滴滴答答的聲音,次日,瓦片上長出綠油油的青苔,合著遠處鳥叫的聲音,很是平靜。
辦公區的家具和傾斜的吊頂以木質為主,設計師探索如何在現代空間中創造靜,打造幽微的氛圍,更像是在探索東方的空間氣質。然而,隨著視線轉移90度,巨大的落地玻璃將窗外的陽光和鬱鬱蔥蔥灑入室內,生機勃勃。這種動與靜的對立跟衝擊力是非常有意思的。
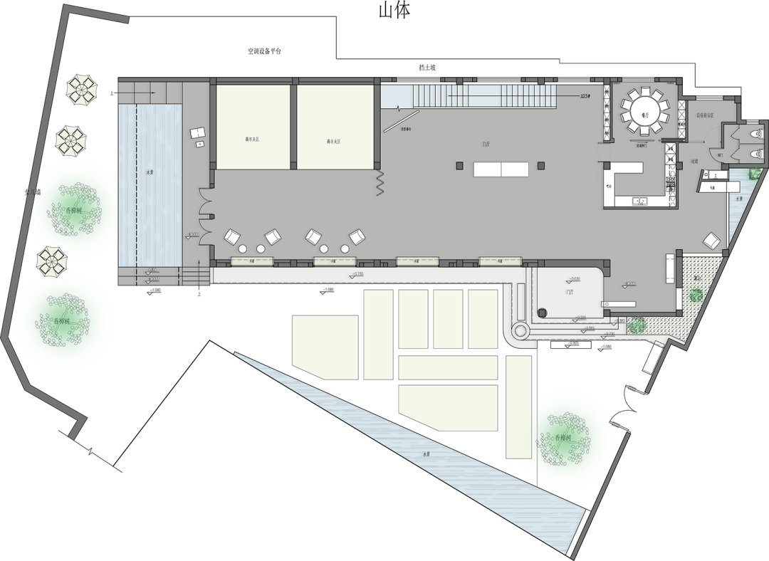
∇ 一層平麵圖
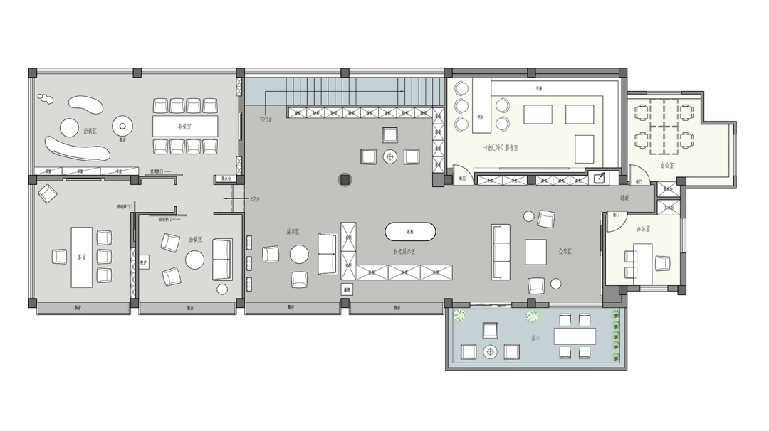
∇ 二層平麵圖
項目信息
項目名稱 | USLAB合創空間研究所
項目地址 | 中國 杭州
項目麵積 | 800㎡
設計單位 | 楊鈞設計事務所
設計內容 | 建築改造 室內設計 庭院設計
主案設計 | 楊鈞
設計團隊 | 孫博
設備團隊 | 美國戴孚全空氣係統
智能團隊 | 摩根全屋智能
岩板品牌 | 西班牙Tech/size德賽斯岩板
金屬團隊 | 卡素金屬美學
塗料團隊 | 美末塗料集合品牌
軟裝陳設 | 唐喀設計事務所
完工時間 | 2021.12
項目攝影 | 葉鬆 · 翰墨視覺









































