通過拆解和重組房屋,花園通過塑造逐漸向環境開放。而風在其間搖晃,光影搖晃。
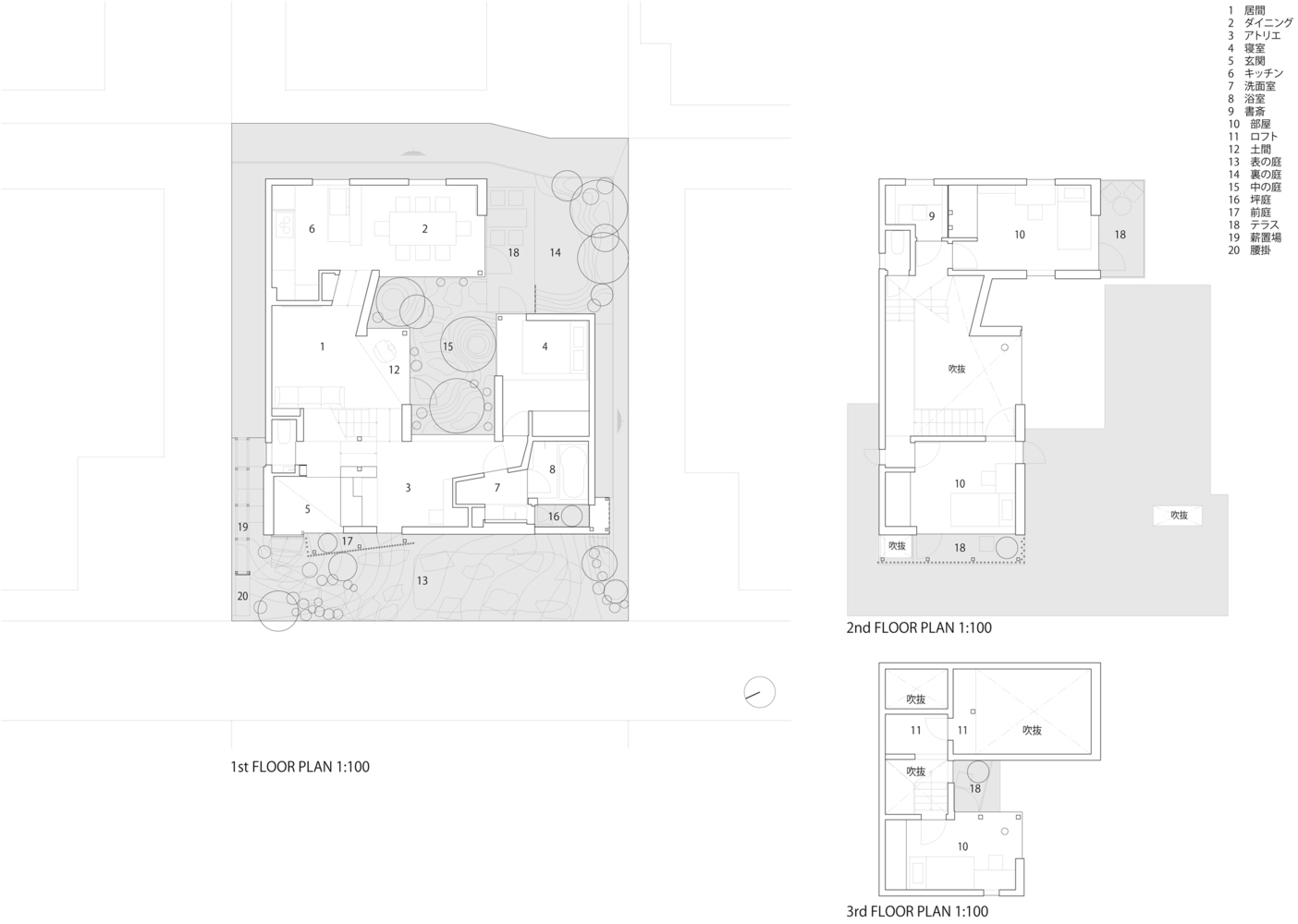
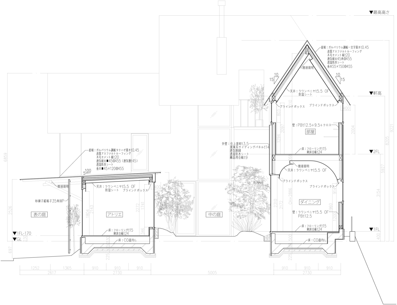
這是50年代初開發的大阪郊區,正在被新的活力所取代。這是一座連接周圍環境中的兩個花園和內部的三個花園的獨棟住宅。在前花園,鄰居的孩子們玩耍的地方,他們做DIY,做柴火。從吹著風的南花園。三個花園的內部是一個緩衝區,將花園與內部連接起來,較低的平屋頂連接花園。這六個花園逐漸劃分住所,協調了室內外的環境。麵向花園的牆將空間分隔開來,形成了一個多麵體花園。
∇ 平麵圖
∇ 立麵圖
版權聲明:本站所有文章除投稿授權發布外,其他文字內容均為原創,享有著作權保護,未經許可不得以任何形式進行轉載(包括且不限於:媒體、網站、公眾號等)。所有項目照片/設計圖形版權歸原作者所有。本站部分內容源自網絡公開資源或用戶分享,如若侵犯了原作者的合法權益,可聯係我們進行處理。
































