深圳南山實驗教育集團麒麟中學位於南山區藝園路西側,正雲路北側,周邊高層住宅與高密度城中村環擁。校園現有用地20083㎡,為了滿足校園規模擴大需求,將東側原有的公益停車場7000㎡用地納入校園,用地合並後校園總用地麵積27083㎡,將現有36班增擴為48班辦學規模,同時新建綜合教學樓、行政辦公、食堂、報告廳、體育運動設施及教師宿舍,擴建後總建築麵積為64125㎡,容積率1.40,同時為了保證校園整體性,需對現狀教學樓立麵和空間進行係統的提升改造。
功能整合、合理分區
Function integration and reasonable partition
現狀教學樓布局呈典型的“日”字型結構,西側三棟普通教室(ABC三棟),東側附有圖書館、風雨操場、合班教室,北側為教師辦公與教師宿舍,現狀主要入口從校園北側引入。設計在遵循校園空間結構邏輯下,考慮到毗鄰南側高層住宅日照的遮擋影響,在此新增一棟六層專業教學綜合樓(D棟),包括了專業教室、多功能教室、教師辦公等功能,校園南北中軸鏈接四棟教學樓,串聯起三個圍合的教學庭院。另外,為了滿足學校行政辦公空間需求,在北側原有辦公樓東側擴建一棟教師辦公樓(G棟)與之相連。擴建後的D棟、G棟與原有建築教學樓(ABC棟教學樓)共同構成了完整教學區。
∇ 校園現狀照片
∇ 場地現狀
設計將現狀200米跑道增擴為250米並置於用地校園東側,其北側新建一棟15層教師宿舍(H棟),下部設置食堂及服務配套,形成了完整的生活運動區。因此改擴建後總體功能布局以校園中軸線為界,西側為以年級為單元的教學庭院教學區,東側為體育運動生活區,動靜分區合理。另外,現狀的公益停車場納入校園用地之後,在新建建築地下二層增擴停車位,設置不同出入口便於社區共享。
∇ 功能聯係與分區
∇ 新舊關係
係統植入、有機鏈接
System implantation & organic link
校園新舊建築並置呈現多棟分散布局方式,需要一個強有力的公共開放空間係統將各個教學單元體有機鏈接,形成校園空間整體性。大板之下的首層地麵空間,設計強調西側三個教學庭院與東側架空活動空間、半地下空間的聯通和滲透。
∇ 首層地麵公共體係
大板之上,新舊教學單元的交通與中軸形成循環閉合回路,並在二層建立與東側開放空間、運動看台的聯係廊橋和平台;同時二層的風雨操場現狀封閉東立麵改造為通透的格柵界麵,強化教學空間與運動開放空間的交通和視覺聯係,也滿足學生課間十分鍾可便捷到達運動操場。連廊、教學庭院和體育場看台、景觀式台階等元素整合構成了連續、流動、一體化的的公共開放空間係統,鏈接起教學、辦公、宿舍、體育等不同功能新舊建築,校園更顯有機整體。
∇ 二層環廊體係
高差利用、空間拓展
Reasonable use of height difference & space expansion
設計充分利用校園東側南北2-4米地形高差,設置250米運動場大板,板下為食堂、風雨操場、架空運動、交通接送疏導中心;同時在新增教學第三內院下部設置800人報告廳,報告廳屋頂作為學生活動平台,與現有建築首層標高持平。大體量的空間功能設置在地下或半地下層,最大釋放地麵活動空間。同時大板下部空間互相流通滲透,形成了全天候的共享開放公共空間;東南側道路地形的高差變化,以及新舊建築之間設置多孔的下沉庭院和天井,為運動場大板下部的大空間通風采光創造有利條件。
∇ 剖透視圖
同時由於校園辦學規模的擴大,為了緩解上下學瞬時交通壓力,設計在校園南側新增校園主入口,將新建建築底層局部架空,退讓出人行入口緩衝廣場,形成“校園客廳”,構成了校園中軸的延續。
重塑中軸、活力界麵
Rework the axis & dynamic interface
現狀校園布局呈典型的“日”字型結構,校園中央軸線串起西教學庭院和東側圖書館、風雨操場、階梯教室,均質化庭院空間缺乏識別性,而中軸廊道空間兩側界麵封閉、單一,都造成了校園空間場所活力的缺失和乏味。設計重新塑造校園活力脊,將中軸廊道空間兩側界麵透明化,擴大首層圖書館功能空間,同時結合教學樓局部架空空間設置展覽、讀書等功能,形成公共性、開放性活力中央廊道。
另外,為了打破現狀教學庭院均質、較為封閉的內部界麵,在設計中通過將實體欄板改為欄杆,同時結合非正式空間節點的變化,形成了更為豐富、通透和立體的界麵,提供有趣多變的視線穿越與空間體驗。
三層通高並滿足深圳地域氣候特征的架空中央通廊與南側校園客廳、北側入口架空空間形成不同的軸線空間節點,凸顯校園的主軸空間豐富性、完整性,營造校園中央廊道的場所感。
校園改擴建工程涉及新舊之間的多層複雜係統的交互和重疊,設計在充分尊重現有建築校園規劃結構的基礎上,以集約化的策略,克製性幹預,在有限造價控製下,完成了新舊整合與有機鏈接,並通過校園公共空間係統的重塑,激發校園空間活力,使得校園麵貌煥然一新。
∇ 總平麵圖
∇ 一層平麵圖
∇ 地下一層平麵圖
∇ 二層平麵圖
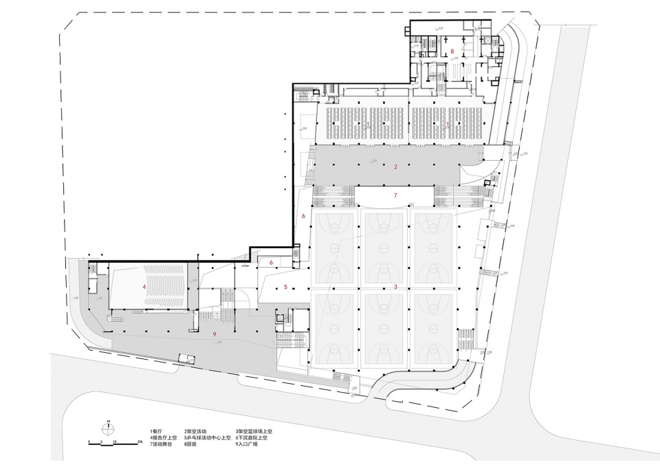
∇ 五層平麵圖
項目信息
項目信息
項目名稱:深圳南山麒麟中學改擴建工程
項目地址:深圳南山區義學路
總建築麵積:64125平方米
容積率:1.40
設計時間:2016—2018年
竣工時間:2021年8月
建設單位:深圳市南山區建築工務署
代建單位:深圳市萬科城市建設管理有限公司
設計總承包單位:深圳大學建築設計研究院有限公司
室內設計單位:深圳市九度空間室內設計有限公司
景觀設計單位:深圳本末度景觀設計有限公司
施工單位:深圳市深安企業有限公司
項目負責人:蔡瑞定
建築方案團隊:蔡瑞定、黃潤通、陳恒生、付瑋、何偉勇、周雪梅、陳景文、邱紅霞、毛文力、鄭淑琪(實習)
建築施工圖團隊:馬越、姚遠、孟美莉、韋鮮瓊、陳景連、詹鎮平、劉中平、王偉方、謝蓉、賴美蓉、王宏越、郭浩、唐進
建築攝影:吳清山、元本體





































