01. 時空的焦點 Focus of space
六工彙位於北京首鋼園北區的核心地塊內,由六個互通的地塊組成,是一個彙聚企業獨棟、複合式商業、多功能劇場和綠色公共空間的新型城市公園綜合體。
六工彙購物廣場落位於地塊東南角,是六工彙乃至首鋼園北區內“時間與空間”的重要焦點,東側為商業主幹道,南側為高線濱湖景觀軸,遠望冬奧大跳台與冷卻塔,西側為三高爐博物館與群明湖之間的綠色通廊,沿途工業遺址風貌完整,西北遠眺石景山。冬奧盛會、百年遺址、自然風光共同交織於此。
02. 商業中的場景 場景中的商業 Scenario in Business, Business in Scenario
項目作為傳承首鋼工業遺產記憶與構建美好未來的新地標,弘石室內設計團隊需要探索的不僅是新與舊的融合,更要打造符合當下體驗與消費習慣的商業空間。
互聯網時代下人的行為習慣呈現出典型的“目的性”,唯有變“商業中的場景”為“場景中的商業”,將呆板的傳統商業空間改造為充滿活力與交互的共享空間,方能讓消費群體前往並持久的停留其中。
弘石團隊主要采用群島、天階、平台、盒子等設計手法,帶來動線及空間的戲劇性,打造隻屬於首鋼IP文化的室內場景,靈活的業態布局,讓小而出彩的共享空間遍及其間,呈現一種現代、開放、自由的生活方式。
03. 新與舊 New and Old
場地內保留建築“二泵站”及“7000風機房”承擔著購物中心東側主入口與東區中庭的角色。7000風機房空間內本真的工業風貌,是室內設計中最好的造型構成,天花利用原廠房結構坡頂把天光引入空間,原有的桁架結構,生產天車、結構柱保留原始風貌,搭配老廠房立麵的紅磚肌理。
∇ 改造前的7000風機房
店鋪牆體采用銅色材質與玻璃對比的方式烘托工業感中的現代元素。軟裝上用Y字型鋼條為設計靈感的家具,匹配高綠植,圍合成商業空間的休閑島。7000風機房的總高度近25米,空中連橋連接二層的NIO蔚來旗艦店,整個空間層次豐富兼備現代感。
04. 天與地 Heaven and earth
在與建築設計團隊密切合作下,中庭天花造型采用菱形陣列布置,通透的玻璃讓自然光線散射室內,拉近人與自然的距離。通過設計與計算天花的細節造型,避免光線過明或過暗,從而達到節約能源的目的。
中庭地麵布局增加“島”的概念,休閑水吧、IP點位、外擺均可放置於此。空間的留白,則作為公共區域的交通組織、共享空間、周末集市等彈性使用。
05. 天階和趣盒 Traversing Stairs and boxy store
基於對傳統商業空間的反思,在整個商業空間裏分布著不同形態的半通透盒子,將零售、餐飲、休閑空間靈活混搭,盒子在表皮材質上進行區分設計,使空間更具豐富性與辨識度。小尺度商業空間的出現,為大量共享區域提供自由使用的可能性。
購物中心共有兩處天階的設計,其中從二層直達四層的天階,左側為通行動線,右側為休閑共享空間,搭配適宜的家具與綠植,使空間舒適且自然。
炫舞天階位於商業中庭的南側,連接3層到4層的通行動線,用LED屏作為踏步的立麵,通過聲、光、電的交互設計打造消費空間中的網紅打卡地。
實現LED屏與踏步的結合並非易事,台階踏步的高度是157mm,LED屏最低的高度為128mm,設計團隊需要在有限高度內要解決LED及踏麵石材的安裝問題。規範要求樓梯的踏步高度是不可變的,故而隻能在LED屏上方取消傳統的的水泥砂漿粘接層改用膠粘。為避免LED屏受踩踏的傷害在LED屏上方增加5mm厚的鋼板支撐,增加強度,並在踢麵上增加超白有機玻璃對屏幕增加保護。
06. 人與場所 People and places
回溯首鋼園的曆史,無數的勞動者在此夜以繼日地奮戰。城市更新設計中獨特的文化IP使得六工彙購物廣場讓人們能夠穿越時空並享受生活,積澱出非凡的場所精神。
北歐古老諺語為我們總結出人的基本行為習慣——人往人處走。換言之,由於人的聚集進而形成更多人的聚集。購物廣場內大量的共享空間為人們提供可以持續停留的地方,進而形成良性循環效應。由消費者定義消費空間的屬性,從而使消費場景變為生活方式的提供者。
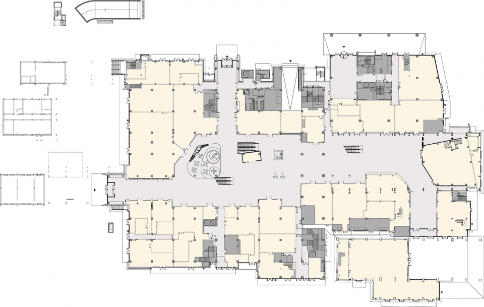
∇ 一層平麵圖
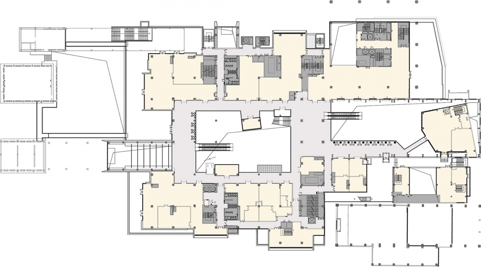
∇ 二層平麵圖
∇ 三層平麵圖
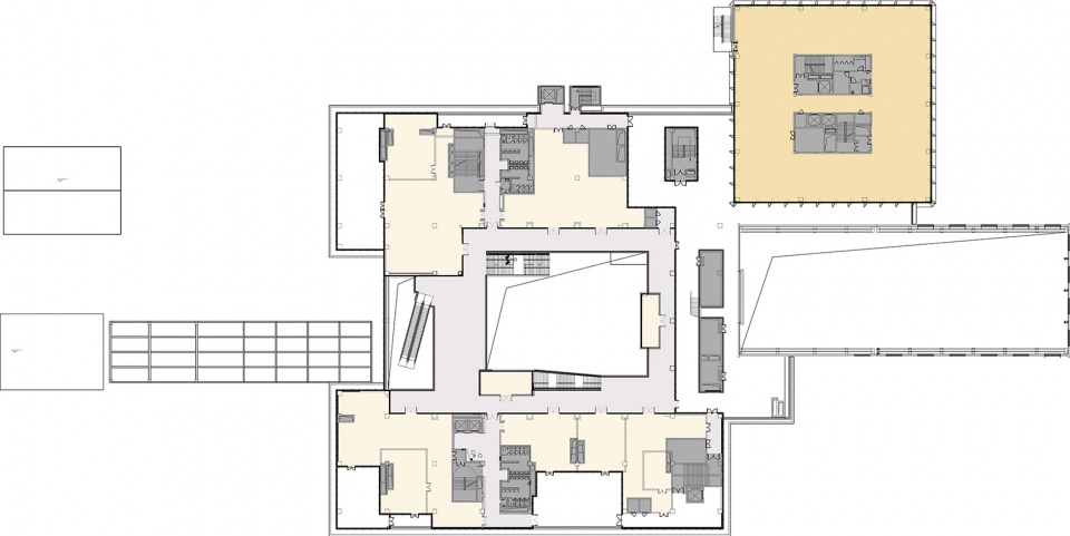
∇ 四層平麵圖
項目信息
項目名稱:首鋼園 · 六工彙購物廣場
業主單位:鐵獅門 首鋼基金 首奧置業
項目麵積:3萬平方米
設計時間:2019年
竣工時間:2022年
室內設計:弘石設計
設計範圍:室內硬裝設計&軟裝設計
設計總負責:李紅慶
硬裝團隊:李然 雷春花 蔡東 李一黃 彭奎奎 王增誌 薑非 張琪 於海貴 閆紫薇 孫萌 韓浩軍
軟裝團隊:於若蘭 李鑫美 褚飛
建築總師:張翠珍
圖紙審核:胡祖忠
建築設計:築境設計
室內照明:同原(北京)照明設計有限公司
室內商業設計顧問:北京國創京品建築裝飾設計公司
標識設計:北京良好文化傳播有限公司
景觀設計:易蘭規劃設計院
木結構設計:上海雋執建築科技有限公司
幕牆設計:同創金泰建築技術(北京)有限公司
室內施工:北京樂孚裝飾工程有限公司
軟裝供貨:北京賽瑞迪普空間設計有限公司
項目攝影:Jerry Yin 李曉光 蔣衍青
































