美研航站,即刻啟程
Beauty Station, Get Started
TWEEN-20是一家集醫美產品研發、展覽、直播、辦公、咖啡等美業聯合中心;2021年11月始SORA® 負責該品牌的空間導入與空間設計的項目服務,2022年6月TWEEN-20開始投入辦公等業務發展使用。
隨自然光影變化的“傳酶”空間
Communication Space Shifted by Natural Sunlight
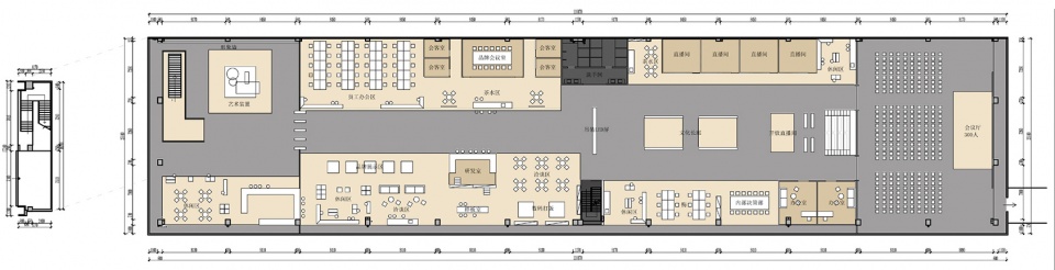
在規劃空間區域的功能性時,我們了解到TWEEN-20需要容納集產品研發、展覽、直播、辦公等多業態於一體時,結合建築著地25米寬,110米進深的原建築環境,以及此空間最尤為特別的弧形天花結構,能將日光從各方麵充分引進這環形空間,我們提出盡可能保留建築的原來結構,並以此作為設計方向去進行,去享用由這弧形建築引進的光影時刻。
在設計過程中了解到品牌對於醫美產品的研發如同航空工程般精細的專業態度,因而設計靈感提取自「航空登機站」,打造整潔有序與現代科技感的空間風格,以及能夠承載建築空間本身造型與體量的獨特性。
解構航站樓特有的區域功能去作為TWEEN-20的空間手法,例如:咖啡區對應的登機手續辦理台與候機廳、中間軟屏裝置對應的航班信息播放裝置等,希望讓一眾美業工作者在此能夠開放的交流,合作與創造更美好的共享辦公氛圍。
在空間導入的視覺呈現上,我們圍繞空間設計的概念「航空登機站」進行構思,以機艙窗戶亦方亦圓的型狀特點作為靈感,轉化成TWEEN-20字體與輔助圖形的設計語言,同時也呼應回空間特有的弧形天花結構,增強空間—概念—視覺三者之間的關聯性;另外在視覺設計中我們運用的箭頭符號與數字編號,為其開闊的空間標示出明確的動線引導,進一步強調空間的秩序與科技感。
∇ 軸測圖
∇ 平麵圖
項目信息
項目名稱:TWEEN-20
項目類型:辦公建築
設計方:SORA
項目設計:2021
完成年份:2022
設計團隊:SORA
項目地址:廣東省廣州市白雲區
建築麵積:3000㎡
攝影版權:YUAN STUDIO
客戶:TWEEN-20
材料:鋁材、不鏽鋼、亞克力






























