宅院與村莊
項目位於北京市郊一處普通鄉村之中。這裏屬於典型的北方平原村落,以一至二層的院落式住宅作為基本單元構成。房屋大多坐北朝南,紅牆紅瓦,也可以看到一些隨著生活需求變化留下的各類自發性加建形式,有彩鋼板頂的,有玻璃頂的各類棚屋,混合存在於鄉村自然肌理之中。房主人目前常居於城內,這裏將作為家庭度假與朋友聚會的場所。作為村落中一處新的建造,我們希望改造繼續呈現出一種新舊混合的狀態,與村莊肌理建立關聯,低調融入到整個村莊的風貌之中,同時在院內產生一個豐富、自然的小世界。
∇ 總平麵圖
舊房子與新木屋——建築形式的混合
場地中舊建築為兩進院空間布局,包含兩座坡屋頂瓦房和一些平頂房屋。經現場勘察做出基本判斷:北房經常被使用且結構質量較好,應予以保留做適當改造;南房結構雖更為老舊,但具有一定的年代價值,可做一定改造後保留;其他附屬用房均為臨時性搭建,可予以拆除。
∇ 前院(左上)、後院(左下)、立麵(右)改造前
新的建築體是一座連續起伏的木屋,它覆蓋了場地中間的舊屋,並向南北兩側延伸出生活使用空間,構成新的庭院建築格局。木屋形式隨著舊屋坡頂起伏,形成兩個連續的屋脊,分別對應著下方的客廳和餐廳、廚房這一家居生活的主要公共空間。木屋的屋簷之下延伸出兩塊平頂房屋,補充了兩間臥室、庫房、衛生間等附屬功能。北側的舊屋選擇暴露其屋頂結構並在室內劃分出兩個臥室和起居空間。木屋的介入加強了屋頂起伏的層次變化,並形成了建築體量層麵上的新舊混合關係。
∇ 空間分析
∇ 結構圖解
庭院與室內——行為活動的混合
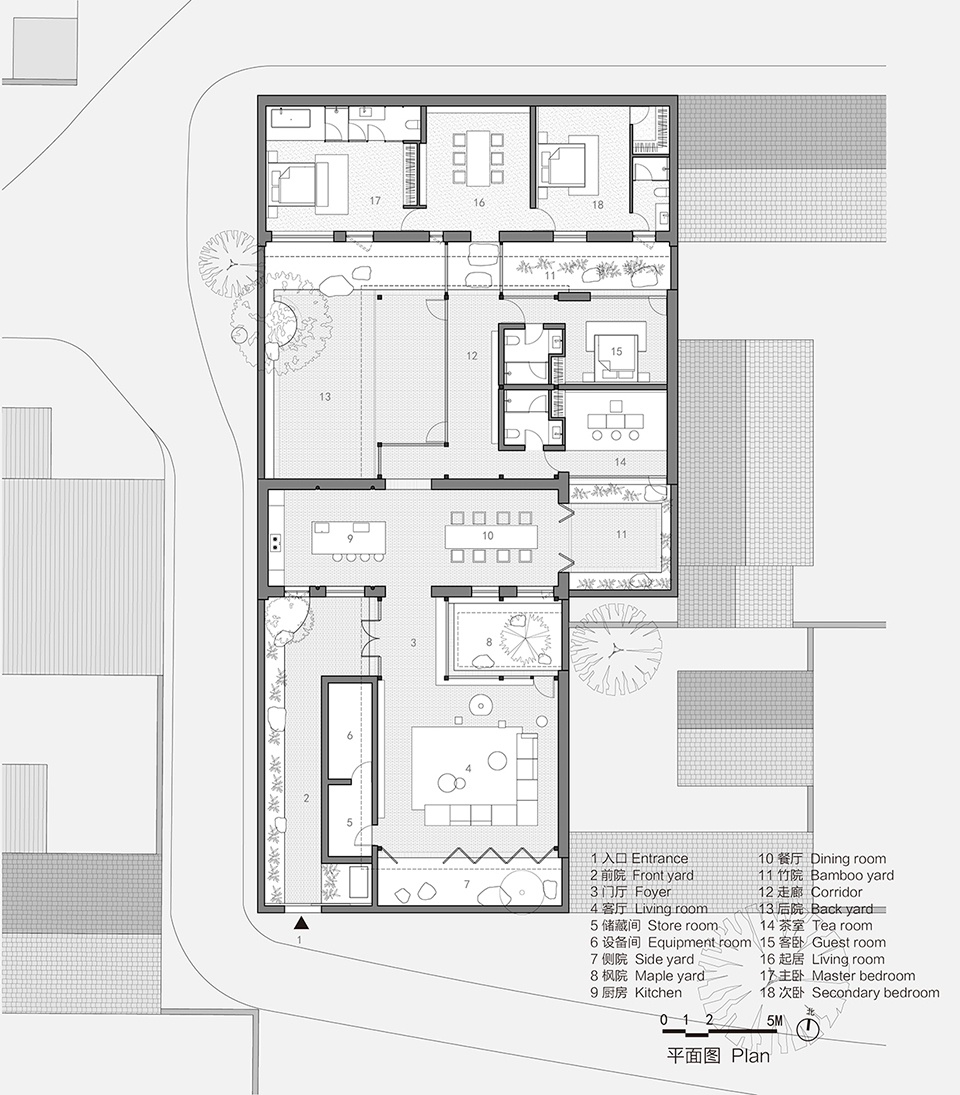
原本的二進院的庭院格局被打散,形成六個尺度、景觀、功能各不相同的庭院。前院設置在場地西南角,拉開金屬大門,竹林小徑將人引向房子的入口。推門而入,門廳正對著一個小院,一株姿態較好的紅楓映入眼簾,在不同季節展示著自然的色彩,成為客廳與餐廳之間的點景。客廳與南側院牆留出側院,院中植樹置石,天氣晴好時,客廳折疊門可以完全展開,含院入室內。
∇ 庭院圖解
向北進入舊屋,餐廳、廚房一字排開,舊木屋頂與新木構屋頂相互對照。餐廳向外與鄰居家院牆形成一處竹林庭院,就餐活動可延伸到庭院中,置身於竹林中飲食品茶。
通過餐廳即進入後院,此院為主要室外活動院落,通過半室外走廊過渡到庭院當中,院中植有大樹。可在外廊中小憩,也可在大樹下聊天。
繼續向後進入臥室區,北房與木屋之間通過玻璃廊相連,自然區隔出一個窄院。三個臥室均可直接麵向室外景觀,滿足采光通風需求,同時視線避免幹擾。不同庭院的設置,讓室內各個角落都煥發著自然的生機。
結構與材料——新與舊的混合
新木屋采用雪鬆膠合木作為主要材料,結構形式上借鑒抬梁式架構,回應北方民居的木作傳統。充分利用膠合木這一低碳、可再生的自然建材,用新的結構表現接續舊屋的木構,實現新與舊在結構層麵上的對話。以盡量小的梁柱截麵和盡量大的跨度實現連續起伏的屋頂,保證結構合理的同時控製造價成本。
新建圍護牆體全部采用當地回收的舊紅磚和青磚砌築而成,也實現了廢舊材料的循環再利用。舊房修繕的環節中,保留下來的北房外牆為白色瓷磚,現場決定剔除打磨,露出原來基層的紅磚牆麵。南屋局部屋頂在拆除過程中發現原有結構破損嚴重,牆體也有倒塌的風險,因此落架重修,替換部分木構件,牆體用舊青磚按原建築形式重新砌築。門窗采用固定中空玻璃與竹鋼板材可開啟扇結合。實體開啟扇可以滿足通風需求,而固定玻璃窗保持取景的完整性。室內固定家具也全部由竹鋼板材定製而成。膠合木、竹鋼和舊的木梁形成了木料間的新舊混合關係。
地麵鋪裝則采用購置的新的紅磚鋪就,具有更好的防水防塵的效果。屋麵采用金屬蛭石瓦,取其荷載輕、壽命長、造價低。金屬瓦的紅色表麵與村莊內常見的紅色板瓦相互混合。院落的營造、結構的更新、材料的再利用,設計試圖創造一種新舊迭代演進的可持續設計策略,在個性特征、風貌協調、造價控製之間建立平衡,為鄉村建築更新提供新的可能性。
∇ 工作模型
∇ 屋頂平麵圖
∇ 平麵圖
項目信息
項目名稱:混合宅
項目位置:北京市通州區石小路
設計公司:建築營設計工作室
主設計師:韓文強、李曉明
項目設計師:郭建剛、孟罡宇(實習)
結構谘詢:北京欣南森木結構工程有限公司
機電谘詢:鄭寶偉、李東傑、張英男
景觀谘詢:荒野造景
施工團隊:北京欣南森木結構工程有限公司
占地麵積:576㎡
建築麵積:373㎡
建築高度:5m
設計時間:2020.10—2021.04
施工時間:2021.04—2022.04
主要材料:膠合木、磚、竹鋼
項目攝影:金偉琦












































