YIN Hotel隱廬酒店坐落於阿那亞。與海為鄰,酒店宛如一艘蜉蝣於海麵的遊艇。鋁材與人造革配合富有工業感與未來感的顏色,材料和色彩的碰撞,營造了現代城市精品氣質的酒店空間氛圍。
YIN Hotel is located in Anaya. Approach to the sea, the hotel is like a yacht with ephemera on the sea. Aluminum and artificial leather are combined with industrial and futuristic colors. The collision of materials and colors creates a modern city boutique hotel atmosphere.
∇ YIN Hotel F3電梯廳©吳學文
∇ YIN Hotel 前廳©吳學文
高聳的主入口在鋁板、發光軟膜、白色大理石的運用下,光線得以在內外間流動。酒店的一層為前廳與酒吧,二層與三層為客房。酒店走道牆麵大量使用的波紋鋁板是複刻遊艇的金屬感,暖灰色地毯與光線,增加空間的親切感。酒店設有沙龍區等會客廳和賓客廳,舒適的空間尺度與迷人海景,打造了一個會友暢談,雅聚行樂的空間。
The lofty main entrance is made of aluminum panels, Light soft membrane and white marble, allowing light flow between inside and outside. First floor of the hotel is the lobby and bar, and the second and third floors are the rooms. The extensive use of corrugated aluminum panels on the wall of the hotel corridor is a replica of the metal feeling of the yacht, warm gray carpet and light, increasing the intimacy of the space. The hotel has salon and other meeting area and guest area. The appropriate scale and attractive sea view create a space for friends to talk freely.
∇ YIN Hotel外立麵©吳學文
∇ YIN Hotel 走道©吳學文
∇ YIN Hotel F2接待區©吳學文
酒店客房在朝向與屬性,分為觀海房和聽海房。觀海標準客房的弧形彩色鋁板,其形式與色彩是對遊艇與海麵光線的場景想象;觀海套房的白色柚木木地板與白色牆布,其材料折射環境光而產生的質感,仿佛置身於海麵的輕盈感。聽海房雖未朝海,但海灘邊的人聲及熱鬧氣息,仍能在聽覺上感染人心。
Hotel rooms in the orientation and attributes, divided into sea-view room and sea-sound room. The curved colored aluminum panels of the standard guestroom with sea view are the form and color of the scene imagination of the yacht and the sea light. The white teak wood floor and white wall cloth of the sea-view guestroom create the texture of the refraction of the material, as if you are in the sea. Although the sea-sound guestroom does not face the sea, the sound and lively atmosphere of the beach can still touch the heart.
∇ YIN Hotel 觀海標準客房©吳學文
∇ YIN Hotel 聽海複式標準客房©吳學文
∇ YIN Hotel 行政客房©吳學文
∇ YIN Hotel 觀海套房©吳學文
配套空間的設計,延續鋁板,石材,人造革,柚木地板的使用,新增弧形亞克力背嵌彩色燈帶的做法,讓體驗更貼近未來。洗浴間的布置因考慮人的視線關係,而使用長虹玻璃,以保證私密性,同時透過玻璃也能隱約觀看大海,讓心靈歸於平靜。
The design of supporting space continues the use of Aluminum plate, Teak floor, Stone and Artificial leather, and adds the practice of acrylic back inlaid with colored light belt, making the experience closer to the future. Considering the sight,the arrangement of washroom,we using the Changhong glass,in order to guarantee privacy,also can see the sea dimly through glass and let the mind in peace.
∇ YIN Hotel洗浴間©吳學文
∇ YIN Hotel 橢圓淋浴間 & 衛生間 ©吳學文
∇ YIN Hotel衣帽間©吳學文
∇ YIN Hotel 觀海套房©吳學文
獨特的地理環境與細致的材料,光線設計,在YIN Hotel,觀海,觀自在,觀內在。.
Unique geographical environment with meticulous materials, light design, in YIN Hotel, view the sea, view at ease, view inside.
∇ YIN Hotel 門廳夜景©吳學文
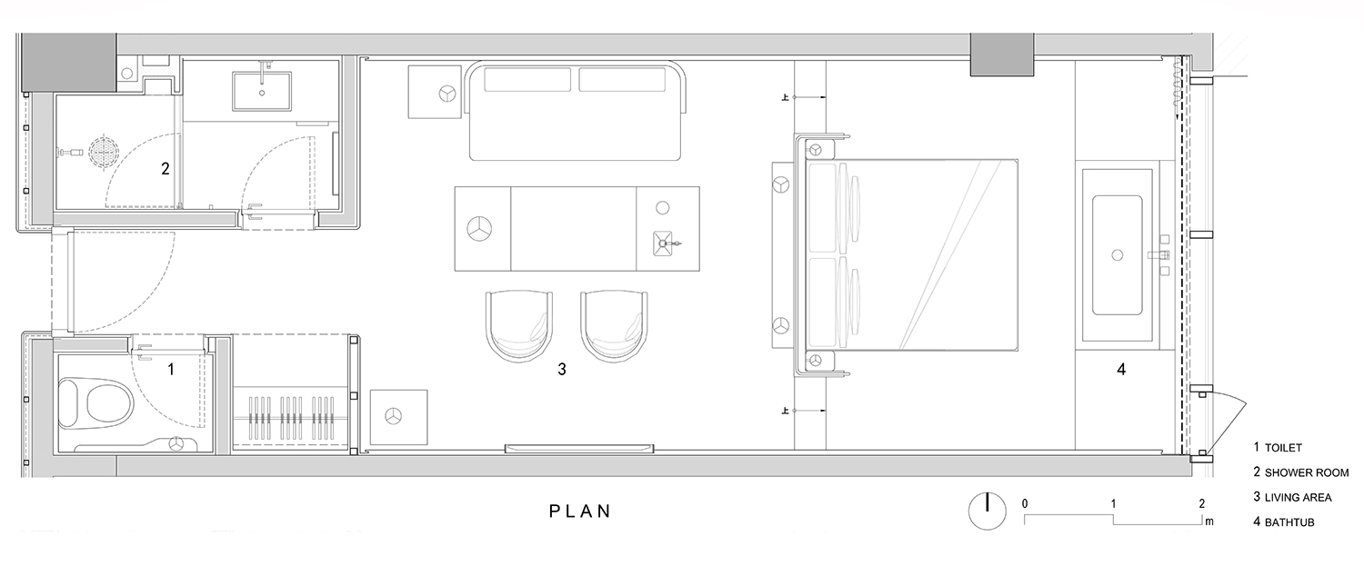
∇ 觀海標準客房平麵圖
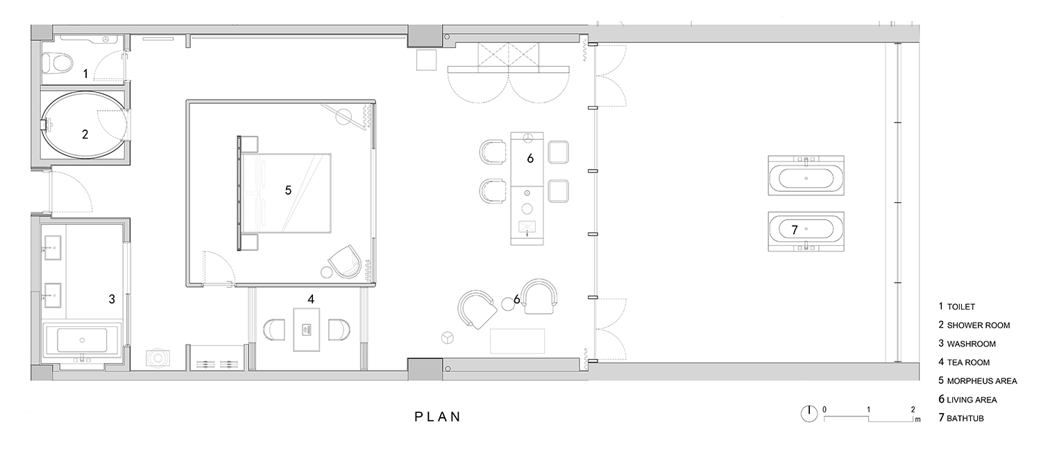
∇ 觀海套房平麵圖
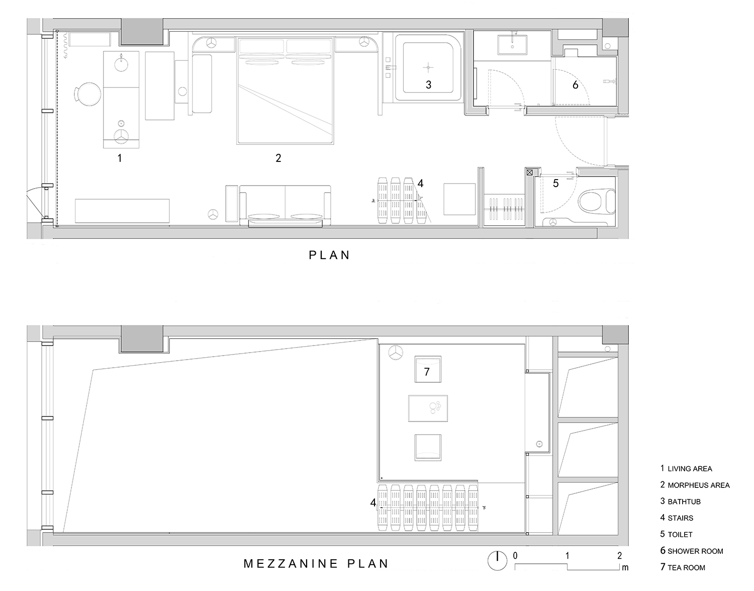
∇ 聽海複式標準客房平麵圖
∇ 一層平麵圖
∇ 二層平麵圖
∇ 三層平麵圖
項目信息
項目名稱:YIN Hotel 酒店室內設計
設計公司:北京複合建築設計谘詢有限公司
完成年份:2022
建築麵積(平方米/坪):2523㎡
項目位置:河北省秦皇島市昌黎縣阿那亞·黃金海岸社區
攝影師:吳學文
設計團隊:複合建築 X 百年建築,主持建築師:羅丁、張鵬 ,建築師:魏寧、林黛霓、袁恩東 ,駐場建築師:張雪瑩、王琛元
客戶:北京天地大美酒店管理有限公司
合作方:結構工程師:趙振旺 機電設計團隊:北京智通思遠機電設計谘詢有限公司,機電設計團隊(暖通專業):黃慶彪、奚晶,機電設計團隊(給排水專業)朱劍輝、舒鵬,機電設計團隊(電氣工程師):王庶宇、崔聰,建設方:百年建築裝飾工程(北京)有限公司
材料:鋁板,人造革,柚木地板,大理石,人造崗石,亞克力
品牌:YIN Hotel 酒店(隱廬)
































