一座城市的變遷,源於生活在這裏的人們。而相對於四周格格不入高樓林立的世界,這裏的人默默地演繹著市井人家的平常。在生活越來越快速的當下,適當地放慢腳步,去關注心靈、環境以及傳統,在工作和生活中找到平衡的支點。
項目位於市中心的一個老小區內,是一棟80年代建造的磚混結構單元住宅樓,房子該住宅樓的底層。原戶型為傳統三室一廳的布局,一梯四戶,從公共樓道進入。限於當年的建造條件,多年使用後,承重牆產生了多處貫穿裂縫,我們首先對建築做了加固。
∇ 分析圖
依托於混凝土材料極高的可塑性,正立麵牆、地麵為一體澆築,並通過橫豎向的雙向弧設計產生有趣豐富的立麵形象,內側弧形與樺木複合板組合成窗台坐凳。弧形入口內退,呈歡迎姿態,給過往的居民提供了避雨的空間,同時,也給進入到室內有了緩衝。門頭采用可翻轉設計,由雨量感應開關控製,可在下雨時開啟。
新增獨立基礎後在對應位置增設混凝土柱,隨後對原結構圈梁進行支撐卸載,拆除圈梁下承重牆,對圈梁進行增大截麵、外包型鋼加固。型鋼與增大截麵的混凝土采用直徑25mm、水平中心間距600mm的沿圈梁方向的對穿螺栓固定,使二者作為組合結構共同受力,並在鋼板頂部開孔,以便對鋼結構與混凝土之間的空隙進行高壓注漿。
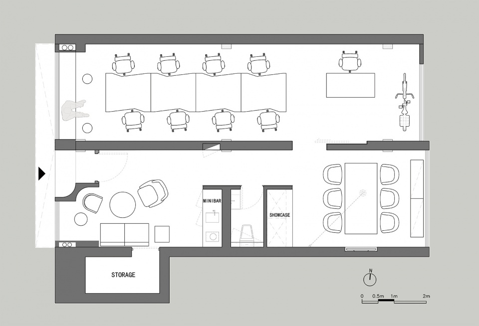
我們希望營造一個像家一樣的氛圍,又是集接待、會客、展示、辦公於一體的複合空間。通過改變原有的入口和廚、衛空間的位置劃分出了三個區域,空間及流線清晰,比例為2:1:1。設計手法力求簡單,從實用功能出發,通過材料切割劃分,創造出序列空間多樣的尺度及比例,同時又能清晰呈現出空間與細節的對比關係。
為保證表麵整體效果,所有木作製作均為無釘工藝,通過隱藏的榫卯、環保膠水連接。吊頂為可拆卸樺木複合板,定製的五金構件使得在線路、設備需要檢修時將吊頂板快速拆裝。
結構加固新增的不規則梁柱暴露在空間內,打破原有單一的節奏,在新舊對比的同時富有變化。玻璃磚牆的設計解決了內部采光的問題,同時又不會像實體牆麵那樣密閉堅實,玻璃磚的特性也預示著與周邊居民開放且包容的相處關係。
為了優化預製樓板導致的窄開間,我們對樺木辦公桌進行了重新設計,7°側身角增加了椅子的離牆距離,方便兩側的人員順利通過。同時這種斜向切割打破了空間直線條的構建,融入了新元素。
∇ 平麵圖
項目信息
項目名稱:未午建築事務所
項目類型:建築 辦公空間
設計方:VEIVE ARCHITECTS
完成年份:2021
設計團隊:徐益、施晨晨、嚴永華、胡玉香、盧閃閃
結構加固設計:馮李慧
項目地址:杭州
建築麵積:95㎡
攝影版權:盧閃閃
施工方:百穀營造
照明設計:光跡照明
家具:Enjoyspace、杭州羅文、黑白調
材料:混凝土、氟碳漆鋼板、樺木板、玻璃磚






















