“每每踏上旅途,他便得以更客觀地審視自己的生活。他總是能在旅途中保持清醒,並做出平時無法做出的決斷。”
— 保羅·鮑爾斯,《遮蔽的天空》
由如恩設計的RED PLUS工作室位於上海靜安區陝康裏創意園區內。設計師對舊工業廠房的二樓空間進行改造,將表麵累積的諸多材料層層剝離。逐漸顯露的混凝土骨架勾勒出空間輪廓,自然光穿過原有的屋頂天窗,充盈於內。每一棟建築,無論是否被烙印為曆史的載體,都擁有其獨特魅力。如恩發掘了舊建築的改造潛能,使喧囂都市中的平凡角落又有了重生的契機。
∇ 軸測圖
改造後的工作室空間可以根據不同的場景設定而靈活多變。這既體現了“遊牧性”與“不固定性”的設計概念,也呼應了RED PLUS在時尚及媒體領域的創意工作屬性。如今的創意人才穿梭於不同城市之間,提供專業服務,不再受限於地理位置或物理空間。類比而言,往來於RED PLUS的不同人群,也需要根據具體情況而靈活地改變工作空間。翻折於窗戶上的台麵可以放下來成為辦公桌;會議室的玻璃窗能夠根據使用場景在透明與不透明之間自由切換;沿牆而置的金屬移門滿足了不同程度的隱私和照明需求;中央公共空間的投影幕布徐徐降下,形成一個階梯式的放映劇場。
建築原有的每一處細節都刻錄了鮮明有力的個性。如恩謹慎地落筆,留下新的筆觸,使新與舊、當下與過去相互交融。隨處可見的金屬移門體現了空間的靈活多變性,而設計中使用的材料也反映了不斷變化的空間狀態。拉絲不鏽鋼與磨砂玻璃的空靈感,投射出空間環境的流轉;鍍鋅鋼與金屬網的使用則有意放大了材質的不穩定性,其逐漸顯露的腐蝕與褪色渲染了時間留下的烙印。工作室中的家具也由如恩為RED PLUS量身設計,包括辦公桌、工作椅及燈具,使空間更具整體性。
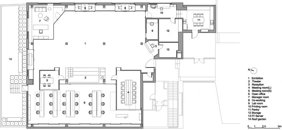
∇ 平麵圖
∇ 剖麵圖
項目信息
地點:上海
完成時間:2022年
業主:RED PLUS
項目內容:室內設計,產品設計
項目功能:辦公室
建築麵積:529平方米
主持建築師:郭錫恩,胡如珊
協理:陳思瑜
設計團隊:郭鵬,喬梁,李靜涵,Ath Supornchai,劉凱妮,吳震海
室內設計:如恩設計研究室
軟裝設計及采購:設計共和
施工總包:上海雅曆設計裝飾有限公司
攝影版權:朱潤資



























