古城西安,曲江池畔,一個三層的頂層複式住宅,從入戶到閣樓,這間422㎡的住宅於一片純粹素雅中喚醒家的氣質。返璞歸真,觀想設計用極簡現代的設計風格,在忙碌的鋼筋混泥土森林裏勾勒出生活的輕鬆模樣,擁抱靜謐本真的生活,寫盡現代東方詩意,打造心靈寄居之所。
01/
於可行可望之間
介入可居可遊
住宅的原始戶型結構本身並不理想,原有空間牆體繁多,布局分散,動線關係淩亂而複雜,設計師通過打通、擴建、再重組來實現空間的通透感,並巧妙的將空間中不可拆除的牆體重新做了空間梳理,改變了原有的失序狀態,最終確立了立體而通透的空間秩序。
設計從返璞歸真的東方哲學出發,廚房和餐廳的打通,通透的玻璃門,大麵積的落地窗,還有原有結構的柱子經過天然石材的美化,通過材質的變幻構築當代設計語境,使這個空間契合形成了對望、對話。
客廳裏的沙發與茶幾來自於著名品牌Minotti,其設計有著優雅而又現代的巴黎裝飾風格:純粹的設計、精致的材料、無可挑剔的做工、以及一絲不苟的細節創造出美妙的平衡感。這一切特性正與本案的風格不謀而合。
Minotti 沙發是一個年輕、充滿活力的座椅係統,幾何線條在充滿空曠空間的非常規節奏中形成了柔和體積的原始組合。流線型的美學風格與廣泛的座位安排自由並列,非常靈活而便於安排。
客廳內,大理石造型的茶幾與冷調定製的牆畫相互襯映,柔與剛、動與靜之間賦予空間靈動的生命力,提煉寧靜與安逸的環境和諧之美。
客廳是結構主義與功能主義的完美結合之所,觀想設計以理性設計勾勒空間結構,用細節處理表達情感,注重韻律與秩序感的營造,於可行可望之間,介入可居可遊的空間片段。
02/
在紛繁中建立秩序
取消原有隔斷,設計師將餐廳和廚房打通,增加了自然光線的引入,同時擴大了用餐視野,讓空間的構成保持了一種更為開放和通透的可能性。當自然光納入室內,流動的氣韻交融,打破原有的界限。屋內屋外,人與自然,虛實相生,詩意升騰,讓人能夠靜享當下。
餐廳上方的燈與空間的配合也很是點睛,從廚房、餐廳、客廳這樣一個大開間又獨立存在的空間裏,隻感受到舒心、平和,空間裏充滿了現世安穩歲月靜好的精致感受,這種情緒的表達,是技術性和自然心靈和諧的融合。
空間的過渡虛實借景,隔而不斷,於通透之間形成對話,以東方之詩意若隱,回應現代主義之闊達。
本案的櫥櫃來自技術處於全球最前沿的Häcker。Häcker用先進的技術,嚴謹的設計和最大的舒適度的結合使廚房空間與眾不同。
極簡並不等於簡單,而是在紛繁中去建立一種秩序。設計師將線條貫穿於整個室內空間,利用線條的交錯穿插建立出富有韻律感和動感的活躍空間,具有濃厚的設計感。
大塊麵的線條和色塊讓整個空間整潔大氣。在灰與白相互呼應的空間中,探索東方哲思啟迪下,材質和光影演繹的宜居實踐,以空間寫詩。
在色彩應用上,設計師選擇了簡潔的黑色,白色,灰色作為空間的主色調,同時采用了富含自然紋理的石材和木紋材料,為空間增添活力。
一樓的公共區域和門廳處實現了基本的功能需求,同時設置了設備間,洗衣房,通過幹淨素雅的定製產品,把門廳的功能隱藏。廚房和設備間去掉了所有不必要的設計,創造出以簡約為特征的空間,“大道至簡,衍化至繁”,越樸素的設計反而越顯高貴。
樓梯坐落於客廳一側,設計師運用極簡現代藝術的設計手法,融入木雕、木紋、中式扶手椅等人文藝術,在空靈與東方意境中凝練出獨特的空間氣質。
樓梯作為連接空間的存在,設計師在這裏創造了可以休憩、靜處的“角落”。它們是記憶的片段,是時間的圖像,也是生活場景的容器。
03/
越簡單、越舒適
二樓主要以臥室和茶室為主。私密空間通過色彩的不同運用,得出空間不同的心理感受。細致的窄邊框門,極簡的天花,所有空間的收口係統,還有那種隻有在靠尺之下才看得到的工藝,無需過多的描述,這種體驗將會存在於記憶裏。
主臥室延續了公共區域的風格,采用極簡現代的設計風格,詮釋越簡單、越舒適的美學原則,全景落地窗搭配優雅的皮質軟包床和深藍色沙發讓整個空間清爽又高級。
本案臥室裏所有的床和沙發家具大部分來自於中國品牌——班蘭。SUPER NORMAL,是班蘭對於中國現代風格的詮釋,第一眼是“普通”的,不凹造、不張揚。而更多的追求“耐看”和“別有洞天”。這也是中國傳統藝術精神的格調與表達。細細深究,外化的空間、功能、細節裹挾的是內裏的坐望,沉著與煉達。
在主臥空間,觀想設計用去符號化的設計手法,通過刻畫自然舒適的氛圍,回歸當代設計的精神本源。
步入次臥,設計師彙入自然符號、線條元素,讓人們在此放鬆心中緊繃的弦,從匆忙的生活節奏中抽離、回歸、治愈,然後關照內心。平滑的線條,調適安然的色調,如一劑良藥,靜和治愈。
主臥裏配套設置了衛生間,開放的洗漱區能承載更多的功能性,細心的設計讓一切緊湊卻不擁擠。橫平豎直的線條,仿佛在訴說著一個幹淨利落的空間故事。
步入茶室,設計師刻意以現代主義去改變傳統茶室一貫的含蓄與靜默,以大麵積陣列的落地開窗尺度,突破傳統窗景幽微的采光樣貌;以素靜的白色牆麵為底,修長簡潔的茶席像慢慢展開的一幅長卷,古老的美學在追求純粹的現代設計中卸下了包袱。
04/
返璞歸真間 勾勒輕鬆
三層的閣樓上,設計師保留了原始三角頂結構,通過對稱式開天窗,在空間的體塊與樓層之間,尋找一種趣味,由此創建自在的尺度。
麻將沙發(Mah Jong Sofa)由德國籍著名設計師漢斯·霍普費爾設計。他是一位偉大的畫家,雕塑家兼設計師,在羅奇堡(Roche Bobbis)品牌的發展史上功勳卓越。在20世紀70年代,Hans Hopfer創造了Mah Jong Sofa,該係列被羅浮宮裝飾藝術博物館的MobiBoom 現代家居展收藏,並成為現代設計的裏程碑。這種完全模塊化的低座位係統的形式自由,允許打破設計模具,並鼓勵一種全新的組織生活空間方式。
古人崇尚“大道至簡”,生活亦主張“簡”。這種追求簡單、本真的智慧,在三層空間的色彩運用上,體現更加明顯:廣泛使用了原木、玻璃等簡約素色,舍棄繁複的裝飾,以木色與白色打造寧靜淡泊、格物怡情的雅室格調。空間內幹淨利落的線條,充分展示了什麼是空間之美。簡約的氣質,拋去繁雜,勾勒出輕鬆生活的模樣。
大宅至簡,少即是多,在返璞歸真間,勾勒輕鬆模樣,當代與傳統融合之餘,寫盡現代東方詩意。
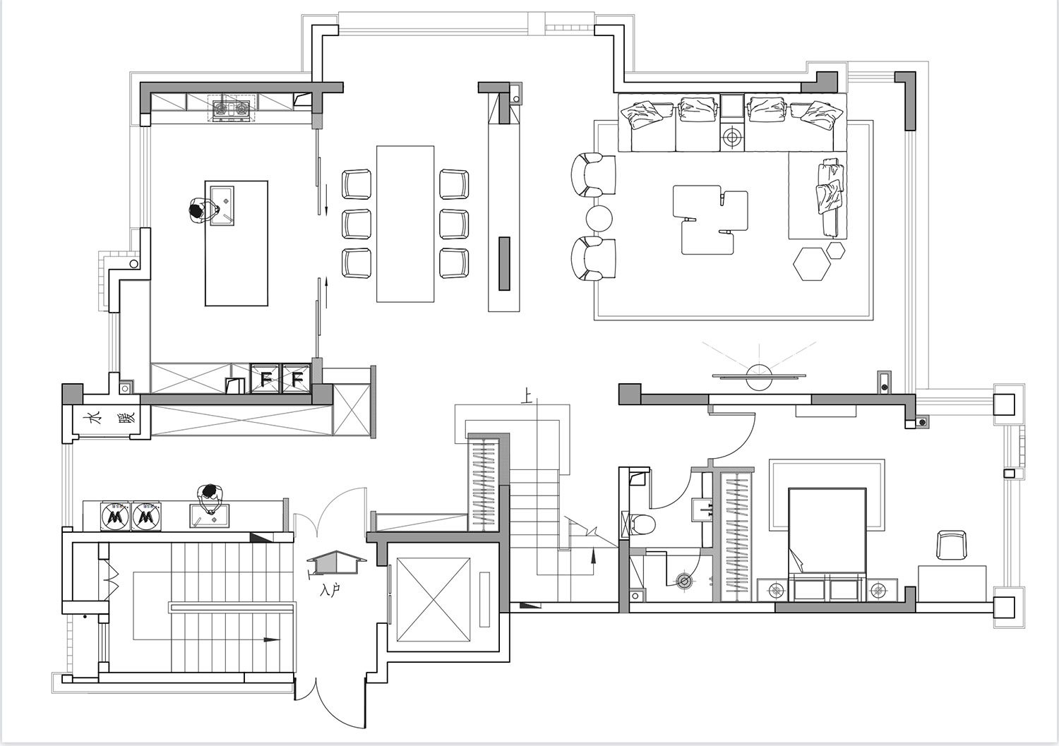
∇ 一層平麵圖
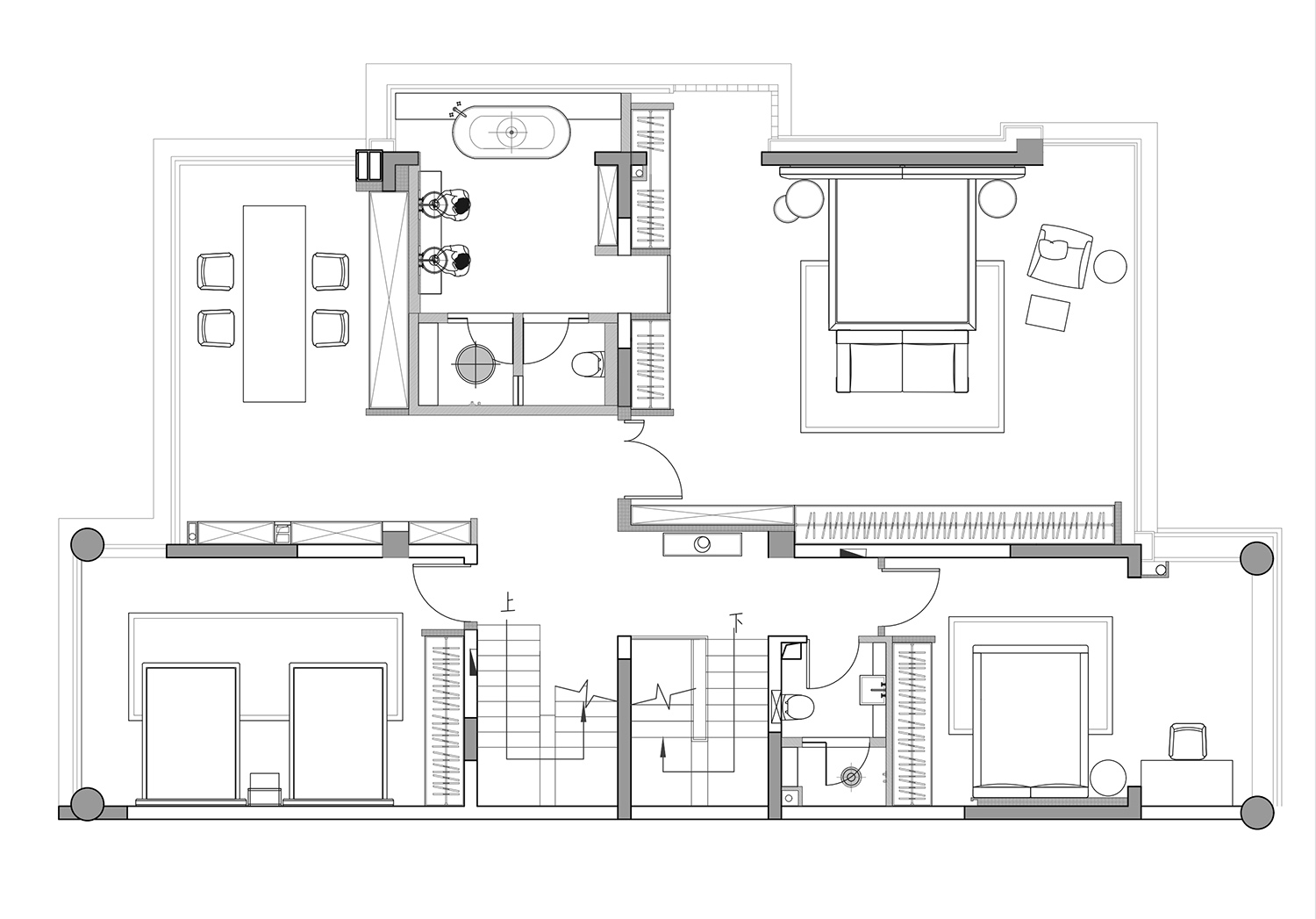
∇ 二層平麵圖
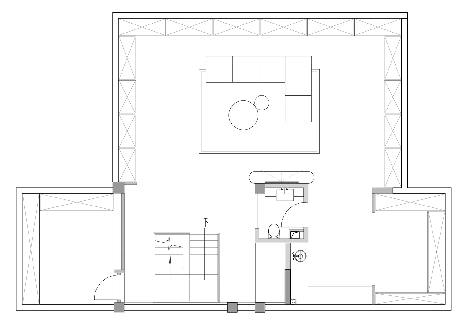
∇ 三層平麵圖













































