盧境婷醫生是一位非常專業的口腔科醫生,擅長各類複雜的正畸治療。該項目是盧醫生的私人口腔診所。正畸治療是一個痛苦、漫長的過程,患者需要按療程一次次走進診所治療。整個過程是對患者勇氣與耐心的考驗。棲斯希望診所空間本身能給患者帶來積極的影響。從人的感受出發,打造出一處具有溫柔力量的口腔診所。
項目場地位於一條商業步行街內。大尺度的、醒目的門頭增強了診所的昭示性。纖細的金屬框將各元素整合在一起。通過控製比例,燈箱內各個要素呈現出優雅的尺度和嚴謹、理性的第一印象。診所分為兩層,營業空間被設置在一層。二層設置輔助功能。較小的的場地麵積與口腔診所需要的多種功能空間形成了該項目的主要矛盾。
∇ 入口空間構成圖
為了退讓入口空間,谘詢室和診室沒有處理成方正的矩形。通過操作形態,在滿足診療功能的前提下,診所獲得一個寬裕的入口空間以及較長的對外展示麵。陽光也得以更多的進入深處的空間。退讓後的界麵形成了有機的形態。弧形的牆麵消解了空間的邊界,將等候就診的患者包裹在柔和的空間中。
醫導台通過線、麵構成變得輕盈。金屬管讓人聯想到固定牙套的鋼絲。特殊定製的金屬構件強化了亞克力展板與醫導台之間的連接關係。它們構成了正畸的隱喻並且暗示了空間的功能。
每個功能用房的門牌采用特殊定製的燈箱。柔和的光源被纖薄的金屬框包裹,顯得溫和而精致。均勻嵌入牆麵的豎向線條充當不同材質的銜接要素,也強化了空間的秩序感。將醫療空間理性、嚴謹的氣質融入溫柔的氛圍中。
谘詢室是患者進行預檢的空間。帶均質背光的展架營造出莊重的氛圍。醫生的專業證書陳列其中,增強了患者的信心。 拱頂覆蓋的範圍限定出預診區。牆、頂麵呈現環抱的姿態,為患者增添安全感。
診室內牙椅靠牆放置。當患者躺在牙椅上,近距離感受到牆麵的自然肌理,產生放鬆的聯想。有助於平複患者的焦慮情緒。旁邊的家具則呈現出秩序感,並且營造出理性、可靠的氛圍。
醫生與護士需要方便快捷的在兩個診室之間穿行。棲斯在兩個診室之間設置了移門。由於空間的聯通,人的視線獲得了延伸,光線也得以更多的進入內側的診室。在自然光下,牆麵、家具的材質肌理變得更加細膩動人。兩個診室獲得了更自然、親和的氛圍。
∇ 軸測圖
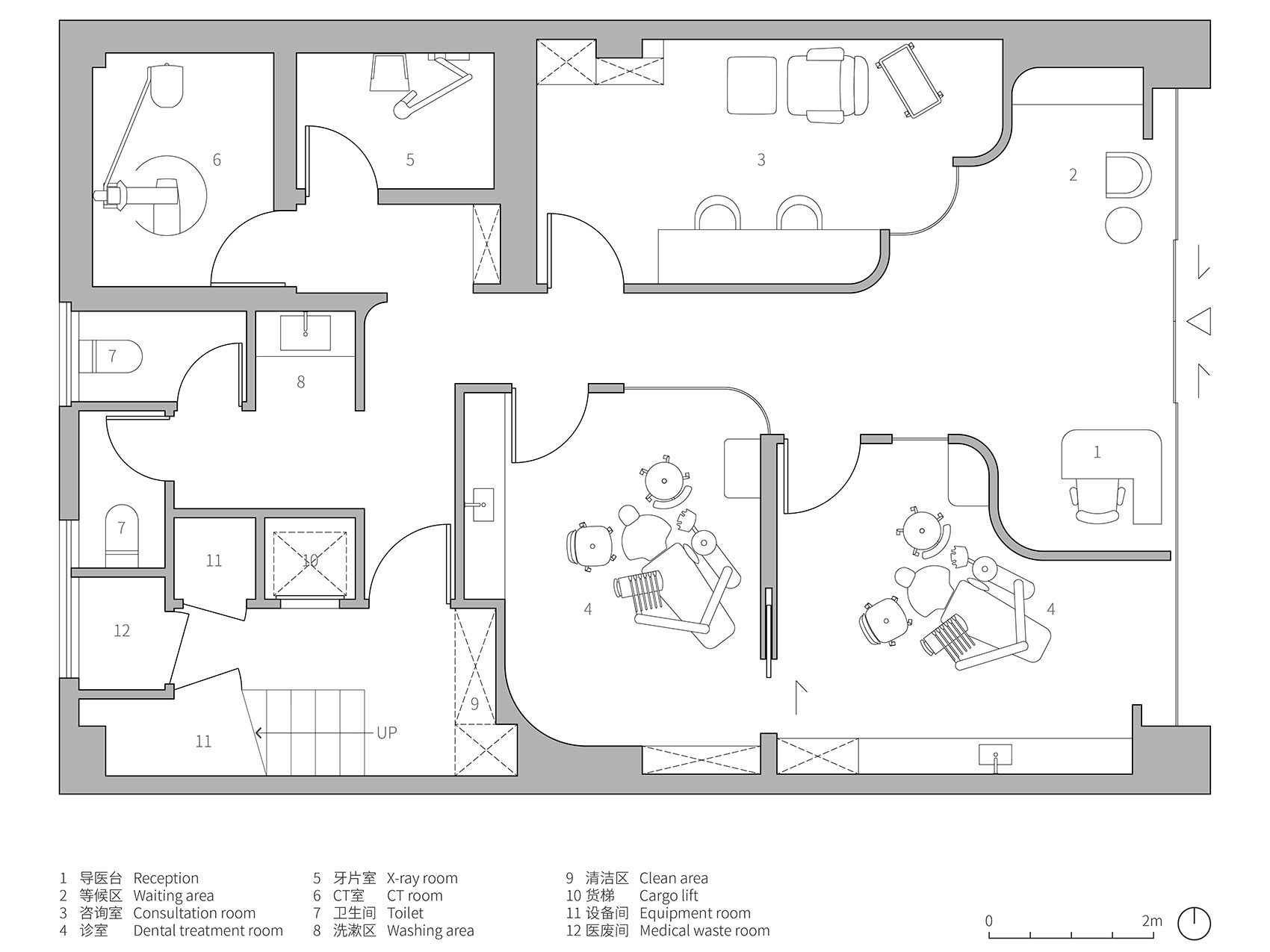
∇ 平麵圖
項目信息
項目名稱:上海盧境婷口腔診所
項目類型:室內設計
設計方:棲斯設計
項目設計:2021.8—2021.9
完成年份:2021.11—2022.6
設計團隊:主創設計師:陳茜茜、傅翀;團隊成員:陳茜茜、傅翀、單仁傑
項目地址:中國(上海)自由貿易試驗區臨港新片區山蘭路
建築麵積:107㎡
攝影版權:呂曉斌
客戶:上海盧境婷口腔診所
材料:藝術塗料、不鏽鋼、玻璃、瓷磚


























