風景總是在遠處,可我們無法將天際全攬於方寸內;風景總是有光影,可我們無法在室內追雲逐日;
風景總是具象的,可我們無法移山造景;風景總是帶給人許多美好的情愫,它既是自然發生的,又是人文再生的,它散發著讓人心曠神怡的力量,溫暖而堅定,像是在努力將我們的心靈提升。
多數的自習空間是要求處在一個定向的功能目標裏,每個人都有自己明確的活動,所有空間中的物質存在都需要服務於個體的目標中,於是這個人造空間處理得稍有不慎,便會成為人的意識活動之束縛。當我們意識到我們在空間中所建造的所有,具有風景般的屬性——會反向地影響在空間中的每一個人時,我們參照了風景。因此,我們想在滿足定向的客觀要求下,給自習空間注入風景般的體驗,一個微微向上的力。
柔軟而堅實
這裏的風景,不是生硬地搬弄造型,不是臨摹景致;這裏的天際注定是在近處的,舉手登高便可及;這裏的光影注定是人文的,點線交織;這裏的景致注定是抽象的,棱角分明。我們在整體的空間中植入了五個互相映照的體塊,分布於公共區和自習區,它們串聯起了空間的功能流線——前台接待、雙人研討、多人自習,也建立起了整體風景的脈絡。我們有意的將體塊拔高,升高的體量似乎帶來了類似“景觀”的形象作用。但往往高大的形態會給人產生一種疏遠的距離感,特別是在講究高效利用的功能空間中,這種距離感,反而把空間引向了逼仄,人與人之間的關係也更加緊張。
通過造型上的不斷推敲,我們發現在向上的延伸過程中,體量微微向外展開,形成上大下小的勢態能給人帶來一種遮蔽感,這很像峽穀、大樹的意向。而為了體塊的造型能更加的柔和,並且最大化的抵消形態給人的壓力,我們避開了傳統硬質建造材料,選擇親和肌理的布料作為體塊的外衣。我們設計了特定的造型輪廓語言,通過將預製的木構件拚裝組合成支撐骨架,再覆蓋布料塑形和收緊,有意將骨架的輪廓線顯現形成一種柔軟的張力。在這件柔軟外衣下,似乎也由一個堅實的身體——當我們穿行於空間中,偶爾地駐足相遇,像是來到了一個巨大的身體遮蔽下。
∇ 軸測爆炸圖
朦朧而清晰
而,風景又是朦朧的,虛實相映,輕重相替。位於開放自習區的兩個體塊,佇立在自習區的東西向主通道上。初晨太陽從地平線上升起,光線越過沿窗的自習桌椅、穿透布料外衣的縫隙與開口,輕盈地驅散了體塊遮蔽下厚重的陰影——喚醒了這兩個巨大的身體,仿佛正等待著最早的客人到來。隨著時間的推移,陽光退到窗外,室內處於均質的自然光之中,體塊豐滿多變的輪廓變得清晰可見。
研討室是對隔音及私密性要求比較高的空間,為此,我們在圍合空間上運用了更多的實牆,以滿足使用者對體量厚重感的心理需求。而當體塊外部穿上布料外衣後,我們利用布料與實牆間所形成的腔體作為照明位置,當光源從腔體內透出,清晰的月牙型輪廓和虛化的縱橫龍骨陰影,交織地投射在布的表麵上,產生了一種照明條件下的輕盈,與研討室內部的塔型空間的厚重形成了互補。而在開放自習區的照明設計上,我們設計了拚裝式線型燈具、大跨度的懸挑結構及鋼絲繩的運用,發光的開口位置盡量避開人的視線,減少光源的存在感,讓燈具在高空中還原成一個個縱橫交錯的木構件,弱化了光源的視覺含義,最大化的將頂麵營造成一個個發光麵域。懸浮的木構、暈染開的光線,將自習區營造出一種輕盈、靜謐的氛圍。
風景裏有顏色,這是來自哺育它的大地。白色,顯現了這裏天空和地平線純淨的麵貌;未染色的亞麻布使得材質本身更具天然、親和的屬性;裸露的鍍鋅鋼管與多層板拚裝鎖扣細節在冷暖對比中,也突顯了材質聯接上的有機感;而在微光區內,明黃的人造光源通過造型牆上的三角舷窗,投射到內部的牆麵上,時間被定格在了午後。風景裏有人,在畫裏,又在畫外。
自習區的私密性一直是自習空間的訴求,我們想在個體的私密性和整體空間中找到一種平衡。為了保證單獨座位的私密使用,我們在單人桌間設計了可收納的布隔簾,臨界於視平線的高度讓自然光線和人的視野能夠延伸至遠端;在開放區和自習區的隔牆上,我們留出了一個通高的玻璃麵,同時在微光區的牆麵轉角處創造了一個獨特的三角形開口,並且在自習明區的角落裏又豎起了二層塔樓空間。這與自習區的兩個布衣體塊的不同開口朝向相得益彰,使人與人的視線在休憩時被分散到空間的各個角落,看與被看間,思緒也遊離出了案頭。
風景,想起來,又是輕柔的,靠近它時,被微微提起,來到心頭。
夜幕降臨,點亮光源,仿佛輕盈的燈籠般即將升起,當靠近時,你將感受到一股微微向上、引向高出的力。
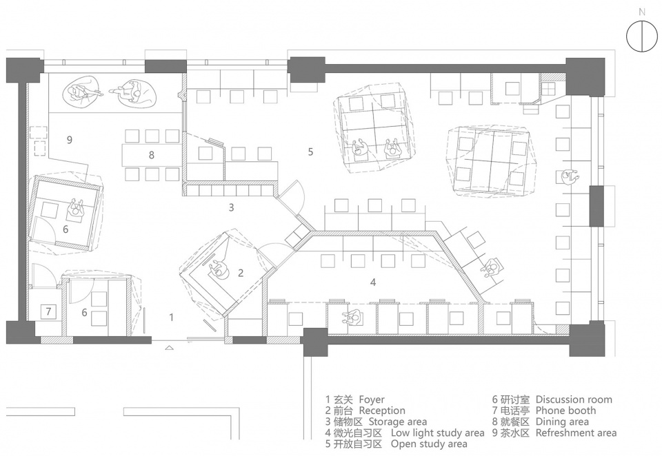
∇ 平麵圖
項目信息
項目名稱:天際自習室
室內及家具設計:多麼工作室
設計時間:2023年4月&建成時間2023年10月
設計團隊:陸誌毅、王維、盛樂、沈昌海(實習)
項目地址:上海,中國
建築麵積:140㎡
攝影版權:林山Film & 多麼工作室





































