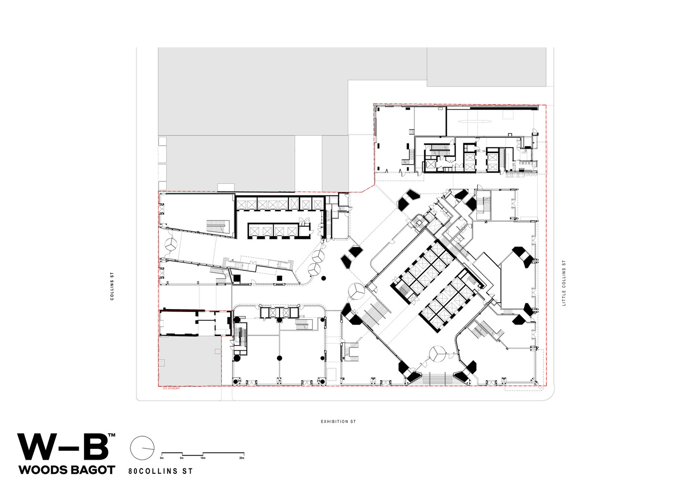
親密感在 80 Collins 中得到了提煉,這是 20 多年來引入柯林斯街的第一個高端混合用途城市街區。有四個部分——一座新的商業塔樓、一座酒店、一座現有的商業塔樓改造和一個連接整個街區的裙樓基地。著名的列入遺產名錄的瑙魯之家(北塔)的遺產是設計方法的催化劑。然而,對於新的南塔來說,要與 101 Collins、120 Collins 和 Collins Place 相比,差異化是關鍵。
墨爾本的近距離研究場地之外的城市結構——巷道和地標——形成了一個新的城市縮影,將自身與地麵緊密結合。隨著新的現場連接網絡的建立,人們也重新參與了從小柯林斯街到柯林斯街和展覽街的數十年行人運動所形成的願望線。每個塔樓門廳都具有貫穿式的可達性,以進一步增加場地的滲透性和塔樓居住者的直接連接。零售店是通過多層巷道繪製,租戶通常有不止一個正麵——在其中創建活躍的節點,這些節點具有豐富的發現和從街道上可見的特點。
零售足跡與柯林斯、展覽和小柯林斯街的對齊鼓勵了一種長期記憶的激活,這種激活會滲入街道邊緣。貫穿站點的連接通過街道和巷道的層次結構,支持墨爾本現有的獨特的行人激活 DNA 貫穿整個城市。混合用途城市街區的設計源於柯林斯遺產的節奏,並通過塔樓向上產生共鳴,與各個層麵的環境相呼應。
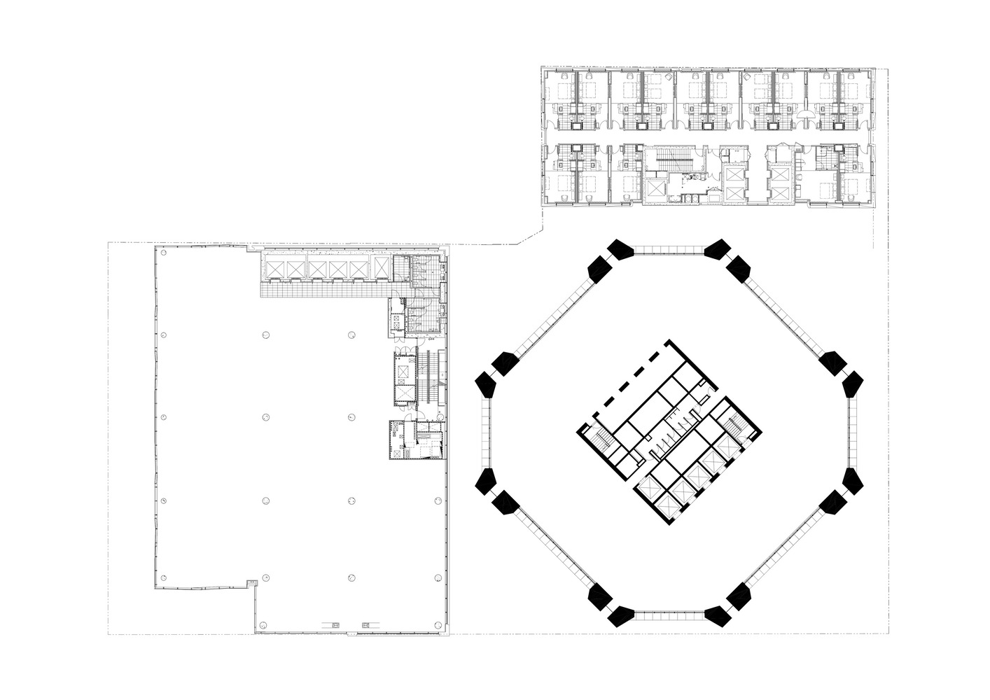
受到柯林斯街曆史悠久的街燈的啟發,南塔的多麵玻璃外牆升上天空,本身就是一盞燈籠。在日光下,刻麵是光與影的相互作用。到了晚上,褶皺中排列的離散照明照亮了雕塑般的幾何形狀。這座塔在白天和黑夜都閃閃發光,是一座燈塔。立麵還管理進入室內的日光,鞏固了其設計的勝利。12m 懸臂式“燈籠”的鋼桁架支撐了上麵 30 層的辦公空間。高聳於街景之上,塔樓與裙樓清晰而明確地分開,其形式由兩部分組成——後部“樹幹”,以及較輕的附加和多麵玻璃組件。
∇ 平麵圖

























