空間不被風格定義,隻被生活本身塑造
在北方內陸打造一個加州度假宅邸,可能嗎?此次案例中,融宅設計通過對業主性格喜好的極致挖掘,漂洋過海全球選品,最終呈現出這樣一個藝術與舒適兼具的加州融合風度假屋。
業主從事跨境電商行業,極具藝術敏銳度,在看了過往作品之後,隻用了5分鍾便決定選擇融宅設計。
“ 驚喜無比”,這是業主在項目落地後多次給我們的反饋。沒有刻板的設計手法,每一處都是依照業主的生活方式量身打造,正是成就這個空間的關鍵所在。
打破純美式風格,300平大平層的極致融合風
明確業主的真正需求與喜好是所有設計的第一步。在細致溝通中,融宅設計發現業主提到的傳統美式風格並不足以充分概括業主的喜好,並重新確定了整體的設計關鍵詞:融合的折衷主義,不拘泥於某一個風格框架內,而是以多地域多風格的元素混搭,打造富含藝術氣息,又極具度假氛圍的家。
大膽“破局”,空間氛圍與生活情緒的巧妙交疊
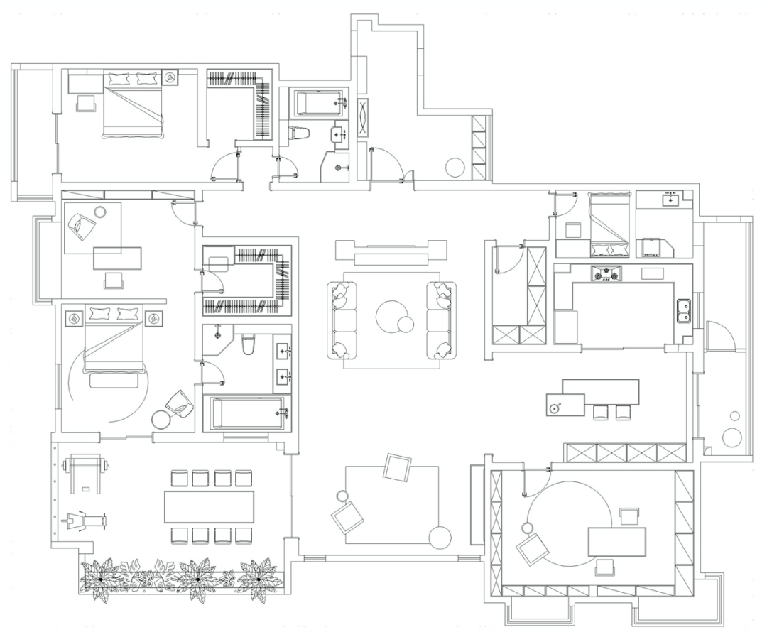
空間的想象力不應當受到硬裝結構的局限。原始戶型的多牆體結構不僅沒有增添300平空間的實用性,還讓住宅顯得非常逼仄。融宅設計拆除了所有冗餘牆體,通過軟裝搭配強化各個功能區之間獨立又相容的關係。
∇ 改造前戶型圖
∇ 改造後戶型圖
雙客廳:拒絕定義,尋求藝術與生活的共生
主副廳在軟裝配色與選品上的區分讓它們既極具辨識度,又能融合共存。
主廳作為正式會客區,選擇了法國Liaigre的白沙發搭配Zamani手工波斯地毯,純白與勃艮第紅的碰撞極具藝術張力。
輔廳則以Rochebobois麻將沙發搭配Visual Comfort&Co落地燈,由Kenzo大師設計的“晚安”係列花布為輔廳增加了更多的沉靜自在感。
差異化之外,更有融合。主副廳均在天花板的設計中還原了舊有的木飾麵,中間用一張定製的藝術畫作巧妙地銜接。
餐廳與廚房:站在生活裏觀看藝術
柔和的餐椅曲線消融了直角餐桌的冷硬與棱角,餐桌旁的藝術牆風格多樣又不衝突,讓藝術牆擁有更加自由的表達,既有傳統質感又有摩登氛圍。
主臥與露台:遊走自然之間,棲於市而隱於市
在北方內陸城市,自帶露台的戶型十分少見。融宅設計將原始戶型中的起居室與主臥位置對調後,主臥直接與露台相連,拉開窗簾就能開啟加州度假模式。
露台通頂的木飾麵不僅是家中原木元素的延伸,同時也打破了傳統露台規則的套路感,業主可以在暖調氛圍中享受日光,好像時間都在這裏慢了下來。
藝術感點綴,靈活打造多元空間氛圍
如果說軟裝家具的選擇是空間打造的基石,那麼藝術掛畫就成為串聯起整個空間的隱形線索,將藝術度假感融入空間的每個細節之中,與融合折衷元素共鳴。
融宅設計邀請青年藝術家徐新武先生創作了客廳的掛畫,他還在畫作中巧妙融入了業主姓名中的“山”字,紅白交織的色調溝通起主副兩廳的不同氣質,讓多元融合的氛圍在空間中流動。
餐廳藝術牆是融合風在空間的進一步體現,不同元素的藝術作品在此融合共生。
書房采用了相對克製的木質元素,書桌側麵是蔣友柏先生的《點石成金》畫作,畫中是業主喜愛的猛獸形象,既有西式的表達,又有著獨屬東方的寫意灑脫,同時還附有一首蔣友柏先生專門創作的英文小詩。
“Not knowing what will come.
Not sure if I can see the sun.
But I can make sure I will try.
For the sun won’t come if I do not.”
起居室內明黃色的《天鵝》畫作掛在壁爐的正上方,成為該空間的點睛之處,適當的對稱與木質元素的運用為起居室帶來了略有古典感的溫暖放鬆。
複古氛圍的營造離不開細節的雕琢。主臥內同樣可以看到民國時期的繡片,這些獨具特色的元素如同音符一般,在整個家的空間中跳躍,譜寫一支別開生麵的鋼琴曲。
當日複一日的重複裹挾我們前行,設計可以豐富“家”的意義與靈魂,讓居所成為靈魂的庇護所。空間不應當被風格定義,無需沿襲任何設計模板,你的生活經曆是塑造家的最佳模本。
空間不應當被生活定義,我們的經曆是塑造家的最佳範本。
項目信息
PROJECT 項目 / 紫薇公園時光
DESIGN TEAM 設計團隊 / Hybrid House Design 融宅設計
AREA 麵積 / 318 ㎡
PHOTO 攝影 / l’atelier de LEON




































