Turramurra Threads位於新南威爾士州的Turramurra,在眾多現有的遺產住宅中,將現有的維多利亞式小屋改造成現代而體貼的家庭住宅。原來的臨街立麵被修複,僅瞥見街道提供的兩個新的現代後亭。
原來的單層小屋與其後坡花園斷開連接,因此利用率很低。現在,一係列生活平台融合在它所在的景觀中,沿著平緩的傾斜場地走下,包含相互“凝視”並慶祝自然環境的活動。
一對拱門,一個現有的和一個新的,構成了每個區域的入口點。中央起居和廚房區位於庭院和花園之間,臥室下方,下層甲板和泳池區上方,為年輕家庭創造了一個中央集水區。包括廚房、儲藏室和洗衣房在內的“服務區”定義了起居區的南側,而深遮陽篷、高高的天花板和帶板條的屏風可以保護室內免受西方陽光的照射。沐浴在平靜的氛圍和充足的自然設施中,連接新舊的中央庭院邀請漫射的光線和東風穿過空間。
在後院,娛樂平台由一組傾斜的石階連接,引導居住者繞過現有的藍花楹樹。這種運動感在項目的完成中得到了加強。在新地板、襯板和板條屏風的線性線條中,內部調色板將中性色調與柔和的節奏感相結合。柔和的光線從朝西的門、朝東北的庭院和朝南的天窗射入,讓光線在一天中的微妙紋理上發揮作用。
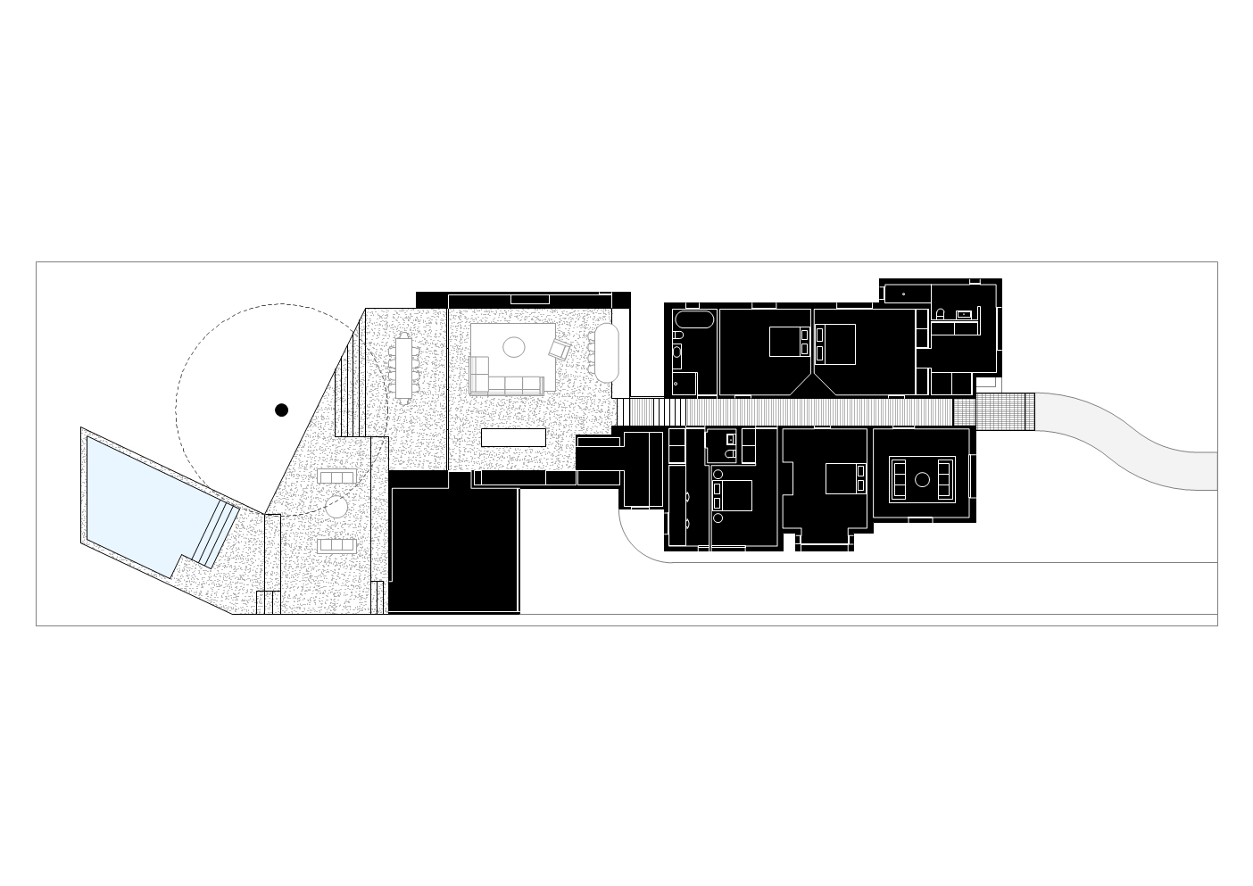
∇ 平麵圖
∇ 軸測圖
版權聲明:本站所有文章除投稿授權發布外,其他文字內容均為原創,享有著作權保護,未經許可不得以任何形式進行轉載(包括且不限於:媒體、網站、公眾號等)。所有項目照片/設計圖形版權歸原作者所有。本站部分內容源自網絡公開資源或用戶分享,如若侵犯了原作者的合法權益,可聯係我們進行處理。

























