2022年,雲行設計將園區的廠房改造為設計工作室。在創意園區的工廠環境中構築一個新的辦公空間,我們希望保留它原來的印跡並賦予它新的活力,空間內置出多個體量,在原建築和牆體之間圍合出新的場域,空間之間保持流動性,立麵黑白灰作圖底,通過留白轉折剝離拉開層次,將室內氛圍變成一種獨立的元素。場地空間與園區廠房的肌理進行對話,注重空間打造和界限的融合,讓人對空間的理解有新的啟發。
開放
由工業廠房改建,保留原廠房的預製混凝土板,融入美學理念,簡約高效、有質感、收放自如。
∇ 軸測圖
入口的戲劇感始於一個圍繞木盒子的狹窄通道,需經過廊道轉折後進入內部空間到達接待區,行進的過程中迸發出新的空間情緒。暗藏衛生間和儲藏間的木色盒子與吧台形成聯動,黑匣子的樓梯,二樓懸挑在吧台上方的玻璃盒子,幾個看似隨機錯落放置於空間中的體量,實則為精心放置,體量外部辦公區、接待區和材料間與體量內部前台、衛生間、樓梯及會議室,內與外關聯共生。
回歸
注重自然和細節的打造,這裏彌漫這淡淡的自然氣質,讓親和力倍增,除去浮誇的吸睛裝飾,僅靠簡潔的造型和板材的質地,就成為空間中不可或缺的存在。
大麵積使用樺木板,在牆板櫃門上形成統一化的視覺語言,原始結構和頂麵白色乳膠漆形成空間的留白。接待區是辦公室中唯一挑高的區域,配合原始廠房的結構和肌理,營造輕鬆和隨意的氛圍。休息區的大樹,打造植物和空間的共生體,一個舒適的有氧循環係統。
純粹
在都市的喧囂中,設定一份別樣的辦公情境,滿足現代人對情懷的個性化追求。南向牆麵的整麵牆體的書架一直貫穿到二樓,一樓窗戶做成飄窗,二樓欄杆。黑匣子解決空間的垂直交通,樓梯以下的空間置入了儲藏間,內向景觀等,作為整個空間的大體量,除了樓梯入口的開孔,在幾個側麵用分割和穿透的方式讓黑匣子在不同角度呈現出一定的變化。
內容上聚焦功能,闡釋美學的當代設計表達。一樓上來的樓梯內部為雙向走向,書架造型分流的同時隱喻知識的支撐力量。二樓休息通過櫃體的圍合創造出一個相對獨立的區域。在辦公環境融入造型設計,打破普通的空間體態,開闊的空間和不拘一格的建築結構,帶來輕鬆、自然的體驗感。
意與境,情與景,內與外,
剔除繁雜,用極簡回歸淳樸,
將自然肌理發揮到極致,
將恬淡格調呈現於眼前,
在安暖溫潤的港灣中映出最清麗的模樣。
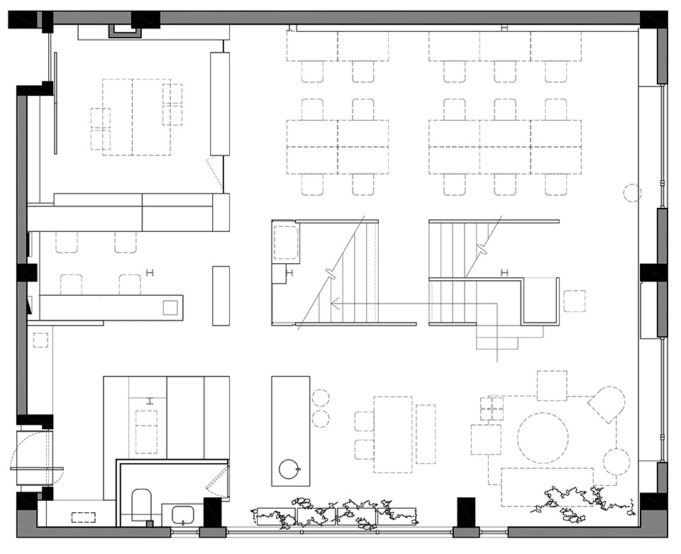
∇ 一層平麵圖
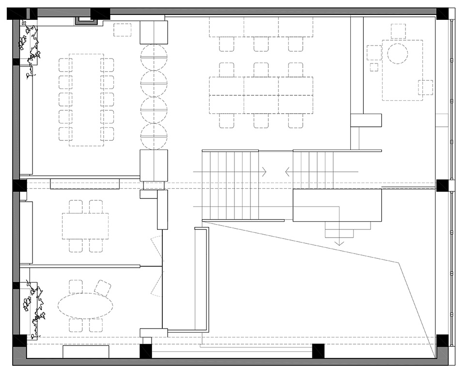
∇ 二層平麵圖
項目信息
項目名稱:場所的自然表達
項目類型:工裝設計
設計方:雲行空間建築設計
項目設計:2022年
完成年份:2022年
設計團隊:潘天雲、張靜(執行)
項目地址:江蘇南京
建築麵積:290㎡
攝影版權:吳昌樂
材料:樺木板、瓷磚、鋼板

































