愛,是家的內核
愛惜它的人
把每個看似的簡單和質樸
都打磨千次
每個細節裏都注入了
關於愛的傳說
順勢而為的空間
我們沒有權力真正的改變空間,僅僅憑借渺小的能力營造適度的生活區域。
迎風而來
乘風而去
不刻意不偏執
如人著衣
空間亦是如此
設計師的任務,是基於業主的需求和感情,因地製宜,順勢而為,賦予一點點獨特而深邃的改變。如果可能,根據業主的功能需求和審美品位,考慮一點文化藝術內涵,考慮一點精神層麵的升華。
生活,無非是加法與減法的平衡。設計亦如此。純粹的設計語言,在簡單中亦能創造豐富的體驗。簡潔的線條、融合的空間布局,既詮釋了設計的內涵,也滿足了業主舒適大氣的設計要求。
在追求極簡道路上,放棄無畏的堆砌,著重材質的本身質地和色彩的對比、融合、滲透,豐富了空間的視覺層次。簡約而不簡單,是客廳最大的亮點。在視覺上整潔歸一,品味上也更加優雅,讓顏值與功能性並存。黑白色調,材質搭配,增加了空間的沉澱。
客廳餐廳開放式一體化表達,讓空間最大化,呈現寬敞的視覺感受。客廳、餐廳的鏈接關係讓人與空間、生活形成更強的聯動關係,這一切也更具有“家”意義。
餐桌與茶幾,兩個圓形成有趣的互動,像是藝術家康定斯基在畫布上自由地發揮想象空間,遙相呼應,相映成趣。
不可辜負的陽光
光的造型千變萬化,是來自大自然的饋贈,為居家生活帶來詩意。
一天的開始與結束,從清晨到夜深人靜都在這裏被細膩解讀一陣微風 一縷陽光。
江景無敵,以光作畫,唯陽光不可辜負。設計師最大限度地引進自然光線,讓自然與空間相融,讓陽光充滿空間的每一個角落。
光影隨著時間跳躍,空間隨著時光變換,既在收藏時光也在凝聚時間,增加人心的安定和愜意。簡單內斂的基調,搭配優雅舒適的家具和擺飾,讓家顯得靜美而純粹。
斑駁的縮影,藝術的氣質,將家的溫馨感展現的淋漓盡致。畫龍點睛的綠植,幾何線條的燈具,讓主人在優雅中度過每一刻時光。
餐廳與客廳比鄰而坐,共同享受大麵積自然光線。美酒佳肴,推杯換盞,在盎然詩意之間,打造美妙寧靜的生活場景。
餐廳延續低調奢華的空間調性。設計師運用簡約、當代的手法去布局,借以保持空間的質感,外表平靜,卻承載了生活的豐富。空間中黑白灰搭配的比例關係讓質感再次提升。
光影落在阿曼尼深灰的地麵之上,忽明忽暗,自然與空間借此相互聯接,模糊掉室內外的界限。
客廳擴大到陽台,增加視野,全開放陽台,為客廳的一部分,可以在陽台讓江風輕撫,又能在此觀景休憩,抑或可以點一支雪茄享受美好的時光。
從容低調的品質
動線,質感,最終都是為體驗感所服務。低奢的現代品質,乃都市精英的標配。
品質包裹的生活概念,在居者的詩意棲居中不斷強化熱烈而滾燙。
對品質的描摹,藏於家中每一個細節,不以外顯的張揚取勝,腔調早已浸入了材質的肌理,從容與釋放皆平衡有度,看似毫不費力的幹淨,卻處處彰顯愜意的美妙。
主臥室基調仍以淺灰色為主,加入黑色床頭背景做對比處理,整個睡眠區簡潔而不單調。室內柔和的色調中引入黑色元素,帶來現代的氣息,營造一種內斂而舒緩的休息環境。
純淨的底色僅以線條修飾,捕捉喧囂之後細膩的空間氣韻,意境延伸,人與空間進行一場浪漫的邂逅。
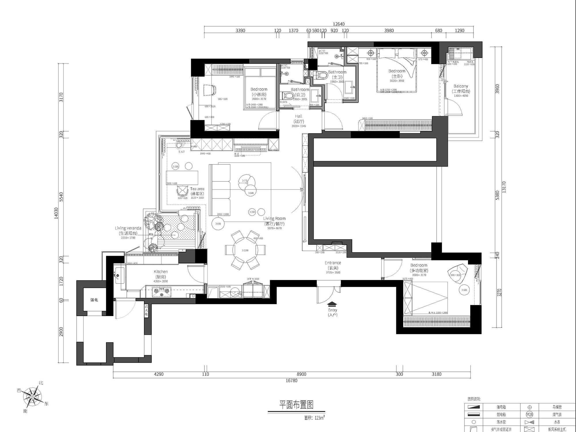
∇ 平麵圖
項目信息
項目地址:福州市倉山區淮安路5號金輝江山銘著
項目麵積:125㎡
主創設計:蔡茂青
參與設計:張林葉
完成時間:2022年
設計單位:品川設計
項目攝影:陳浩然
主要材料:藝術色漆,牆板,木板,黑鈦不鏽鋼,烤漆飾麵.白色石膏




































