遊曆蒙太奇 The Montage Excursion
場景式設計構築文化目的地
Creating a cultural destination with mise-en-scène
在線上觀影模式方興未艾的當下,實體影院該如何革新才能吸引電影愛好者?
Nowadays, everyone watches movies online, how could physical cinemas stay relevant and attractive for the cinephiles?
芝作室在設計首個電影院項目MOViE MOViE影城時就麵臨這樣的課題。首先要思索觀影體驗的本質,它是一個逃離現實的瞬間,是一段蕩滌心靈的旅程,或是一場穿越時空的探索。基於這樣的想法,設計團隊嚐試在影院這個實體空間中,以蒙太奇手法設計了一係列場景,試圖喚醒人們曾在旅途中偶遇自然奇觀和發掘秘境的喜悅,讓這段探索之旅更加完滿。
That was the design challenge for our first cinema project for MOViE MOViE at the Taikoo Li Qiantan, a mixed-use development recently completed in Shanghai. We started off asking what is the cinema experience? It is a moment of escape, an internal journey, or an expedition to another world. To complement these adventures, we set out to create a physical platform recalling memories of encountering natural wonders and travelling off the beaten path.
∇ 二層平麵圖 2F plan
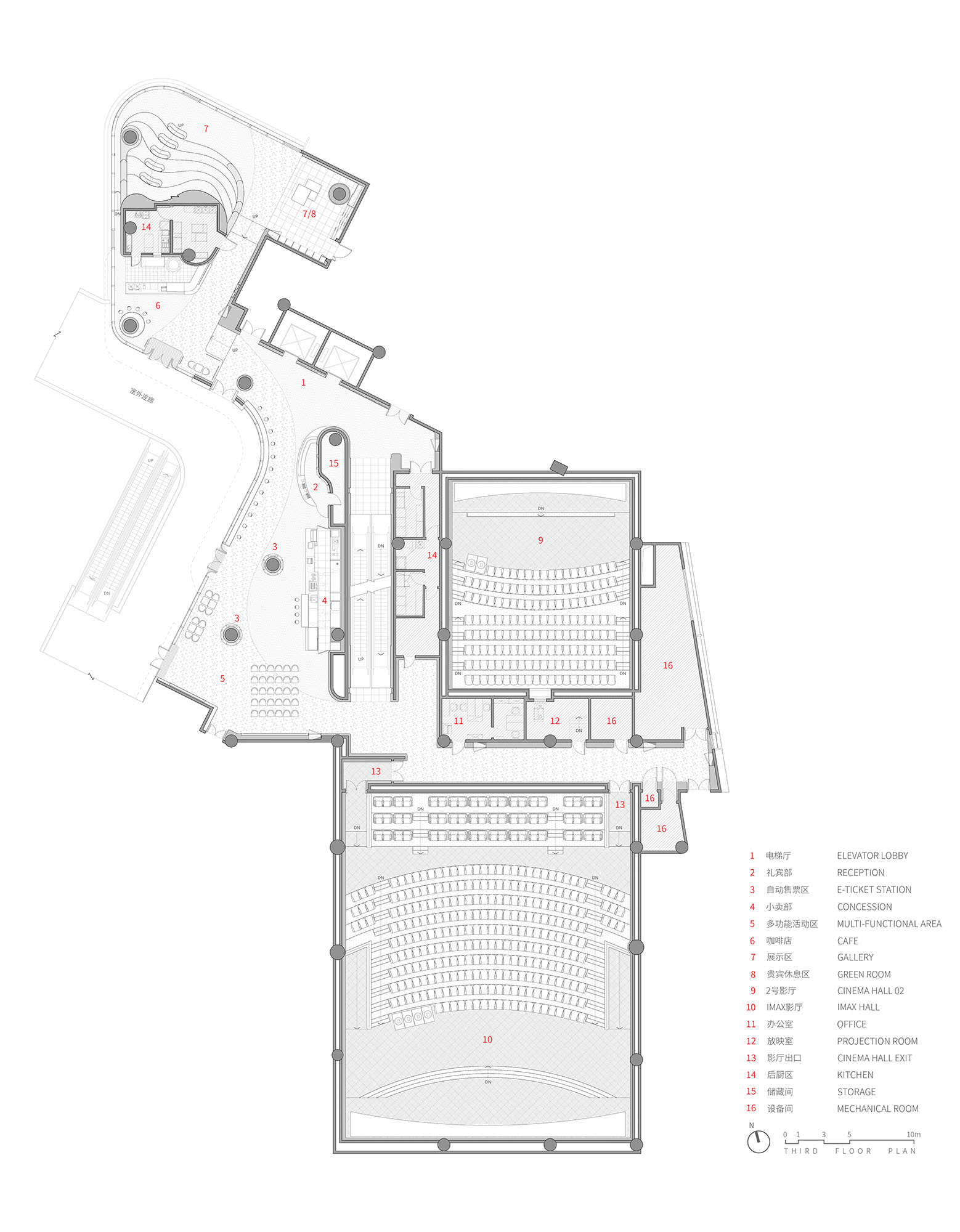
∇ 三層平麵圖 3F plan
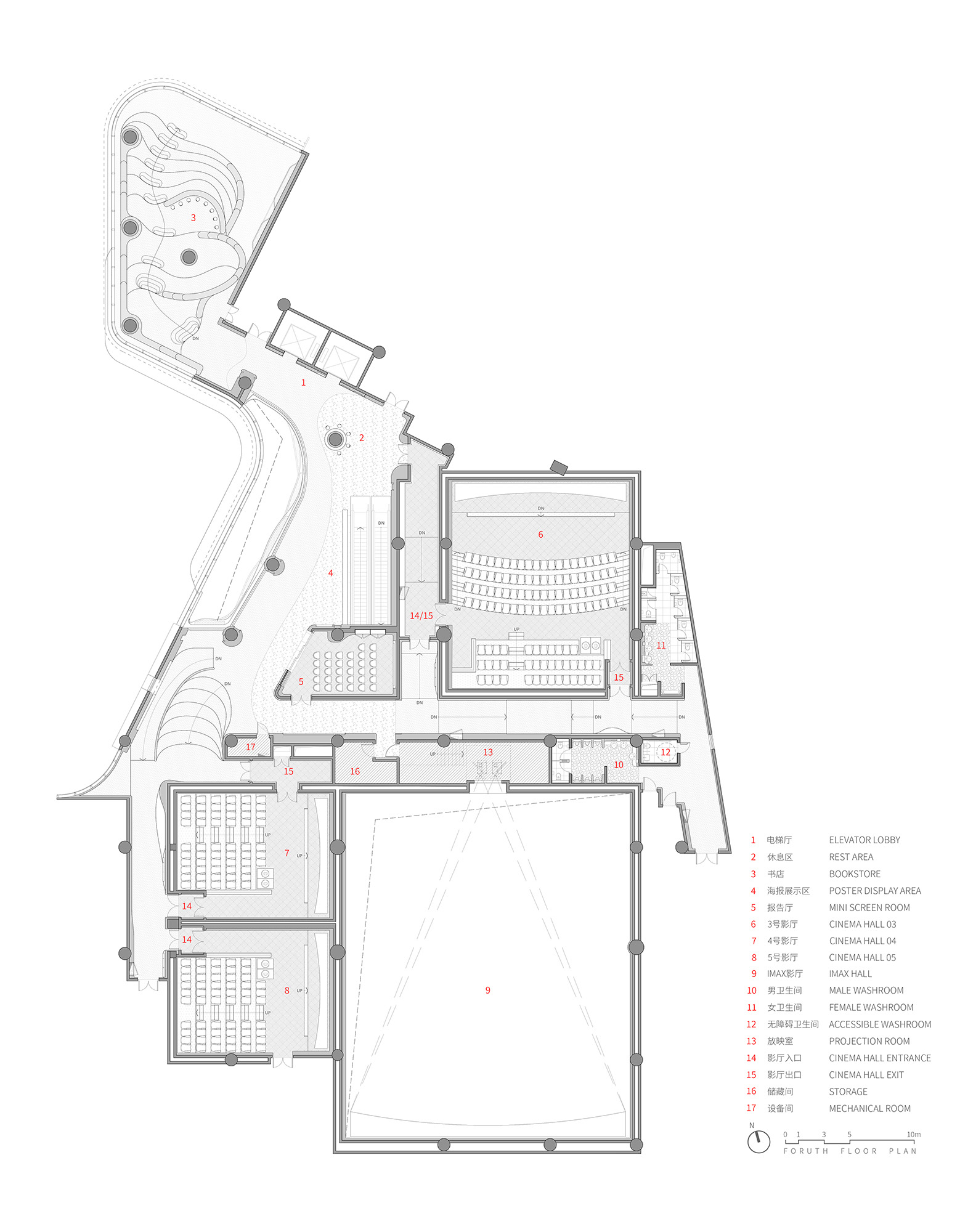
∇ 四層平麵圖 4F plan
前灘太古裏坐落於浦東新區核心地段,這座商業綜合體圍繞健康生活和可持續發展的理念進行規劃,阡陌交錯的開放式建築群形似山穀,帶給顧客集商業與文化於一體的多元化購物體驗。為保持室內外空間的連續性,芝作室將外立麵的層疊樣式延伸到總高3層的影院內,創造出一個人工“峽穀”供人們前來探索。
The cinema is located in Taikoo Li Qiantan, a retail complex at the heart of the Pudong New Area. With a focus on wellness and sustainability, the mall is an open-plan and lane-driven architecture reminiscent of an organic valley, offering shoppers a diverse mix of culture and commerce. Bringing a continuity between architecture and interiors, Lukstudio extends the layered stone facade into the multi-level cinema as stacking contours and creates a manufactured “canyon”.
探索之旅始於3樓入口大廳,這裏被設計成一處社交場所,供電影愛好者在觀影間隙進行休閑活動。呼應影院外立麵的曲線造型,室內用蜿蜒層疊的牆麵和光澤如水的地板來塑造出“峽穀”景觀。
The main lobby on 3rd floor is designed as a social spot for cinephiles to hangout before or after the show. Shaped by sinuous walls and a glossy floor mimicking water, the “canyon” naturally directs circulation flow along the curvy facade.
小賣部、自助售票亭和電梯廳的設計采用金屬板加鉚釘細節的方式,具有鮮明的工業風外觀,借以體現人類介入自然的概念。
Concession, self-service ticket kiosks and elevator lobby are envisioned as man’s intervention in nature, and they take on a contrasting industrial look with metal panels and rivet details.
∇ 大台階剖麵圖 stepped terrace section
∇ 軸測圖 axonometric-diagram
跟隨地板的波紋深入“峽穀”,影院西北角是一個配有通高玻璃幕牆的雙層挑高空間。設計團隊借助場地優勢在此設計出一個有機造型的階梯式平台,不僅在兩個樓層間開辟出更多元的通道,還巧妙融入了專注於介紹電影攝製與文化的庫布裏克書店。
The undulating “water” floor leads to a double-height hall lined with floor-to-ceiling glazing. Here, at the northwest corner, our manufactured landscape takes on a terrace form. The organic platforms not only create a diversified passage way between two floors, they also integrate a bookstore dedicated to cinematography and movie culture branded The Kubrick.
除陳列書籍外,這個平台還能用於舉辦休閑聚會甚至大型社交活動,為傳統觀影體驗增添新的可能性。購物者可以在此駐足放鬆,電影愛好者可以探索心儀的周邊產品,電影製作人可以在首映式後分享幕後花絮。
Accommodating both casual hangout and big social events, the design adds new possibilities to the conventional cinema experience, welcoming shoppers to pause and relax, movie-goers to discover about their favourite genres, or movie-makers to share their insights after a première.
大堂“峽穀”沿走廊延伸到位於2樓和4樓的影廳公區。牆麵的層疊肌理在單層空間中更為緊湊,為蜿蜒曲折的公共空間增添一分神秘感,讓觀眾們帶著探秘的心情走進電影世界。
The “canyon” continues along the passage to the cinema halls on 2nd and 4th floors. The stacking planes are down-scaled according to the single-storey space, yet the effect is more dramatic and mysterious, cultivating a sense of exploration in the spectators before their cinematic excursion.
衛生間的設計概念源自遊牧民族居住的帳篷。輕盈的結構、柔美的曲麵和自然的紋理渲染出一種置身戶外的氛圍。洗手台上的弧形鏡子牆仿佛一個擁有魔力的萬花筒,走近的“旅行者”會不經意間穿梭到某個夢幻的時空。
The washroom concept is inspired by the nomadic living. Light structure, curved form and outdoor textures where adopted to conjure an organic atmosphere. A multi-faceted mirror wall captures a psychedelic moment, perhaps unexpectedly transports the “travelers” to a special elsewhere.
影廳以“晶洞”為概念進行設計,用黑、灰、藍色調的三角片狀吸音板打造漸變效果,將一係列影廳變成大小各異的“洞穴”,以沉浸式的環境提升觀影體驗。
The theatres are envisioned as crystal caves where triangulated formations create an immersive environment. Black, grey and navy acoustic panels compose the final “caves” of different sizes and heighten the cinematic experience.
芝作室在MOViE MOViE影院與庫布裏克書店項目中嚐試改變傳統影院的現狀,為電影愛好者創造一個電影主題的文化目的地。人們到此不再僅僅為了看電影,而是在這個物質世界中去探尋更深層次的社會與文化內核。這些從大自然中獲取靈感的場景設計,亦將重新點燃城市居民們的探險精神。
The MOViE MOViE and Kubrick Project challenges the status quo of a conventional cinema and creates a destination of a cinematic world. Going to the cinema is no longer only about watching a movie, but a social and cultural discovery in our physical world. Taking inspiration from nature, Lukstudio aims to create a backdrop for urbanites to rekindle their adventurous spirits.
項目信息
項目業主 | 百老彙影城
項目地址 | 上海市浦東新區前灘太古裏石區L3層S-L3-13號
室內麵積 | 5500平方米
室內設計 | LUKSTUDIO芝作室
設計總監 | 陸穎芝
設計團隊 | 吳冬、吳敏儀、李墨、尤幸、丁怡人、餘煒鋒、鄧海琦、譚麗苗、喬海濱、王繼珍、杜雪
設計內容 | 室內及燈光
設計時間 | 2020.04 -2021.07
施工時間 | 2021.03- 2021.12
施工單位 | 上海嘉業室內裝飾有限公司
圖紙深化 | 嘉興甪裏建築設計谘詢有限公司
項目攝影 | 張薇倩
Client | Broadway Cinemas
Location | S-L3-13, Stone Zone, Taikoo Li Qiantan, Pudong New Area, Shanghai
Net Area | 5500 ㎡
Interior Design | LUKSTUDIO
Director | Christina Luk
Design Team | Dong Wu, Munyee Ng, Edoardo Nieri, Yoko You, Yiren Ding, Weifeng Yu, Kate Deng, Rebecca Tan, Haibin Chao, Jenny Wang, Vivi Du
Scope | interior and lighting
Design Period | 2020.04 -2021.07
Construction Period | 2021.03- 2021.12
General Contractor | Jiaye Interior Design & Decoration Co., Ltd
Drawing Development | Luli Design
Photography | Yui Zhang




































