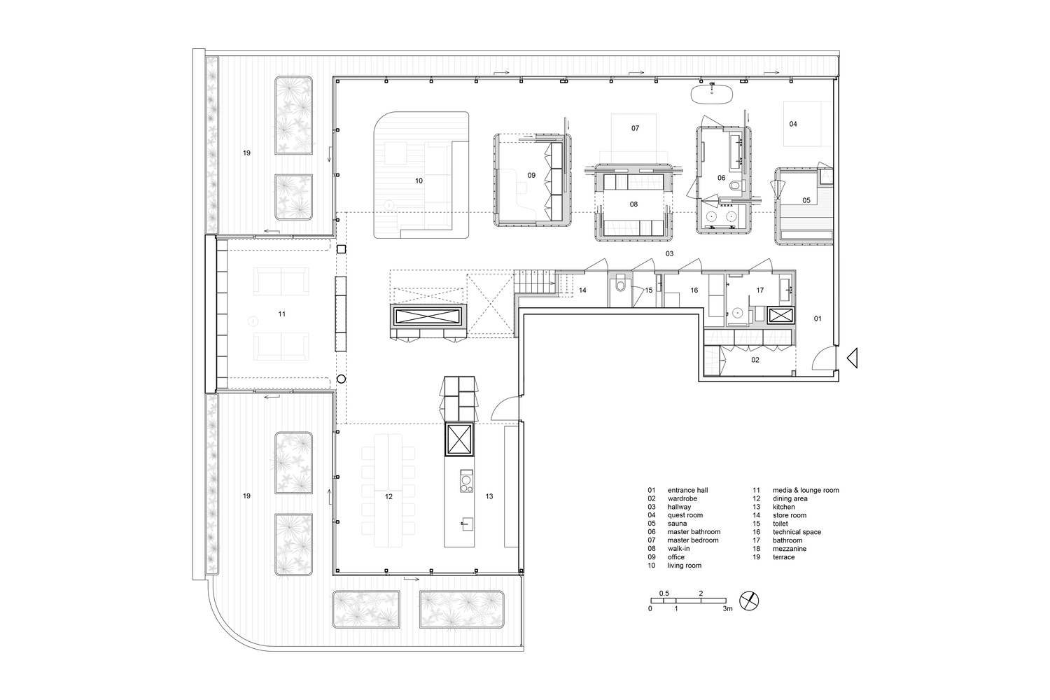
Bureau Fraai 設計了一套豪華的頂層公寓,在一座前辦公樓裏,可以看到海邊和市中心的全景,這棟大樓已經被改造成一棟高檔住宅樓。為了從頂層公寓的每個位置保持 180 度的視野,Bureau Fraai 決定引入獨立的橡木空間,創造一個開放式的概念,而不是傳統的布局。
對於近 300㎡、天花板高度高達 4.75 米的卡斯科頂層公寓,Bureau Fraai 被要求進行設計,尊重並充分擁抱一側大海和另一側城市的美麗全景. 構成這些迷人景色的外牆包括沿著頂層公寓整個寬度從地板到天花板的窗框。為了保持甚至最大化這些景觀,Bureau Fraai 決定不引入任何阻擋牆。
通過設計一個帶有獨立橡木體積的開放式布局,立麵保持清晰。這樣,頂層公寓的每個部分都會始終呈現周圍環境,讓您充分了解季節、潮汐和日出日落的變化顏色。為了加強與周圍環境的這種關係,建築師為地板、天花板和現有牆壁選擇了白色和淺灰色的中性基礎。
與這些中性色形成鮮明對比的是,海邊的獨立體量與沙丘和海灘的顏色相關,因此采用淺色橡木製成。這些體積以其顏色、質地和精致的細節營造出溫暖自然的觸感。相比之下,在廚房和餐廳,樸素的灰色代表著現代城市的天際線。
獨立的木製體量可容納私人功能,如主浴室、步入式衣櫃、桑拿浴室和辦公空間。同時,這些體量大致將公共區域和走廊與兩間臥室“分開”。如果需要,可以通過關閉整齊地集成在木質體積中的全玻璃鋼滑動門來進行物理分離。在夜間,卷簾和非玻璃門可以在視覺上將房間與公寓的其他部分隔離開來。在頂層公寓的短端,公共區域被組織成一個三腳架,包括高架起居室、媒體和休息室、用餐區和廚房。
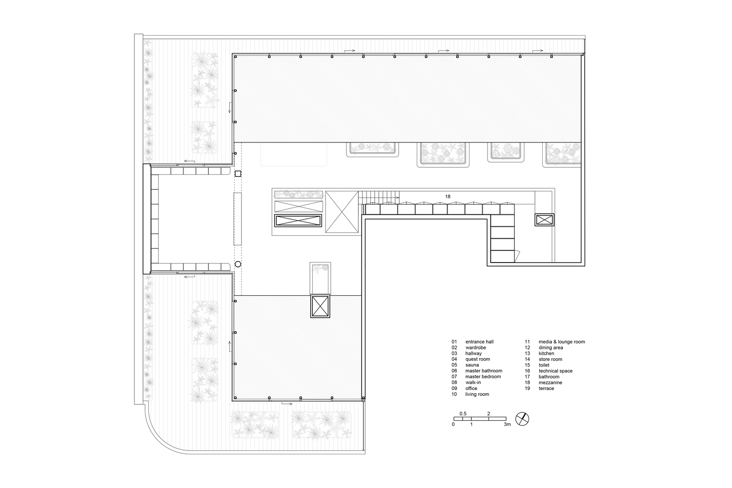
這些區域直接連接到室外露台。在核心區,天花板高度為 4.75 米,引入了一個矩形中央空間,可容納技術室和儲藏室、衛生間和第二間浴室。在這個空間的頂部,夾層創造了額外的存儲空間,同時提供了一個獨特的內部空間和周圍天空不斷變化的顏色的視野。
∇ 一層平麵圖
∇ 閣樓平麵圖
∇ 軸測圖




























