項目位於衢州市龍遊縣小南海鎮團石村,北側為G60滬昆高速,西虎線穿境而過,南臨衢江。場地隔路即為衢江水域,擁有寬闊的江景視野。前身為小學舊址,現為一企業廠房,建築質量與結構都不太理想。周邊均為濱水而居的村民住宅,前方留存曆史建築馬氏節孝坊為清乾隆五十五年(1790)修建。
在介入項目後,方得知因為某些特殊原因,整個項目周期從設計到實施隻有一個半月的時間,而且還得麵臨高溫天氣,這也讓工作室一度想退出項目。將近五千平米的空間從建築到室內及景觀全部設計施工完成,這看似是一個不可能完成的任務。經過再三衡量及思考,最終我們還是決定接受這個挑戰。工作室也想借著這個時間緊迫的項目來實踐一下緊急狀況下的嚐試。
01 從工作模式做出改變
設計之初建築師便在思考如何從工作模式上做出改變,既能達成設計設想又能快速完成?
以前曾看到阿爾瓦羅.西紮在接受訪問的時候說的一段話。他表達了對建築行業的惋惜之情“從前我可以和現場施工工人交談,和他們談論各種細節。建築師在從前是和工人一起工作的,他們可以相互溝通。現在這已經不複存在了。在今天,每個項目都有一個項目經理,有時他們權利比建築師還大。這種情況在當下非常常見。但是建築並不僅是畫圖而已。”對此我也深有感受,有時候在某些設計管理非常嚴格的項目中,建築師會被切斷與施工的交流與溝通,有時還會被迫修改很多設計。在現場明明覺得某些地方感受有問題,想要修改時卻還要通過層層審批,所以有時幹脆就放棄了。
∇ 場地及建築立麵現況
而本項目中按照以往先設計完方案再進行施工圖繪製的流程肯定無法完成。在繪製完必要圖紙後,以現場溝通設計與實施是最為有效的方式。繪製圖紙的同時就開始對現場進行拆除,同步施工、同步深化圖紙。現場遇到問題與工人現場直接溝通與討論,以手繪的形式來進行施工指導與實施。雖然缺少了圖紙的把控會丟失掉很多的細節,但是對於實施的自由度、便捷與快速實行性及現場感知度卻似乎要好很多,有錯誤或缺陷也可以及時作出改變。但是這對建築師的工作與時間付出就會高出很多,建築師無法駐場,工地進度又很快速時,便隻能是頻繁的奔波於項目地與工作室之間。
∇ 現況場地及拆除分析圖
02 功能的重新定位與組合
項目定位為服務於村民的公共空間,業主及運營方希望空間中可以融合產業、文化及人本關懷三大主題來展開。原本場地亦呈圍合狀,中間有較大內庭院。建築師根據場地實際情況,采用建築改造加原址局部新建疊加的形式,將建築體塊重新進行功能分配與組合。
∇ 功能分布圖
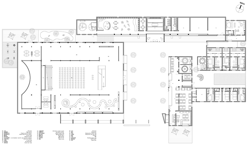
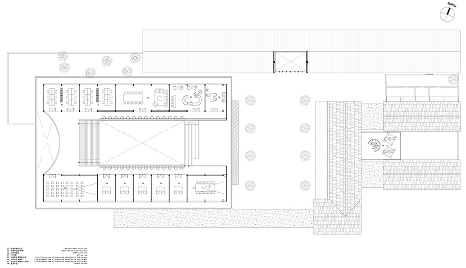
原來1#廠房空間因為有較大的開敞空間便將其設定為產業空間,把村民物業管理服務、農特產品展銷、科技助農直播、創客共享辦公、村民宴會及多功能會議、論壇等功能均置入其中。2#樓呈長條狀,前身功能也是小學教室,則將文化相關的南孔書屋業態及兒童中心與銀發頤居相關的健康小屋並置排列其中。3#樓外可遠瞭江景、內臨內院具有較好的視覺感,放置咖啡及餐廳等功能。較為隱秘的4#與5#樓受外界幹擾較小適合民宿及青旅的使用。圍合而成的內庭院建築師希望將其開放出來作為村民活動廣場與市集空間使用,服務於周邊村民。
∇ 爆炸分析圖
03 如何重新定位建築形象與空間組合?
外在圍合
原本建築之間圍合狀態下形成的大大小小的間隙,建築師在經過分析後,則通過在建築“組團”中植入“廊道盒體”“屋頂平台”及大小不均的“內庭院”等形式來強化這種圍合感。通過圍合來讓場地形成一個更為有機的組合,同時通過局部的錯落與大小、形態變化讓建築群在整體統一中尋求一種動態的變化。
有機反差
場地周邊建築及環境複雜,建築師利用基地條件把各個新建元素在視覺、材質及色彩上與不同時代的建築進行平衡與協調。在新老建築之間的關係上,著重傳統與現代的融合,新建建築與周邊自然、人造及人文環境之間的協調,用有機的、對比的手法謀求彼此之間的共生。
內在秩序
設計構思開始時便將如何能快速安裝、可落地性與美感的結合放在首位去思考,用最有效的方式達成最佳的結果。現場在進行拆除時發現原有建築牆體太過於脆弱,建築師將大部分屋麵及牆體都進行了拆除與加固後。在植入新的結構體係時也盡量避免與老舊牆體發生關係,避免因為加固基礎而延長作業時間。
而新建的結構體係中建築師大量采用了相似的韻律與重複的節奏。運用構圖規律,緊密結合周邊環境、平麵功能、內部空間來構建、排列組合建築單體的形態。在讓建築具有豐富形式及複雜空間的同時,讓其更具整體性與秩序感。同時也希望用這種單純而直接的手法可以讓空間、形式得以淨化,並引導人們去體驗這種純粹和感知多樣的環境。
∇ 總平麵圖
∇ 1F建築平麵圖
∇ 2F建築平麵圖
項目信息
項目名稱:龍遊團石村未來鄉村生活館
建設單位:龍遊縣小南海鎮人民政府
設計單位:y.ad studio | 上海嚴暘建築設計工作室
主持建築師:嚴暘
設計團隊:沈川、吳可嘉、趙思緣、嚴昱
建築麵積:4850平方米
施工單位:上海德珞建築工程有限公司
主要材質:耐候鋼、錳鎂鋁金屬瓦、鋁板、塗料、清水混凝土
設計時間:2022/07-2022/07
建造時間:2022/08-2022/10
攝影版權:是然建築攝影








































