ALSOLIVE是一座占地麵積達1900平米的綜合文化商業建築,涵蓋可容納上千人的音樂演出空間,樂隊休息室、餐廳、酒吧、文藝沙龍等配套齊全。建築設計注重空間的實用性,采用中性、去裝飾化的極簡主義風格。通過巧妙的動線規劃和光影效果的變化,靈活滿足不同人群和各類活動場合的觀賞和舉辦需求,同時彰顯出強烈的可持續設計理念。
多元空間功能
建築采用中性設計語言、去裝飾化設計風格強調空間本身功能性,此設計風格使得場景內的光影效果成為主要的視覺元素。通過靈活的燈光表現定製不同活動場合所需要的光感效果與氛圍,能夠滿足多種不同活動的需要,將無限的靈感和創意注入有限空間。
∇ 軸測分析圖
巧妙動線設計
通過巧妙動線設計和寬敞的大廳空間,這座建築精巧地創造出了一個“殊途同歸”的聚集氛圍。來自不同背景和身份的人們,包括演出者、VIP觀眾和普通愛好者,因對藝術的共同熱愛從四麵八方彙聚到這個獨特的空間。他們在這裏共享著演出帶來的不同觀賞體驗和情感價值,這展示了藝術和音樂的包容精神,同時傳達了“All Soul In Live”的理念。
可持續設計精神
ALSOLIVE不僅是藝術場地,更是一個傳遞可持續精神的文化空間。通過多種環保可持續材料的運用、中性風設計風格以及去裝飾化設計理念,體現了ALSO LIVE對可持續主題的踐行,建築將藝術與可持續性融為一體,彰顯自由的探索精神和理想信念的同時,旨在創造出一個無限活力和可能的藝術目的地。
極致聲學體驗
極致聲學體驗源自精密的聲學設計和精細的工程實施。演出空間四麵設置厚度近550mm隔音牆,多層隔音材料,各項細節精心計算;空間頂部設計包括無機纖維隔音棉、雙層隔聲頂和波浪造型麵層,舞台設置多層低頻陷阱,確保聲學反射效果與主場地一致。如此巧妙設計,搭配精心放置的頂級音響設備,演出者和場內觀眾均能在ALSOLIVE暢享無與倫比的聲場體驗!
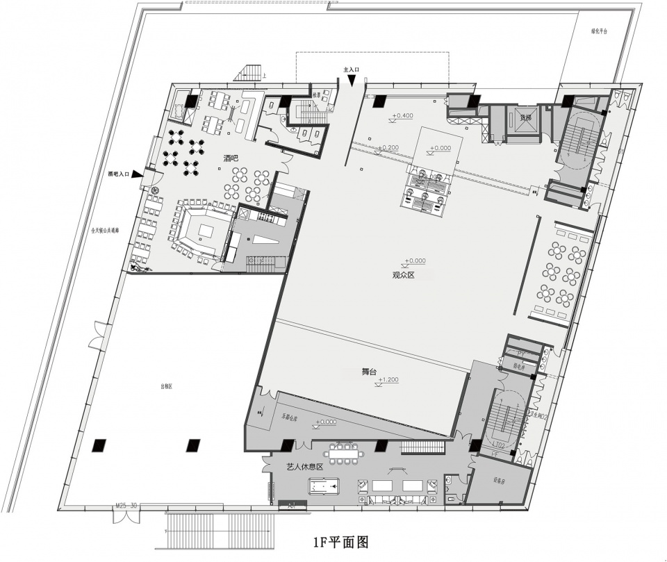
∇ 一層平麵圖
∇ 二層平麵圖
項目信息
項目名稱:ALSOLIVE
項目類型:休閑娛樂
設計方:Lu Design 野路建築設計事務所
主創設計師:程璐
完成年份:2023
設計團隊:王波,湯宇佳,張司晨,陸逴
項目地址:中國廣東省佛山市順德區怡和路6號C座
建築麵積:1735㎡
攝影師:付清源
合作方:杭州瑞高裝飾設計工程有限公司
客戶:美的集團
材料:結構鋼、不鏽鋼、鋁合金、聚酯纖維板、水磨石,微水泥
品牌:Clair Brothers音響,ACME燈光





































