2019歲末我們收到一份設計邀請,在河北廊坊的大廠縣改造一座文化中心。除了對於文化空間魅力的期待,北方凜冽寒冬特有的清冷暢快的空氣更讓久居南方的我們心向往之,因此在元旦後便匆匆啟程。
大廠文化中心選址在城市的一座大型文化綜合體。原本建築中已經容納了包含會堂、影院等一些功能,而且環繞建築四周的公園也處處可聞可見市民休憩。我們被要求思考置入的圖書館、博物館等既是對原本綜合體空間的一次梳理,又恰當地將建築完整定義為城市的文化中心。
∇ 以“梯田”景觀塑造的閱讀空間
漫步 “自然”之中
大廠文化中心的核心功能為圖書館與博物館,設計任務書要求創造出開放、親切、自在的場所,這樣的空間特征讓我們聯想到以“自然”作為切入點,為城市和市民提供日常化的文化交流和展示空間。人源於自然,文化也深深紮根於自然,並在人改造自然的過程中逐漸萌發。我們希望以更廣闊的視野來探討自然與文化的關係,在空間中還原人與自然相處的場景,讓文化的氛圍在一次次的空間使用中真實地呈現。帶著漫步“自然”之中的設計意誌,我們仔細斟酌並與業主數次探討人在自然空間中活動的場景。
“梯田”與“洞穴”
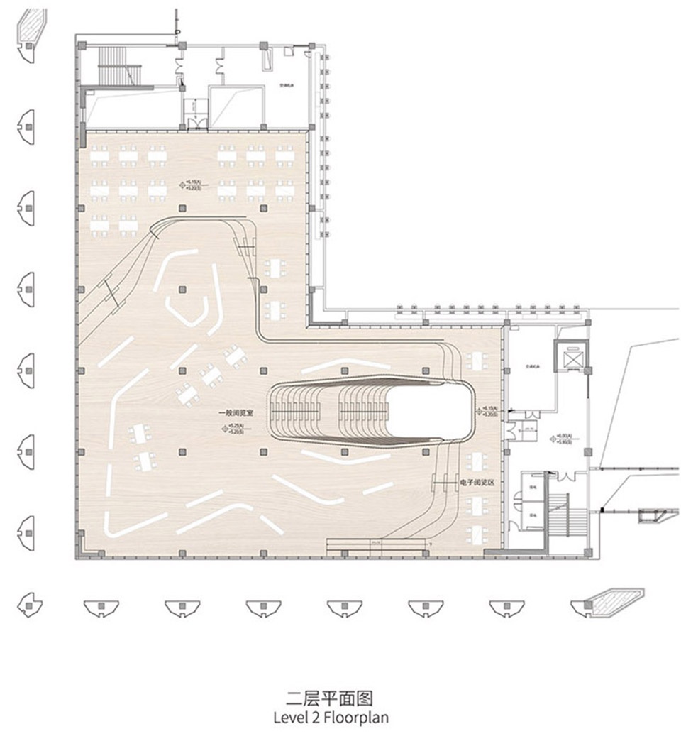
自然與文化是一個極為龐大的話題,從建築師視角來解讀的話,我們希望這是一種間接呈現人融於自然並改造自然的景象。結合非常具體的圖書館與博物館的使用方式,“梯田”與“洞穴”的意向便逐漸進入了我們的視野。“梯田”是人類改造耕地的智慧,與圖書館的需求有著異曲同工之處。圖書館空間之中層疊的“梯田”景觀,一方麵將書牆盡可能控製在人體尺度並提供足夠的存書量,另一方麵也創造出更為自在的閱覽體驗。
梯田景觀在圖書館主入口便開門見山,並將服務台功能自然地結合,共同形成有包裹感的峽穀狀空間。環繞身體四周的書牆結合鬆弛的台階布置,創造出柔和的空間界麵和自由的閱讀方式,同時將讀者自然引向二層主閱覽區。
盡管經過數輪空間簡化,二層主閱覽區仍然保留了若幹不同高度的閱覽區,以便開放空間中的功能分區及存取書需求。漫步於梯田之中,可行可坐,自由延展的長椅延續了景觀化的空間特征,環繞組合出多層次的閱覽方式。
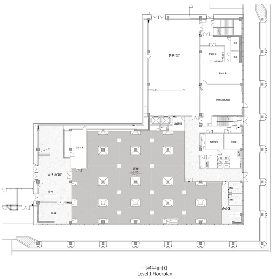
博物館不似圖書館,空間較為緊湊,以綿延的“洞穴”在有限的空間中創造出豐富而連續的體驗,是我們最終的設計策略。盡管以非“挖掘”而更接近於“搭建”的方式來形成人工的洞穴景觀,漫延於天地之間的不同曲線重疊交織,仍然帶來了步移景易的獨特美學感受和沉浸式的探索旅程,為曆史文化的呈現創造出神秘感和儀式感。洞穴狀的形式語言充分考慮了觀展流線與結構的關聯,為展品及觀眾留有充足的空間,既帶來空間新意,又恰當地留白。
盡管我們試圖從如此龐大的話題切入來創造文化性的空間,但最終仍然希望可以回歸到最為日常而具體的氛圍,畢竟一座文化中心的最終狀態是與人們使用它的場景緊密聯係在一起的。
∇ 洞穴建造中
∇ 圖書館平麵圖
∇ 博物館平麵圖
項目信息
項目名稱:梯田圖書館與洞穴博物館
項目類型:城市更新/文化中心/室內
設計單位:UDG · 十分工作室
設計時間:2019-2021年
主持建築師:錢烈
設計團隊:曾子,陸國棟,雷雲騏,史淑佩,鄭益,張家啟
合作團隊:上海聯創設計集團股份有限公司零號工作室/都市綜合設計研究院/室內設計院/機電一部/結構二部
項目地址:河北廊坊
建築麵積:6000平方米
攝影版權:ingallery





























