白色是世界上最美妙的顏色,因為在它裏麵你可以看到彩虹的所有顏色。白色之白在於它永遠隻是白色;它幾乎總是由光轉換,並且一直在改變;天空,雲層,太陽和月亮。
—理查德·邁耶
米窩酒店位於麗水市遂昌縣的一處山頂,這裏茶山與水庫資源豐富,並以溫泉得名,是遊客紛紛來此度假的勝地。名為”米窩“便希望酒店能夠有家的溫度,會遠道而來的客人,共同觀賞這片美麗的風景。
縱觀酒店被山林所包圍得天獨厚的地理環境,設計師在建築上用白色塗料包裹,像是一個米白色樹窩,在林間描繪出明暗的邊界,打造出一片屹立於山間的別樣風景。
從遠處望去,酒店隱隱地透過樹林被看見,與城市的熙攘隔絕,像是一片隱藏的白色樹窩。
在通往建築前,室外的庭院以一片環形狀態呈現,仿佛擁抱整個自然與到來的客人,為空間增加了第一重的儀式感。水流從內部水係貫穿至入口處,讓水流動的狀態延續至整個空間,暗藏著生命與時光的流動。
繞過入口,眼前豁然開朗,十分開闊的庭院隨即出現,豎起的片牆創造出了豐富的動線,增加了空間的第二重儀式。
層層的階梯,展現出樹木不斷向上生長的狀態,在光影間給人帶來充滿秩序的美感。
建築的結構勾勒出極簡有力的線條,呈現出自然中最幹淨、明朗的狀態。與天空的藍色相互映襯,感官充滿極致的享受。
建築每一麵都呈現出不同狀態的美,多維度的生活方式在這裏展開。
白色不止是一種顏色,更是一種深入人心的感受,無邊泳池與天空的藍形成了相互對話,構成了水天一色的景象,如同空間中的一片精神湖泊。
泳池作為連接內與外的媒介,通過打通的體塊讓光線照射進地下空間,空間的共生關係進一步被強調。
陽光透過流動的水波照射進地下空間,為空間增加一層靈動的色彩。
進入空間內部,設計師設置了第三重的儀式感,大理石牆麵很好地區分了接待區與休息區,使得不同空間擁有獨立性。
環繞式的休息區周圍分布著與頂部連接的立柱,弧形結構包裹出造型頂麵,猶如進入了一片森林。透過落地玻璃可以望向室外鬱鬱蔥蔥的風景,模糊了室內與市外的邊界。
設計師建造了一個旋轉滑梯通往地下活動空間,空間充滿互動與趣味性。
米窩共有七間客房,其中在三層的三間客房為獨立房間的形式,為一家人的入住帶來如家一般的體驗感。
客房中加入溶洞般的泡池,可以望向遠處的茶園風景,深入體驗山林間的樂趣。
90°的落地開窗設計讓周圍群山盡收眼底,沉浸於搖籃形狀的浴缸內,依山而眠。
客房在開窗朝向的選擇中增加了對環境考量,為觀察日出日落提供了絕佳的位置。
目之所及,皆是風景,內部與外部得以互相聯係,讓整個身心融入山間。
極簡的空間構造營造出自然療愈的生活狀態,美好無處不在發生。
純淨的白色世界,讓人得以放鬆心靈,隻有滿眼的天空與綠地,在自然中感受生活的詩意。
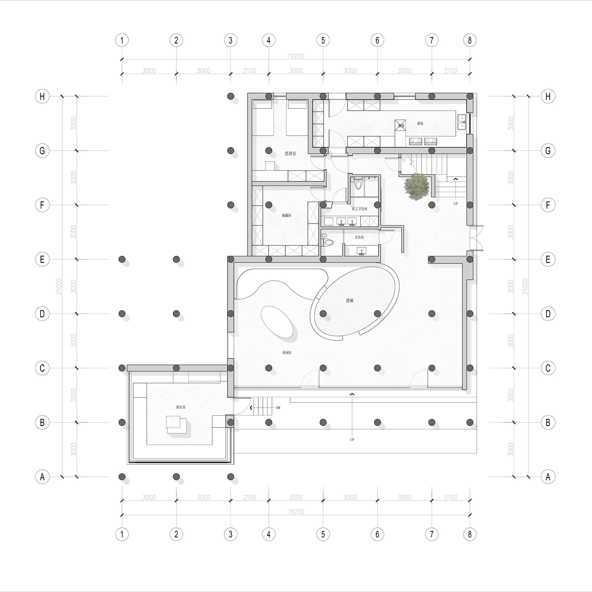
∇ 負一層平麵圖
∇ 一層平麵圖
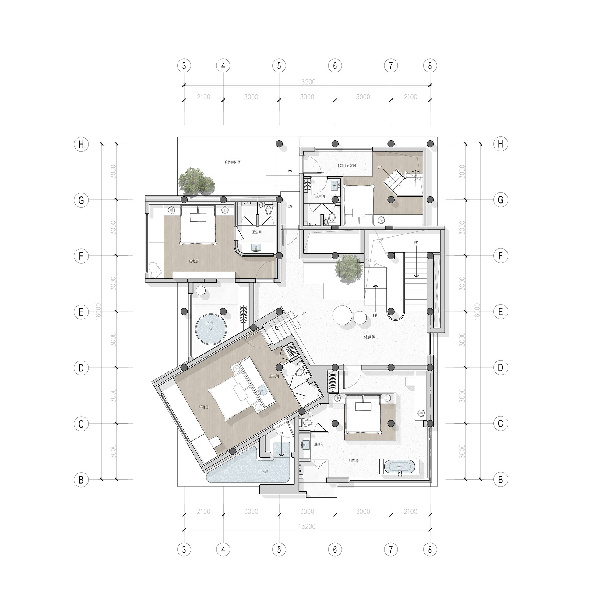
∇ 二層平麵圖
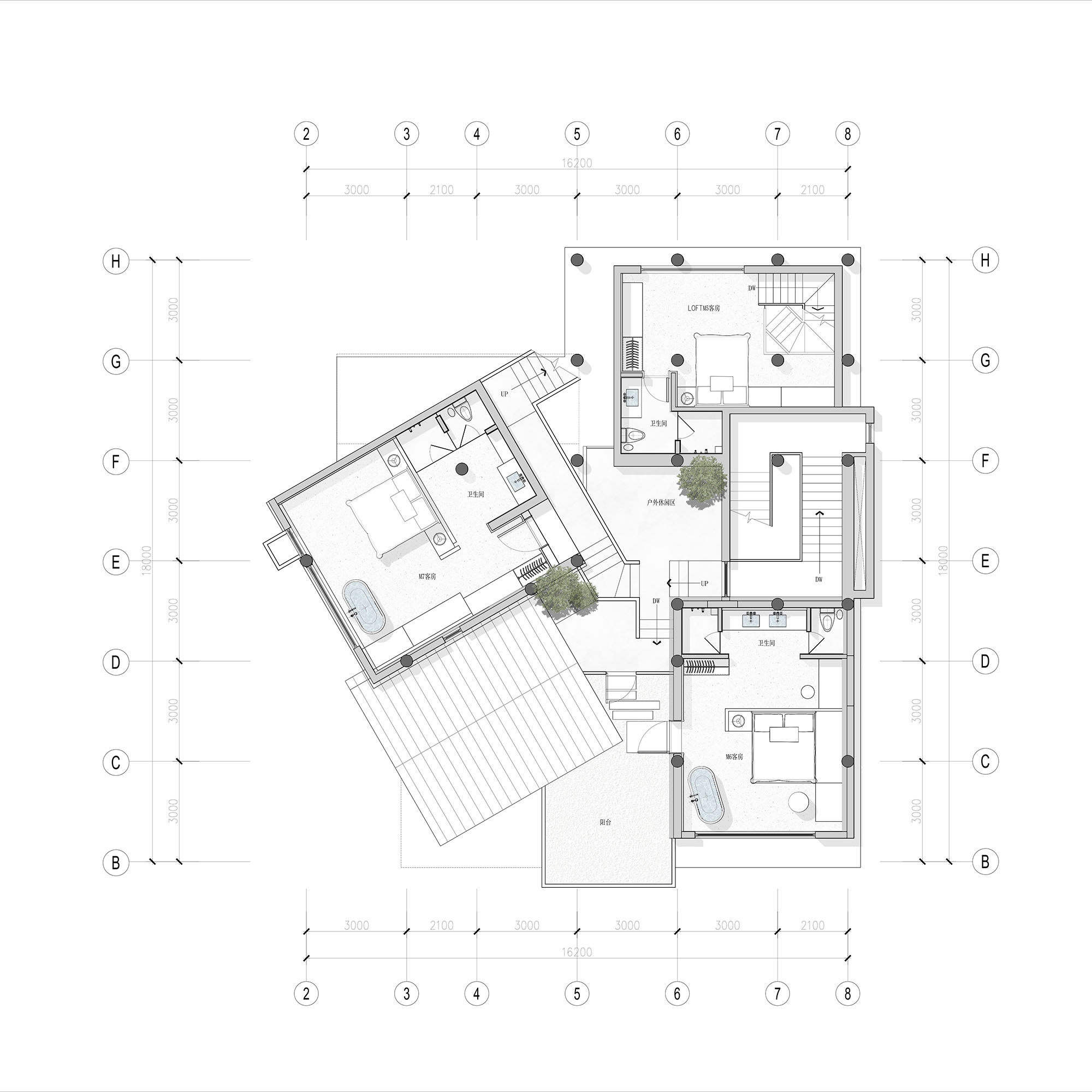
∇ 三層平麵圖
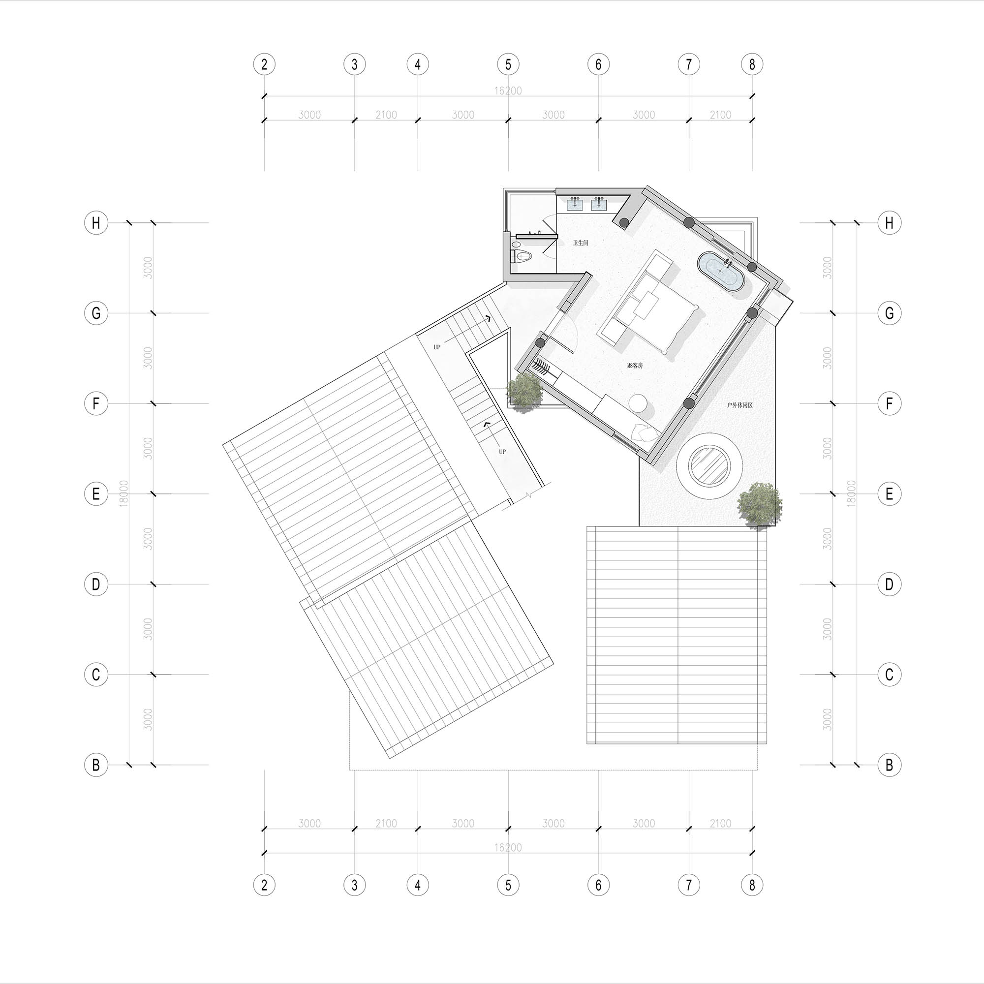
∇ 四層平麵圖
項目名稱 | 遂昌·米窩設計師酒店
設計單位 | 杭州時上建築空間設計事務所
設計內容 | 建築改造、景觀設計、室內設計
設計團隊 | 沈墨、張建勇、金誌文
建築麵積 | 1120 ㎡
庭院麵積 | 1600 ㎡
項目攝影 | 葉鬆(瀚墨視覺)、 曾瑜鬆
燈光團隊 | 杭州樂翰照明設計工程有限公司
施工單位 | 上海爭先裝飾科技有限公司
品牌設計 | SPIRITLAKE
項目地址 | 麗水市遂昌縣紅星坪村
完工時間 | 2022/9




































































