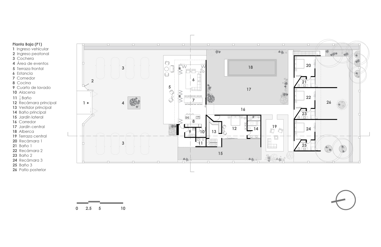
Casa Mate 位於墨西哥瓜達拉哈拉市南部的很多地方。Mate House是一座鄉間別墅,幾何學在其中起著根本性的作用,通過一條帶有圍牆的中央花園的走廊闡明了該項目,該花園旨在成為每個室內空間中隱私的堅實來源。
平麵和建築體積由正交線組成。室內空間旨在始終與視覺飾麵互動。房子的前麵是帶廚房和客廳的入口露台,連接到入口區域,打開後,成為一個單一的空間。
主臥室通過外部走廊與露台相連。房間是孤立的,利用了雙高的空間流動性和朝向其中一個側花園的視野。在主臥室內,有一間更衣室和一間可欣賞雙層通高景觀的書房和一間室內花園浴室。在別墅的中心,有一個帶裸露混凝土遊泳池的中央花園和一個帶火坑的私人露台,清晰地表達了項目的模塊。
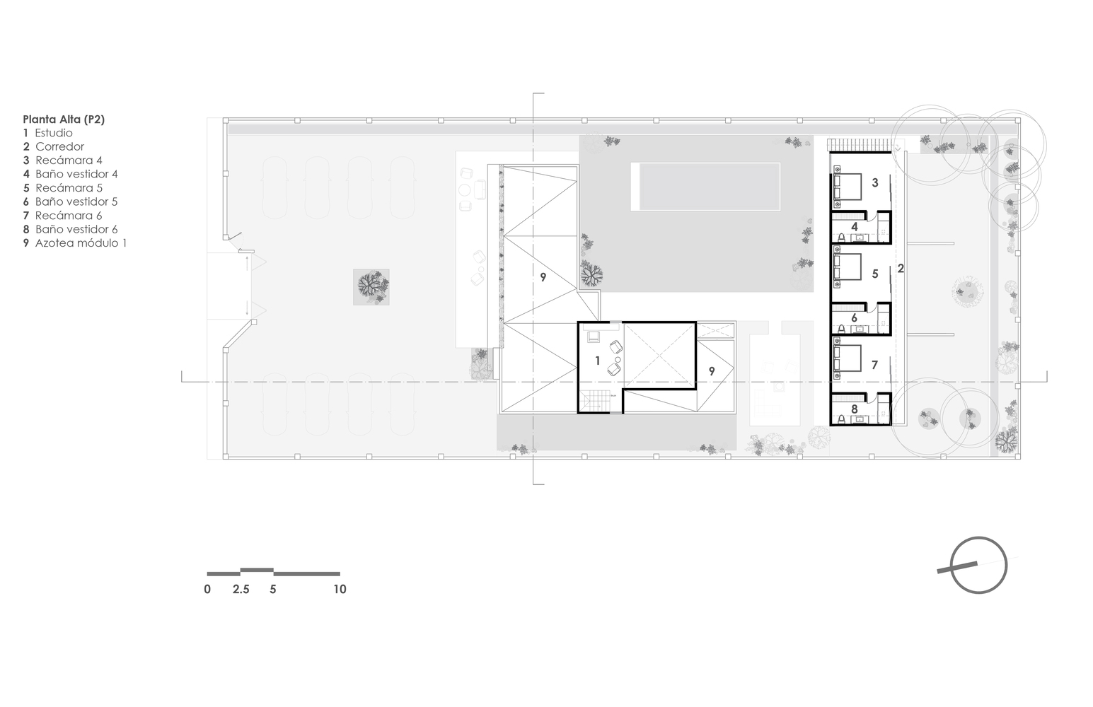
地塊的後麵是房間的核心,三間位於底層,三間位於上層。始終將隱私放在首位,在底層,入口通過木質襯裏隱藏起來,而在上層,房間通過後部的樓梯和走廊進入。在這個空間中,設計師開發了一個由質樸的石頭、花盆和樹木組成的小廣場,與周圍的拋光混凝土相得益彰。該項目的物質性被簡化為覆蓋著拋光水泥和木材的牆壁、大理石地板和花崗岩細節,讓實體體積成為別墅的主角。
∇ 軸測圖
∇ 爆炸分析圖
∇ 一層平麵圖
∇ 二層平麵圖
版權聲明:本站所有文章除投稿授權發布外,其他文字內容均為原創,享有著作權保護,未經許可不得以任何形式進行轉載(包括且不限於:媒體、網站、公眾號等)。所有項目照片/設計圖形版權歸原作者所有。本站部分內容源自網絡公開資源或用戶分享,如若侵犯了原作者的合法權益,可聯係我們進行處理。



























