材質與光線在場域內呈係統化的,或始終遊離於畫麵內外,
或與本身構建著間離又一體的感官藝術:光線先於動作,而動線則始終滯後。
在光影驟裂裏,來訪者的觀感總是由這些幾何結構主導,在不斷變幻中總能將其整合/重塑,反複堆疊、相噬的混亂事態在「夢境—現實」中自我生成出釋義係統,瓦解了空間內部的秩序。
環形結構更多是為空間提供觀感的閉環,不必受其類型俗套累贅,
但就本身而言,視其為夢境與現實的迷亂變奏也並非不可。
於是,在召喚中,情緒紛至遝來,自相映發:或者並置來,看形相的差異,看構圖與光色。
以遠山為觀照,照見結構與幾何的精魂。照見此刻靈感背後的黑暗深淵。
以及其上“振奮的靈魂,少年的靈魂,燃著純粹的火焰”。照見驚人的平靜與同等的激越。
於是,相與無相俱在。
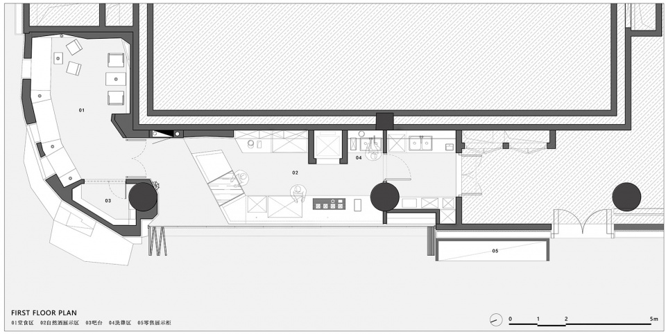
∇ 一層平麵圖
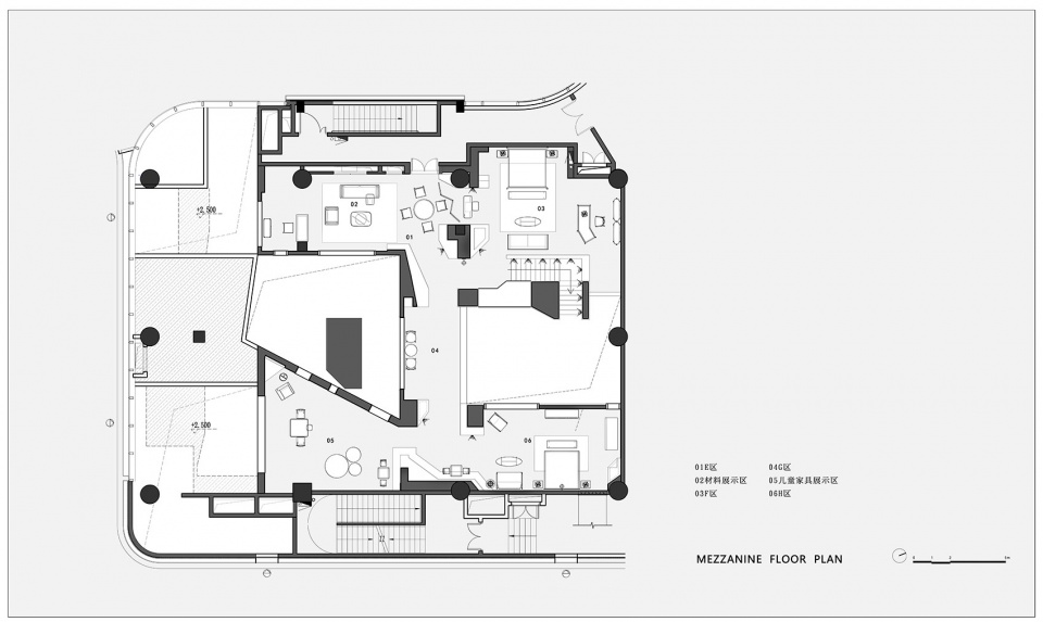
∇ 夾層平麵圖
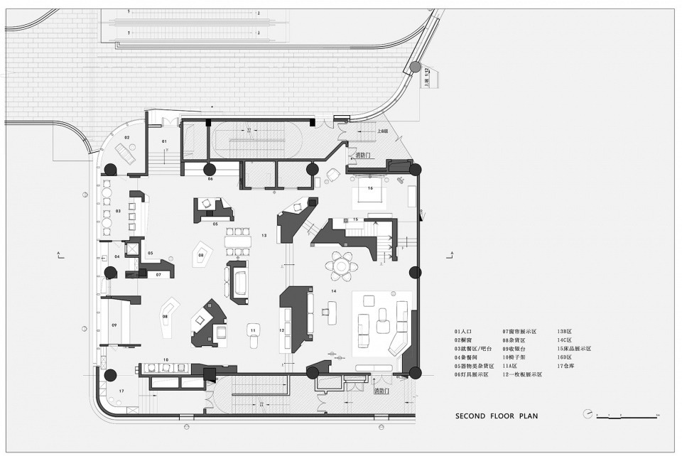
∇ 二層平麵圖
項目信息
項目業主:梵幾
項目地點:中國,上海
設計時間:2022
項目類型:建築改造及空間設計
建築麵積:827㎡
建築改造:東形西見
空間設計:東形西見
攝影:許曉東
版權聲明:本站所有文章除投稿授權發布外,其他文字內容均為原創,享有著作權保護,未經許可不得以任何形式進行轉載(包括且不限於:媒體、網站、公眾號等)。所有項目照片/設計圖形版權歸原作者所有。本站部分內容源自網絡公開資源或用戶分享,如若侵犯了原作者的合法權益,可聯係我們進行處理。






























