被網友稱為“水晶宮”的上海書城在曆經2年的關店裝修後,於2023年10月28日以嶄新的麵貌正式對外開放。
挑戰
“忠實在藝術中就像在感情中一樣難以捉摸。”
書店是給那些不看書的人的
在中國,保持看書習慣的人的數量遠遠少於不讀書的人。有限的讀書人是拯救不了書店的。所以書城要為更多的不讀書的人設計,讓他們走進書店。這樣他們能拯救書店。在中國,線上用戶在手機上花費的時間已經遠遠大於用戶在線下實體空間的時間。同時互聯網購書的價格又遠遠低於實體書店,從而書店就失去了一部分讀者。所以要讓這部分線上用戶把一天中專注在手機上的10小時、8小時中分出哪怕是1小時,走進具有線上不曾有的吸引力的書店,這樣他們能拯救書店。
最大的挑戰是對抗被美化的記憶
2021年底,上海書城以一係列活動來宣告閉店裝修。甚至被某些自媒體誤解成永久歇業。於是大量的讀者湧入書城憑吊。在回憶中,那個在互聯網衝擊下不可避免走向衰敗的中國第一個一站式的書籍銷售綜合體的窘境則被忽視了。取而代之的是被美化、升華和崇高的集體記憶。集體記憶會扭曲改寫這個項目的真實形態,甚至促使他們不信任任何未來的改造。是的,建築師最大的挑戰就是被美化的集體記憶。
在最後一天的閉店活動後,我走出書城,朱旭東①問我會怎麼改建。我笑笑,不響。但我知道這句詢問背後的潛台詞。集體記憶固然美好,但是從我專業角度來說,它本身的空間布置和建築立麵並沒有我所說的建築學上的紀念意義,所以對於改建書城,我沒有任何負擔。我已經有了定案:上海書城應該是從一個書店變成一個以知識分享為平台的,具有諸多應用商業和社交場景的文化綜合體。這個文化綜合體是個具體而微,抽象的垂直城市,一個理想主義的上海。也是一個關於城市史詩的、一段可以高聲詠歎的篇章。它成長於舊的書城,並不割裂曆史,但以書為新城。
以書造新城
造城的條件
在這次升級裝修中,98年建成的書城要按照最新的消防規範驗收。所以要增加疏散樓梯的數量和寬度、調整位置,要升級和增加噴淋以及消防卷簾的數量。在這次升級裝修中,變動結構不能超過結構總量的10%。書店原始外輪廓線不可以被改變。1.2萬平方米的書城不能增加麵積,當然業主也不允許減少麵積。而原來的地下室也不再屬於書城所有了。在這次升級裝修中,需要引入和書城不違和的商業業態來平衡書城的經營成本,同時不能破壞書城的氛圍。上海書城要通過這次升級裝修在保證經營效益的同時繼續成為上海文化地標,並且複興作為“文化一條街”的福州路。
造城從書山開始
對曾經每個月都會有一天從軍工路換乘兩次公交車到新開河的外灘,然後步行到福州路,在各家書店盤桓的我而言,福州路的意義比南京路重要。但當福州路變成單向雙車道後,它原本狹窄的人行道就失去了步行的趣味。
就著這次升級裝修的機會,我希望把首層的空間釋放出來,結合人行道設計成一個可以管理的、半開放的公共文化廣場,從而讓失去步行的福州路重新有一個可以聚集市民的公共空間。
我利用原來的建築高差結合人行道設計了一個台地狀的廣場,並在室內形成一個名為“書山”的台地。這個深入建築內部的“書山”是個立體廣場。它可以用作新書推介,展示以及活動,更是一個文化生活的舞台。讀者可以隨意坐立、翻閱和閑逛,甚至即興歌詠。當然,站在最高處,可以俯瞰人來人往的福州路,陷入沉思。
∇ 書山
整個福州路的基調是灰色的,我希望用一個跳色去強化書山的意向。當查閱資料得知原址舊建築曾經是地下黨的情報站後,我就決定用紅色。紅色的書山成為人行視線中的第一個節點。由此通過自動扶梯進入作為垂直城市的書城。
要有光
第一次踏勘基地時,越到樓上越暗,六樓僅有的采光也被逃生通道給遮蔽了。所以要有光。我設計了三個相疊的兩層高的中庭,通過天光和玻璃地板把日光引到一樓的紅色書山的中央。
∇ 書城生成動圖
三個中庭分別是書城這個城市的廣場,禮堂和劇院。圍繞這三個節點,城市在2到7層的垂直高度展開。首先沿著自動扶梯延伸形成街道,街心花園,院落以及建築。自動扶梯每兩層錯位布置而將街道的觸角盡可能地深入到建築的內部。最後彙合在每兩層城市的中心—中庭。
∇ 側剖麵和三個中庭
整個城市有點像迷宮,需要逛。這個“逛”字代表了一種隨意、放鬆的生活態度,目的性不強,漫不經心、可能也漫無目的,卻能夠隨時、偶發性地獲得趣味,驚喜和快樂。所以要像逛馬路那樣逛書城,慢慢的,不急。
∇ 2&3F廣場中庭
∇ 4&5F禮堂中庭
∇ 6&7F劇院中庭
∇ 6&7F劇場中庭
∇ 6&7F劇場中庭的窗洞
∇ 6&7F劇場中庭的書架窗洞
書架即立麵
我是用一萬米長的書架來造這個城的立麵的。因為書城失去了地下一層,也失去了原來的書庫。書城在新增了疏散樓梯,衛生間以及設備用房、同時還要保證書店麵積和商業麵積的前提下無法再在樓上提供書庫,所以我決定讓書全部上書架。書架的2-6層是取閱區,1層和7層是存書區,8層作用是存書和封麵展示。兩層中庭高書架的作用就是展示。這樣連續的書架設計不僅放滿了47萬冊書,超過書庫規定的40萬冊容量,還構成了書城街道上連續的書的立麵。在書城營業前的媒體開放日,一位記者對我說,連綿不斷的書讓她覺得仿佛魚在大海中遊泳。
∇ 書架設計
我在第6層書架處曾經設計了一個連續的銅杆,架上爬梯,讓人可以爬上去拿上層的書,可惜在施工趕工的時候,這個設計被省略了,便成為我的一個小小遺憾。我用書架圍合了16個屋中屋,藏著辦公室,脫口秀劇場,作家書房,養生課堂,美術館和咖啡館。穿過兩側的書架後,有著簡餐,茶館,畫廊,咖啡館,藝術家具店,禮品店,文具店還有電梯,廁所以及疏散樓梯間。我一點不恐懼商業,也不排斥商業,我對店家的要求正如對開設在古城裏的商家那樣,必須尊重我這個書城連續的書的立麵。這樣可以保證不同的商業嵌在我的城市裏。我帶著記者從書山開始一層層沿著街道經過建築,中庭,天橋一直走到頂層。他們感慨道,這才是一次文化的city walk。這就是以書為城。
∇ 中庭的垂直交通,書架與屋中屋
以書為上海
每個人都值得尊重
因為它的多元性和多樣化,我把升級裝修後的書城形容成一個縮微的上海,但更重要的共性是包容。我的項目建築師建議把殘疾人坡道放到側邊,這樣正立麵會顯得完整。我拒絕了。我還要求坡道的終點是正入口,殘疾人要和健康的人一樣堂堂正正地進入正門,並能到達書城的每個角落。我根據我腰傷時候的經驗,把扶手都設計成便於抓握發力的4厘米長圓形。在書山背後我們還安裝了殘疾人的自動扶梯,當他們登上書山後就可以直接看到福州路。在書山上,每個人都可以是主角。
∇ 殘疾人動線
克裏斯托弗般的包裹
我沒有改變作為書城輪廓線的氣候邊界。我最後用穿孔鋁板包裹了書城的原立麵。一並把那些因為為避免穿洞而超過10%結構變動,不得不安置在外牆外的管道遮蓋起來。原來抽象、無語義的立麵就相當於給那些不愛讀書的人設了一道門檻,而將他們拒之門外。
我希望書城可以被閱讀,我用象征主義的方法來創造立麵,書城的外觀是由無數冊書脊堆疊形成的,書脊裏麵的紋路構成了最能代表上海的一種經典的現代化象征——“萬家燈火”。你能夠在這個圖案裏麵隱約地閱讀出浦江兩岸的變化。過去的外灘和代表現在的“上海三件套”和東方明珠,以及更遠的能代表未來上海的想象。“建築可閱讀”②是互聯網時代一個不可避免的需求,我們需要隱喻,象征以及各種各樣的符號,但又不能堆砌,所以我在上海書城創造了一種有分寸的、抽象的具象來提供各種閱讀的可能性和想象。
風景也是室內設計的元素
書城立麵的落地窗不僅是為了采光,而且能將書城的內部活動展示出來,它們更是舞台。馬路上往窗子裏看書城內的人仿佛是看電影一般的風景,而窗子裏的人看著馬路上的人,亦是在看戲劇一般的風景,卞之琳的詩歌便被轉化為一種 “可見的閱讀”而傳遞給大家。這樣的建築就可以被更深地閱讀了。當讀者從自動扶梯進入第四層名為禮堂的中庭,城市有如不可思議的幻覺,真實地在北麵兩層高的玻璃窗前展開,在夜色中如水晶般璀璨。讀者們會輕輕感慨,上海總是讓人驚喜不失望。
還是10%
五樓中庭有根梁,如果拆除它就會超過10%的結構變動。於是我把它變成了一個天橋。我站在這個天橋上放眼望過層層疊疊的城市樓宇,隱約可以觸及我設計的,在南京東路上即將落成的,沈大成樓上的春申好市。我想起了年少時,我背著一大堆書,在沈大成心滿意足地吃碗餛飩,然後回家。天橋一側有個書屋,透過中庭的大玻璃窗,再穿過書屋的小窗子,是我作為一個路人可以想象的一幅窗前讀書的圖景,是我年輕時去工人新村找同學時看見的那個揮之不去的圖景。是的,回憶總是美好的,我是用個人記憶在抵抗集體記憶的影響。
當我麵對書城
水晶宮
書城外立麵試燈的那個時刻就驚動了媒體和市民。穿孔鋁板加內透光的設計創造了被市民稱為“水晶宮”的效果,但其實和水晶、玻璃沒有任何關係。黃浦區燈光所在接到投訴後安排專人到現場測試了亮度,合格。而工人在按照燈光設計師圖紙調整了燈具角度後,眩光也消失了。符合規範要求的書城之所以顯得璀璨,隻是因為福州路偏暗的光照襯托而已。
那天,我站在即將落成的工作室新作——南京東路的春申好市屋頂看著最靚的書城,想起有人把它稱為奢侈品店,但有趣的點在於,奢侈品店的立麵單方造價起碼都是書城的4倍以上,卻做不到書城的質感,這樣看來消費主義的奢侈的確是一種虛假的幻影,相比而言,書本所蘊含的知識才是真正意義的奢侈品。
馬賽克史詩
在升級後的上海書城裏,你會看到原來書城立麵上的浮雕被保存在書山的背後C位。也會在疏散樓梯間看到被鏡框保護的98年的一根大理石柱子,那是工人無意中將自然花紋拚出一個人像而成為書城的一個傳說。不同人不同的記憶在這裏保留或者重新組裝,過去從未被忽視而是在當下或者不遠的未來繼續影響我們。
12月24日,我們在書城的一家家具店裏搞了一次芝士蛋糕的測評,書城有許多打開的方式,就像上海有許多打開的方式,不一而足,現在是我們創建新的記憶的時候,每天書城有1萬人次的湧入,這個數據是全上海80%商場都想要的,在我們現在這個時代,不讀書就已經會遠遠地被拋在後麵。那些所謂“不讀書的人”也在讀書,他們在手機上碎片化地閱讀抖音,小紅書,所以書籍更重要的是利用書城這個戲劇性的、知識分享的社交文化場所來與那些不精確的小紅書和抖音去爭奪那些已經被它們吸納而能閱讀一點的那些“不讀書”的人,讓他們開始相對精確、準確、正確地讀書,讓他們快樂。這樣他們就反過來拯救了書店。是這些讀者們,新的以及舊的,和從舊到新的書城一起創作了一部連續不斷的微型馬賽克史詩,鑲嵌了各種人的曆史,回憶,文學,傳說,神話,謎語,預言,符咒,八卦,爭議,反思,有著英雄,凡人,不完整的靈魂,卑微的神靈和破碎的愛情。這是上海的史詩。
不響
朋友的女兒,12歲,參觀完書城對我說“叔叔,設計得好好”,我笑得很開心。她又說“那些惡意的評論毫無道理”。我笑了笑,不響。
2023年,我的父母總計曆經四次急診,三次住院。我的夫人因為不慎跌倒,暫時失去行動能力。但這對我而言並不比5年來的其他任何一年更難。我已經習慣麵對這些突發情況並有條不紊地處理。“成年人的世界裏沒有容易二字”。當麵對不容易的時候,我們會抱怨,然後發泄,然後哀歎,但一個堅定的人就是應該處理完一切,不響。
我不太關心那些窮凶極惡的評論,因為這些發泄毫無意義。我有愛人,家人,朋友,員工,讓我覺得能持續創造什麼東西的設計,還有女兒,很滿足,我不響。
2024年,工作室會持續發布6-8個新作品,它們正如上海書城,不服從成見和偏見,馴服自己內心的焦慮,它們是我的建築學實驗也是我的態度,你們可以隨便說,但我還是會,不響。
∇ 項目地點
∇ 1F平麵圖
∇ 2F平麵圖
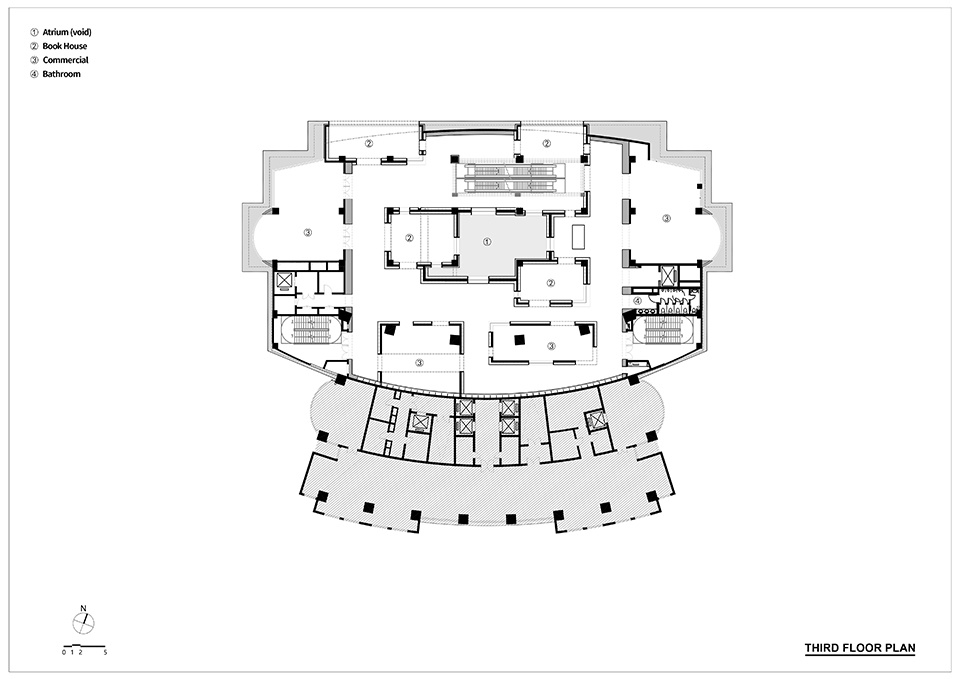
∇ 3F平麵圖
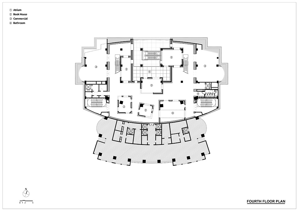
∇ 4F平麵圖
∇ 5F平麵圖
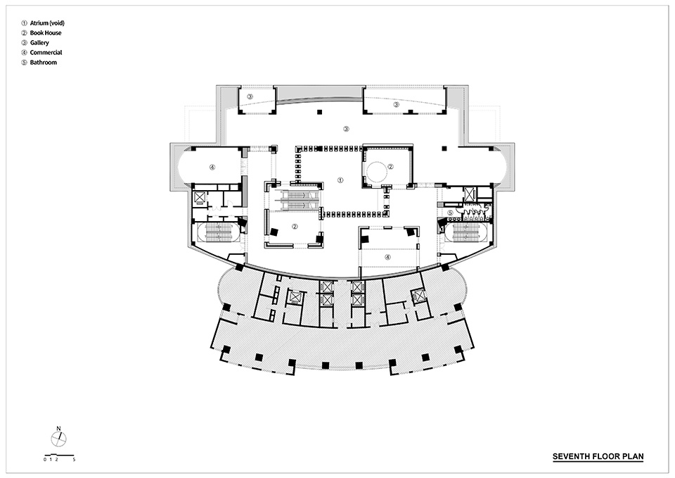
∇ 6F平麵圖
∇ 7F平麵圖
∇ 屋頂平麵圖
項目信息
項目名稱:上海書城改造設計
建設單位:上海新華傳媒股份有限公司
業主團隊:李鵬程,尹毅歆,徐賽剛,朱頎,董傑
設計公司:Wutopia Lab
主持建築師:俞挺
前期項目經理:濮聖睿
後期項目經理:李灝
項目建築師: 呂傑,林晨
設計團隊:李鵬,豐滋祥,張浩然,王秋硯,馮岩岩,張丹嫚,王磊,徐子傑
設計谘詢:MEEM HOUSE
照明顧問:張宸露,尉詩羽
景觀顧問:袁媛
材料顧問:丁叮,孫靜
施工圖設計:上海三益建築設計有限公司
項目總負責:高棟
建築專業:祝宇梅、葉霞、張雨
結構專業:胡文曉
機電專業:茅婭倩、王弈欽、徐智峰、劉寧、葉淋、石佳瑩
室內:於兵、沈睿、張芳、楊揚
景觀設計:鄭誌成、王粲、郭雨琪、張晉
幕牆深化單位:上海結宇建築設計有限公司
幕牆設計:蘇浬、葉鯤
軟裝設計:迦睿建築設計(上海)有限公司
軟裝製作:蘇州舒適家具有限公司
標識單位:上海賽馳標識設計工程有限公司
標識製作:灘外(上海)文化傳播有限公司
建設單位:上海建工五建集團有限公司
攝影:CreatAR Images
出鏡:陸琰
項目地址:中國,上海市,黃浦區
建築麵積:11936㎡
設計時間:2021.07至2022.07
施工時間:2022.07至2023.10
主要材料:氟碳漆穿孔鋁板,預製有機磨石,預製無機磨石,金貝大理石,玉石,鍍銅不鏽鋼,夾絲玻璃,亞克力,防火板,微水泥,黑鈦不鏽鋼,木紋轉印定製書架

























































