徐家彙書院是魔法
2023年元旦,wutopia lab曆經4年設計的徐家彙書院正式開放。它成為上海這兩個月最轟動的文化旅遊地標。也是第一次在工作室官宣之前就滿城盡知的項目。因此,這篇姍姍來遲的工作室官宣作文在某種意義上變成了總結。
我接手這個項目的時候,還不是徐家彙書院。戴衛·奇普菲爾德事務所完成的是一個書店的設計。後來書店退出,這個建築在完成外立麵和土建後便空置。在經曆了第二家書店的退出後,這棟建築才被確定作為徐彙區圖書館新址並命名為徐家彙書院。
Wutopia lab的魔法
作為建築師的Wutopia lab有自己的室內設計原則。從不在原有的空間上塗脂抹粉。我們總是用基於項目特點發展出一種新的空間敘事結構植入或者消弭原來的建築結構,從而創造出一種被稱為魔幻現實主義的新的體驗。
不過大衛留下了三層通高並兩側有夾層的中庭。這個古典氣質的中庭占據著中軸線的中心位置,無法回避。我需要避免被它誘導去建立一個古典的敘事結構,也不能無視它而完全建立一個新的敘事結構。
Robert Macfarlane在他的《Underland: A Deep Time Journey》一書中觀察到“核反應堆鈾廢料的掩埋:人們把廢棄鈾芯塊封在鋯棒裏,鋯棒封在銅柱裏,銅柱封在鐵缸裏,鐵缸包裹在膨潤土漿裏,最後將它們存儲在地下深處的岩層裏,放入數千英尺深的片麻岩、花崗岩或岩鹽之中。“這似乎是人類社會收藏重要物品的普遍程序。這就是層層嵌套的“中國套盒”式結構。“中國套盒”激發了我的靈感。
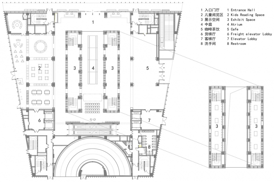
我決定在徐家彙書院建立一個來源於中國傳統的子奩盒的“中國套盒”結構。套盒的最外層是大衛薄薄的外立麵。第二層是圖書館主要的功能區比如咖啡,各種閱覽區,演講廳,展覽廳等。第三層是回形走道,第四層是作為圖書館閱讀大廳的中庭,而最裏麵則是作為套盒結構中最後保護的寶藏即圖書館的核心心裝置。
這個敘事結構轉化到空間上,可以把第2,3層看成一個A部分,第4,5層看成一個B部分。至於最外層的立麵作為套盒外皮,裏麵的套盒則可以在設計上獨立表達而不必受其建築語彙的影響。而第五層的寶藏不構成空間意義,但如果沒有,中庭這層盒子就是空心的,那麼套盒的象征意義就不存在。
∇ 設計示意動圖
那麼確立什麼物件作為套盒所收藏的寶物呢。徐家彙書院一度要整合土山灣博物館,所以把代表土山灣的牌樓放進來是合乎邏輯的。不過書院畢竟是圖書館,最後確認放入圖書館的標誌——閱讀桌。這是一張接近30米的,上海最長的閱讀桌。它們兩合在一起強化了中軸線也成為中國套盒裏最重要的寶藏。
按照 Wutopia lab的對偶策略,當AB兩個主結構被梳理出來後。AB就可以互為上下句。作為保護套盒的A,可以用混凝土,水磨石和塗料表達堅固。作為收納套盒的B,則可以用到頂的溫暖的木材表達愛惜。
在A區,也要用鋪地和灰色變化精細地區分出第2和第3層。也需要在作為圖書館主要功能區裏嵌套更小的套盒。一樓咖啡區是圓形的島台,兒童閱讀區是圓形的集中席地閱讀區,二樓則嵌入了取材土山灣玻璃工藝的彩色玻璃盒子作為休息區。三樓則把大衛留下的天窗結合照明設計成23層套盒之間的休息沙發位。
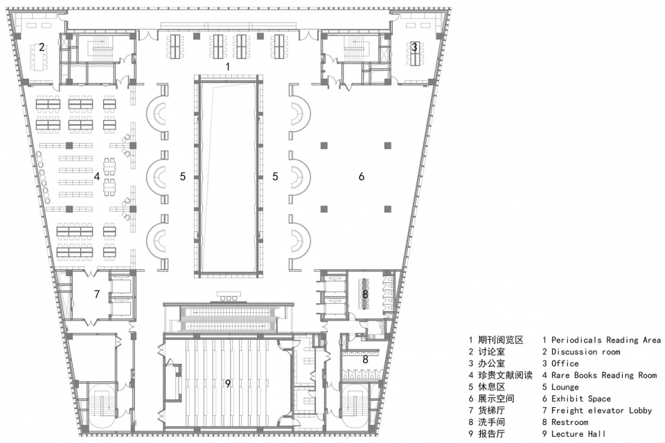
而在B區,則把中庭兩側的夾層設計成尺度親切的閱讀和展示區。這樣豐富了層層嵌套的結構。為了強化視覺,在AB區的交界,地坪和天花都做了除了,讓AB兩個區域不粘連,而形成獨立的視覺表達。
收納寶藏的B區展現出了神聖性。就此建築師借用書院鄰居天主教教堂的典型空間類型巴西利卡來神聖化中庭。將中庭天花設計成拱形而完成圖書館作為當代人知識聖殿的象征意義詮釋。並把拱形形式語言在一樓複製形成連續的拱形空間進一步把室內敘事結構和外立麵構造邏輯剝離而更符合中國套盒的敘事。而因為土山灣博物館最後並沒有納入書院,也就無法把牌樓引入中庭。最後大家決策決定用3D打印的方式打印一個現代設計改寫過的牌樓作為軸線的高潮。這樣,西方的巴西利卡和東方的牌樓,傳統的木結構和現代的打印技術作為一組巧妙地完成了命題作文,中西合璧,古今交融。從而把徐家彙作為中國現代科學的源頭的象征意義在層層嵌套的中國套盒的結構中得到升華。
這就是建築師的魔法,Basilica in library.
圖書館的魔法
作為建築師的Wutopia lab認為任何室內設計都是建築設計,去積極觸動城市。徐家彙書院是個區級圖書館,不算嚴格意義的研習型圖書館。它更麵對社區居民,有一定的社交性。所以徐家彙書院不應該是個封閉內向型的文化場所,它更應該是開放的,不僅需要吸引讀者,更需要吸引原來不怎麼閱讀的人。
開放性就需要中庭需要能在立麵上向城市展示出來。所以在麵臨主立麵廣場這一側,室內並沒有布置複雜的功能,而宏偉溫暖的中庭能夠透過玻璃和柱廊顯現出來。散發著光輝的中庭仿佛大海中安撫旅人的島嶼。
開放性不能傷害閱讀,所以建築師利用了大衛留下的寬闊的陽台設計了台階座位引流。書院麵對的是一個精致的城市街心廣場。建築師把廣場看成舞台,台階座位就是劇場,讀者可以在這裏看風景。更重要的是,“你在橋上看風景,看風景的人在樓上看你“。兩者的互動,讓嚴肅的立麵具有開放性。
有關部門希望藏在柱廊後麵的陽台能夠挑出來。但這會破壞原來的立麵。經過思考。建築師緊緊在二樓的陽台兩側設計了一步小陽台。別小看這一小步,一步跨出去,仿佛淩空,而融合在這個城市風景之中。人生常常需要一小步,去改變什麼。
一個開放的圖書館才能激活一個社區,才能讓城市真正更新。徐家彙書院受歡迎的程度超過我想象,兩個月18萬人次包括許多從沒來過圖書館的讀者湧入圖書館,這是有史以來,第一次是一個公益場所成為城中第一最熱的地標而帶動了已經很久沒有進入城中視野的徐家彙商圈,讓其再次受到關注。這就是圖書館的魔法。這就是上海的魔法。
那你說宇宙有多大?
-無限大。
《美麗心靈》
∇ 一層平麵圖
∇ 二層平麵圖
∇ 三層平麵圖
項目信息
項目名稱:徐家彙書院
室內設計公司:Wutopia Lab
主持建築師:俞挺
項目經理:濮聖睿
前期項目建築師:李明帥
後期項目建築師:濮聖睿
圖書館階段設計團隊:亢慶賀、蔣雪琴、安安、陳駿、陳少芬、王晶
設計谘詢:上瑞元築設計顧問有限公司
書店階段設計團隊:金瑞、潘暉、王麗洋、潘大力、餘婧
照明顧問:張宸露、蔡明潔、尉詩羽
空間標識設計:MEEM DESIGN(秀子,陳思雨)
展陳設計:上海美術設計有限公司
裝置設計與建造:上海一造科技有限公司
裝置照明顧問:張宸露、杜雨軒、李文海
施工圖設計:上海現代建築裝飾環境設計研究院有限公司
攝影:CreatAR Images
視頻:CreatAR Images
出鏡:iz
建設單位:徐彙區文化和旅遊局、徐彙區圖書館
施工單位:上海現代建築裝飾環境設計研究院有限公司
項目地址:中國,上海市,徐彙區
建築麵積:18650㎡
設計時間:2017.5-2021.12
竣工時間:2022.12
































