這項任務非同尋常:為一對日裔美國夫婦打造一間可欣賞格但斯克1000年曆史的度假公寓。在 Spichrzów 島上的格但斯克公寓樓的頂部,建造了一個兩層樓的空間,可以看到磚砌公寓房的頂部和 Motława。
在功能上,該對象類似於一棟獨棟住宅:底樓設有客廳、廚房和小浴室,閣樓上設有帶大浴室和更衣室的非凡主臥室。一個獨特的元素是設計師在裏麵建造的橋梁:它位於客廳左側的上方,通向一個有特殊工作場所的部分。但非同尋常且令設計師引以為豪的是,將漢薩傳統融入了從日本和美國汲取的靈感。如何結合三種截然不同的傳統?它們的共同價值觀和要素是什麼?答案之一是巨石的真實麵目——設計師與 Kashubian工匠一起發現的大石頭。正是這個元素連接了日本和格但斯克房屋的傳統。這個空間中的家具和配飾是當代全球設計的真正體現。
為了賦予空間最終的特征,設計師遍曆了澳大利亞、日本、美國,當然還有波蘭的倉庫。例如在這個空間中創造真實繪畫的大幅麵瓷磚。這個內部充滿了細節和微妙的極簡主義,它與獨特的室內裝飾和許多文化的影響交織在一起。閣樓的浴室是日本國粹和女性氣質,精致的傳統東亞浴缸、花卉和幾何圖案。整體配有拉絲黃銅配件。
∇ 一層平麵圖
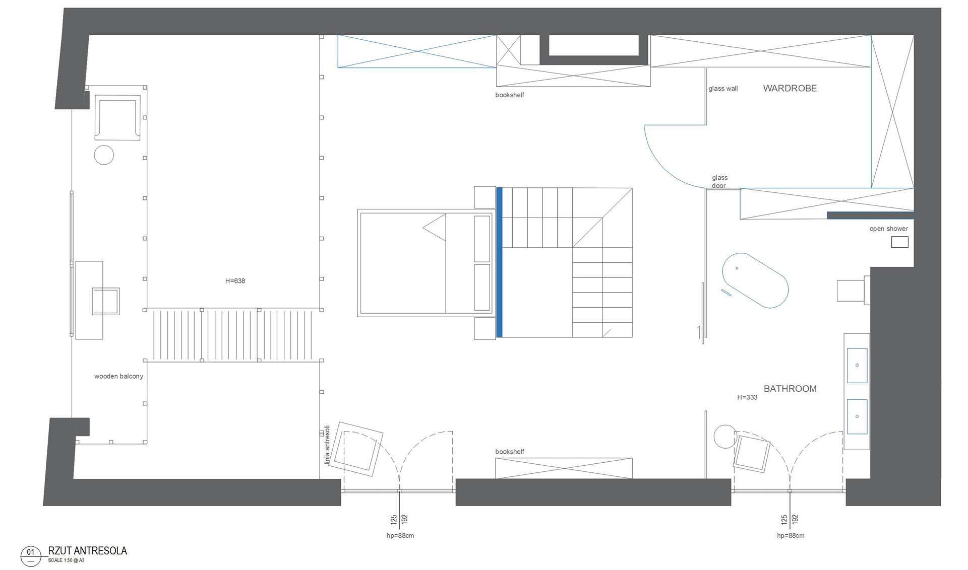
∇ 二層平麵圖
版權聲明:本站所有文章除投稿授權發布外,其他文字內容均為原創,享有著作權保護,未經許可不得以任何形式進行轉載(包括且不限於:媒體、網站、公眾號等)。所有項目照片/設計圖形版權歸原作者所有。本站部分內容源自網絡公開資源或用戶分享,如若侵犯了原作者的合法權益,可聯係我們進行處理。






































