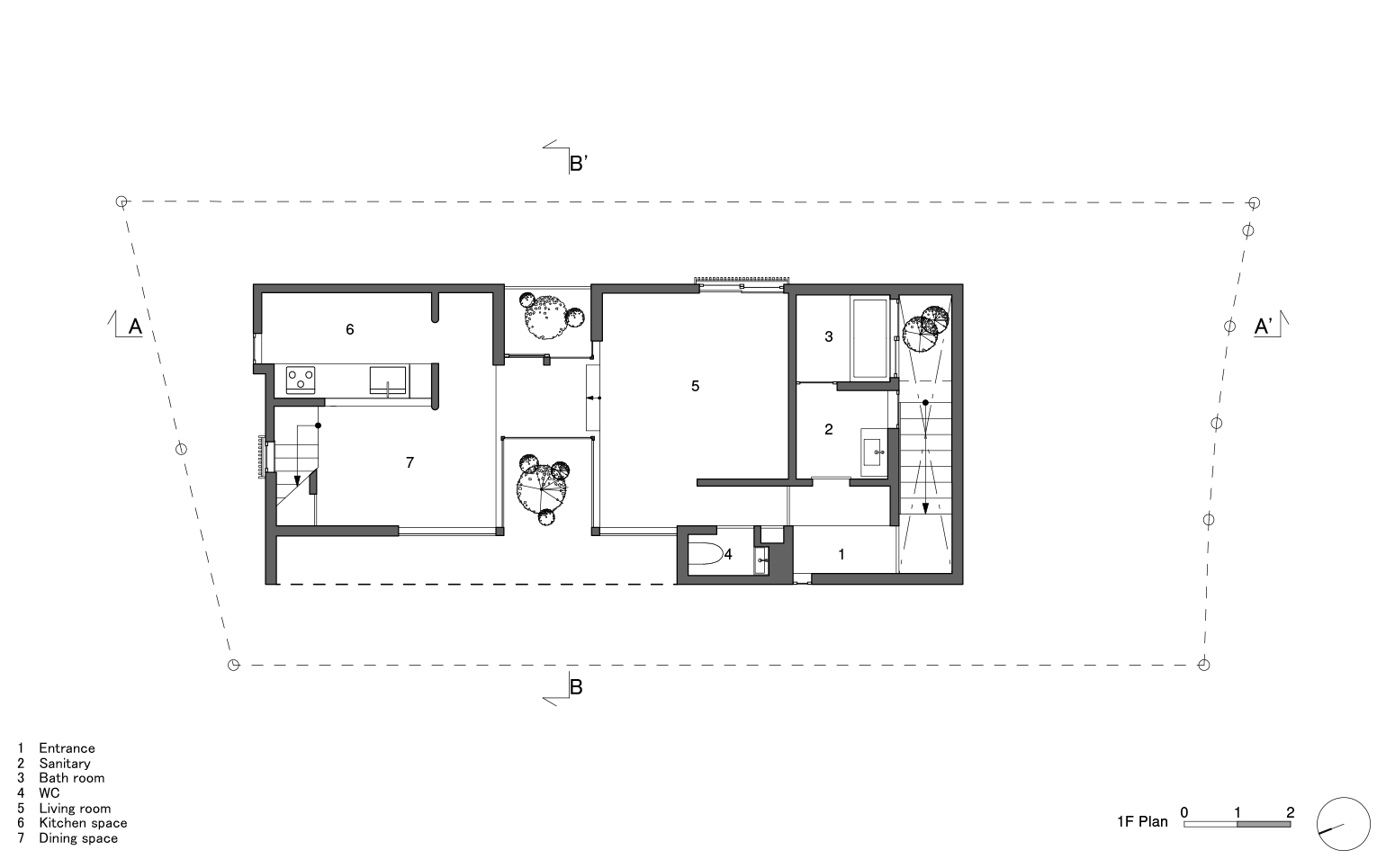
在大阪 Hokusetsu 區的一個住宅區,這所房子位於一個狹長的場地上,有不同的地麵層。客戶是日本料理的廚師,要求使用各種傳統的日本裝飾材料。有效利用場地不同的地麵層提供了不同的景觀和多樣而廣闊的空間。
入口可通過右側種植有植物的通道進入,然後沿著樓梯進入浮動建築。場地邊界後退1.5米,禁止施工,作為園林帶。通過使其從一樓的起居、用餐和廚房空間可見,FujiwaraMuro Architects賦予了這個有限的空間一種擴展感和多樣化的視野。
一樓的下沉式起居室作為招待客人的空間,長凳提供延伸至樓梯下的花園景觀。從房間內部看,這個以溪流為靈感的花園看起來好像通向很遠的地方。兩個小庭院位於客廳和更私密的廚房兼用餐區之間。
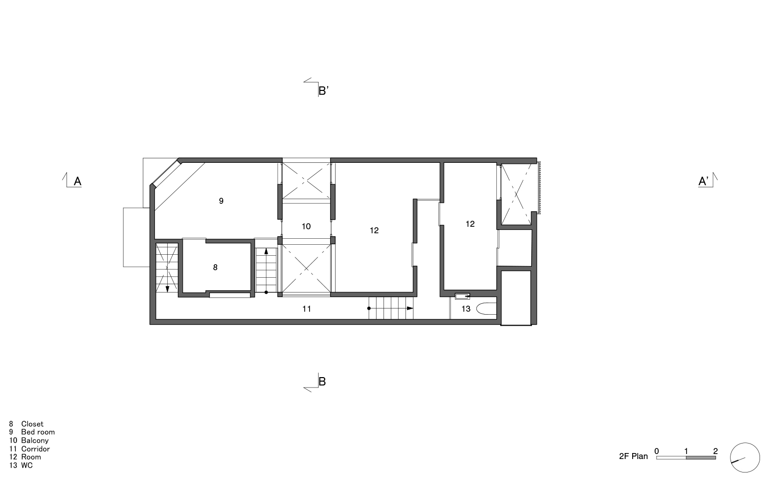
走廊橫跨花園,讓人聯想到花園小徑,俯瞰花園和天空,通往二樓的每個私人房間。這三個花園為房子提供了深度和廣闊性。
∇ 一層平麵圖
∇ 二層平麵圖
版權聲明:本站所有文章除投稿授權發布外,其他文字內容均為原創,享有著作權保護,未經許可不得以任何形式進行轉載(包括且不限於:媒體、網站、公眾號等)。所有項目照片/設計圖形版權歸原作者所有。本站部分內容源自網絡公開資源或用戶分享,如若侵犯了原作者的合法權益,可聯係我們進行處理。
























