本案位於廣州市中心島嶼,坐擁了這座江心小島的繁華與寧靜。在設計上,尊重島嶼自然濱水與文體地標的雙重屬性,意圖在喧鬧的都市和高壓的生活中,創造一個放鬆且自由的空間,實現業主追求的度假感。
基於居住者的實際需求和生活習慣,通過先“去中心化”再“聚合空間”的手法,讓空間的廣度、深度、功能、形式有了新的定義。“
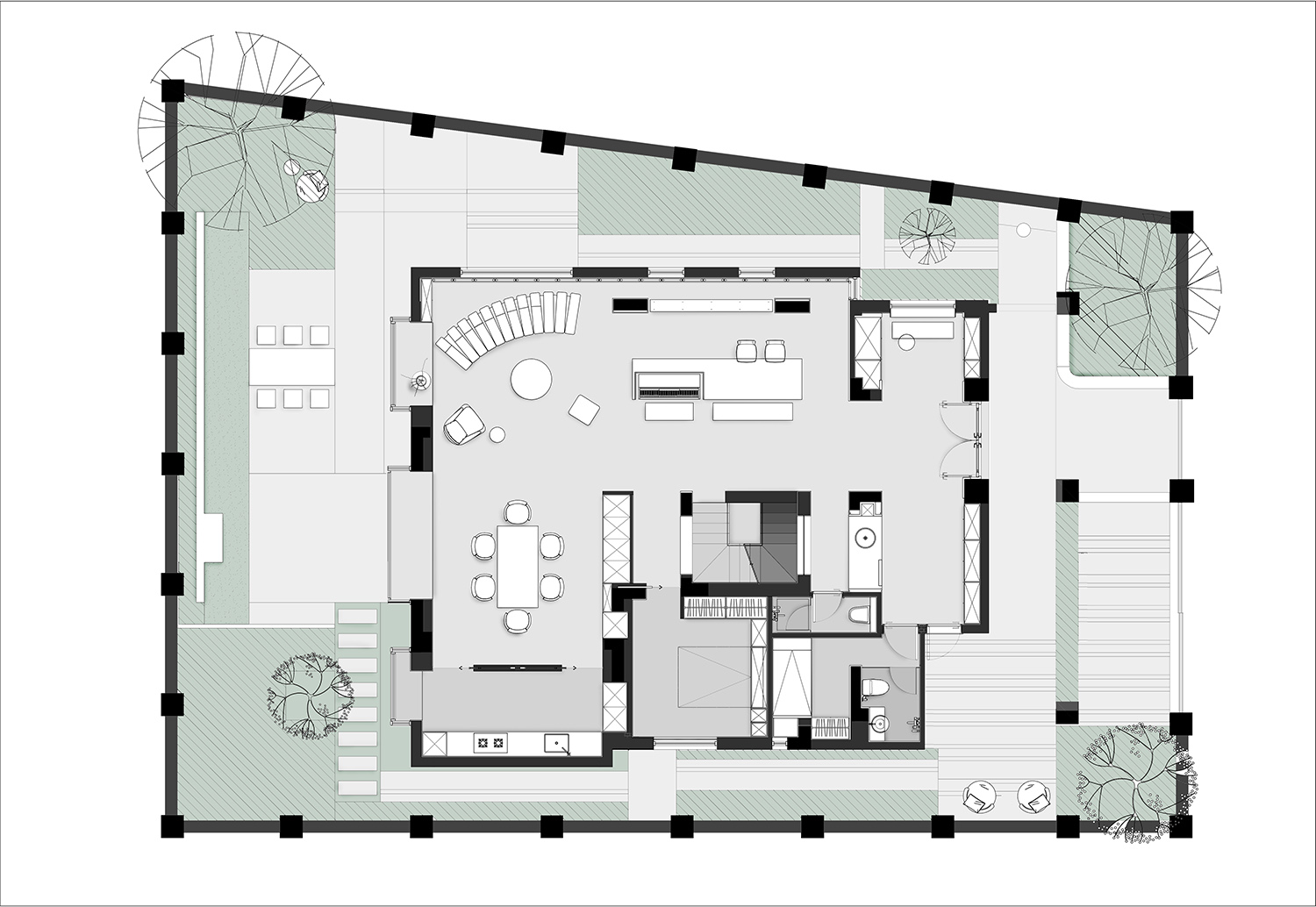
∇ 一層平麵布置圖
去中心化”的手法將原本傳統的客廳構建出足夠豐富的空間層次,不再隻圍繞著電視為家庭休閑的核心區域,而是改造為閱讀區、鋼琴區、休閑區的整體空間,建立了自由的視覺聯係與互動,加強了家人之間的情感。
磐多磨材質和岩板的結合,以獨特的質感構建起牆麵與地麵的氣度,木百葉窗以暗色調與條狀形,製造空間層次與生動光影,營造了具有生命力的休閑空間。
左右開放化的樓梯,以開闊氣度與極簡調性讓人眼前一亮。憑借精準的尺度與通透的質感為拾級而上的過程注入輕盈、安全的體驗。玻璃的穿插,打造了上、中、下視野逐次遞進的流通美感與交互思維。
空間衛生間的處理,促成集睡臥洗漱、裝扮於一體的棲居生態。圍繞著舒適性、開放性與通透感的主題,以利落簡潔的形體容納儲物、展示功能,預留符合人居動態的動線,帶領空間敘事走向深處。
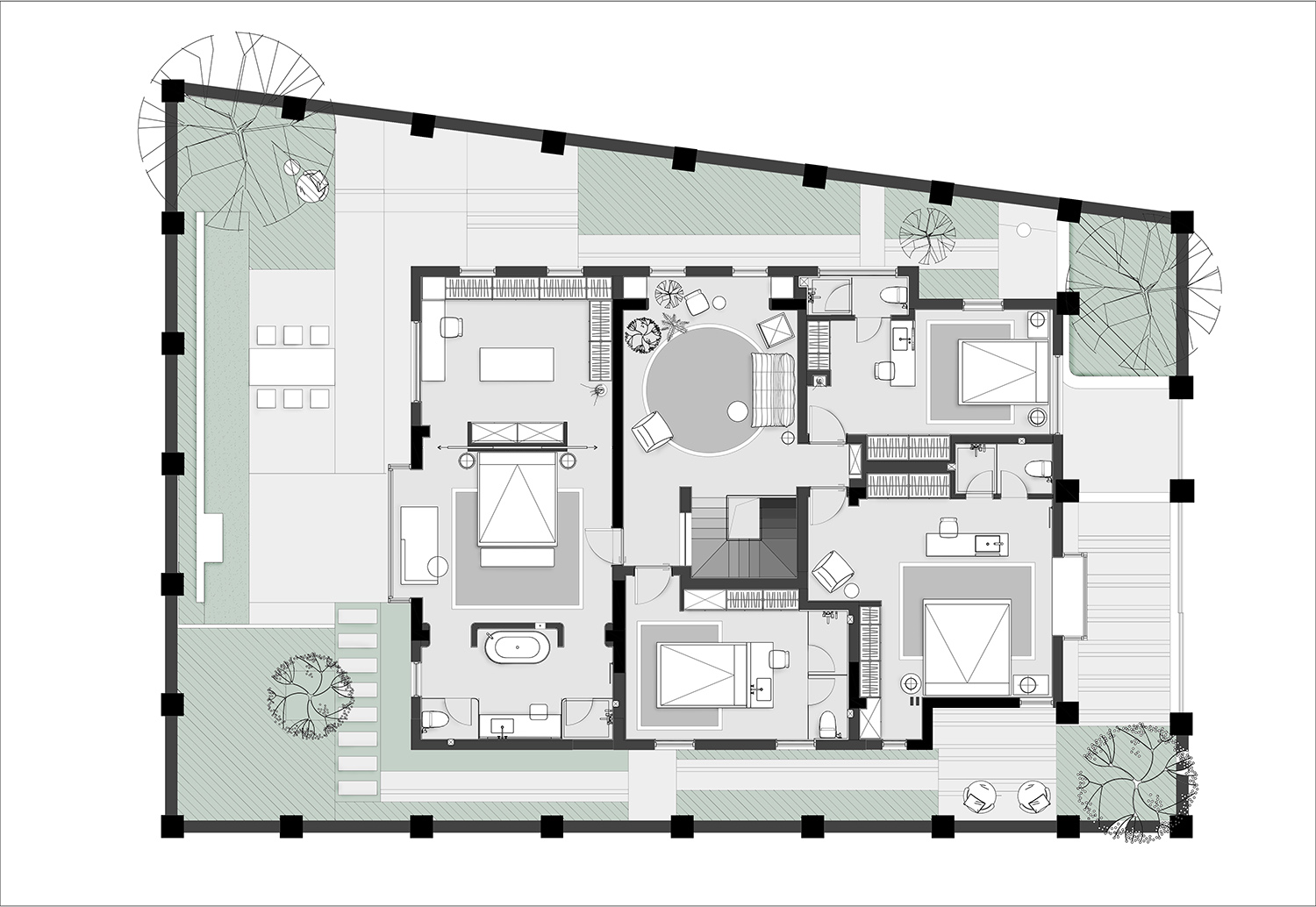
∇ 二層平麵布置圖
尖角屋頂拉伸了層高尺度,釋放出獨特性、呼吸感、節奏感,以窗形輪廓為界限,延伸出以木質鋪裝為主的睡眠區和以石材為主的洗漱裝扮區,分中有和簡中含細,浸潤出錯落有致、和諧融合的空間氣質。
考量采光條件,以對稱開窗的形式迎接自然的綠意,強化室外景觀對室內氛圍的影響,樹影斑駁,日光搖曳傳遞出自洽怡然和鬆弛愜意的度假氛圍。
∇ 一層平麵圖
∇ 二層平麵圖
項目信息
項目名稱 : 聚合
設計機構 :冉古設計谘詢(深圳)有限公司
設計內容 :全案設計、施工、采購一體
項目管理 :冉古設計谘詢(深圳)有限公司
設計總監 : 黃輝
參與設計 : 江挺
項目地點 : 中國 廣州
項目麵積 : 590㎡
完工時間 : 2022年10月
項目攝影 :葉鬆(翰墨視覺)
項目攝像 :阿玄(翰墨視覺)
主材品牌 :砼館-磐多磨、木裏木外、感物地板、Gessi、Hansgrohe、TOTO、億光照明、WICONA威克納門窗 華為智能
軟裝品牌 :Ligne Roset、B&B ltalia、Flos、poliform、Cassina、camerich銳馳、HunterHouglas亨特窗飾、Luce plan、Tradition、HC28、WHYGARDEN、未生活家居
特別鳴謝 :麗茲家居
冉古設計 2019 年成立於深圳,為有客製化需求的生活空間提供設計谘詢服務,作品種類涉及室內、景觀、產品、藝術陳設等多領域。
冉,在漸冉的時光中留存空間獨有溫度,在門裏屋外的行徑中給予空間美的停留。
古,今的文化曆史,彙聚中西,連接過去與現在的人文藝術,在過程中尋找設計之本 追溯設計之源。
冉古設計將人文、藝術、自然等元素融入空間的設計理念,以設計的方式去感受生活,賦予空間多層定義,不斷探尋居住者與空間之間的關係。

























































