有一種建築是在關注自然環境和建築原則的情況下完成的。客戶想要一個純粹放鬆和空虛的空間,就像大自然提供的那樣,山、水和天空是整個設計過程中的主要主題。客戶將這個地方命名為“TRIVIUM”,旨在通過三種自然元素向顧客傳達虛無的美學。建築過程中的填空難題是矛盾的,類似於光的波粒二象性,在隻有土和草的土地上考慮減少人工建築並不容易。設計過程涉及與客戶的反複合作,並注重簡約,創造出將自然融入每個空間的設計。
首先,ALIVEUS architecture認為結構簡單應該是整個設計的首要背景,而不是專注於裝飾。但是,ALIVEUS architecture不想以典型的框架式方式將自然融入每個空間。對於二樓的中央公共空間,創造了一個華夫格結構,帶有一個麵向天空的開放廣場,允許水平和垂直開放,並提供體驗天空各種景觀的機會。開放式天花板和水景根據天氣展示不同的外觀。重點放在使結構形式在環境中感覺更特別,在天氣好的日子裏,隻有風聲和樹葉聲的空間用於冥想和瑜伽等活動。
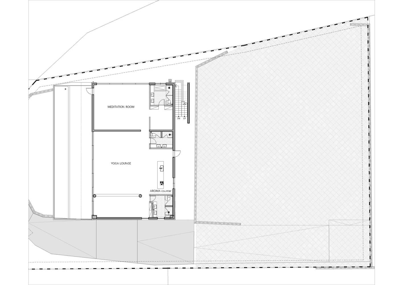
一樓是室內空間,露台上的水景與室外風景一起占據了整個空間。露台上的水景作為戶外休閑空間,隨著時間的推移在室內表麵提供反射光。暴露的混凝土表麵上的反射光可以被視為內部元素。這個空間主要用於瑜伽、冥想和香薰等活動,正如客戶所希望的那樣,它為訪問 Trebium 的人提供了一種平靜的感覺。許多坐在這裏靜靜觀察大自然的人,往往會體驗到一種放鬆的心境,然後進入夢鄉。
ALIVEUS architecture希望來到TRIVIUM這個承載著客戶長久以來願望的參觀者,能夠在參觀的過程中清空他們複雜的頭腦,或者相反,充實他們的思緒。在整個設計階段,用結構填充建築物並將其清空以融入自然的過程是一項具有挑戰性的任務,並且仍然很難定義我們對未來 TRIVIUM 的期望,就像光的本質一樣。
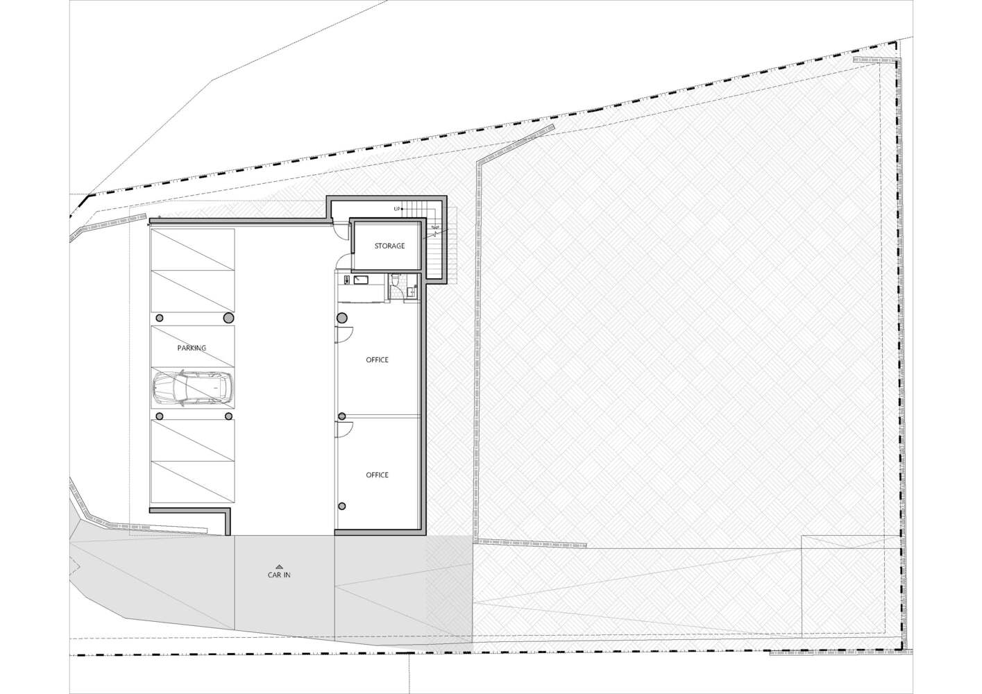
∇ 一層平麵圖
∇ 二層平麵圖




























