英國坎特伯雷國王學校,始建於距今1400多年的公元6世紀,是英國乃至歐洲最古老的學校。在2022年,英國坎特伯雷國王學校為與中國本土教育相結合,進一步推動21世紀教育發展,建立深圳前海國王國際學校,打造具有前瞻性的國際化教育平台。
矩陣縱橫設計團隊與深圳前海國王國際學校攜手打造了一個由中國曆史元素與英國本校理念結合的學校,致力於全方位推動21世紀的全球教育,踐行高標準高水平的先進教學理念,構建能夠體現前海生態、綠色、智慧化、智能化的“現代學校”。
學校占地麵積2.4萬平方米,總建築麵積超過5萬平方米,涵蓋小學、初中及高中的十二年製寄宿學校,是英國國王學校首次在海外設立的第一所分校。設置科學中心、運動中心、音樂中心、藝術中心等具有未來教育視野及國王學校特色的設施,注重學生均衡發展。
∇ 功能分區
01. 人文關懷——友愛社區
舒適的環境和具有啟發性的空間,學校兼具人性化的關懷,大幅度提升學生的安全感與幸福感。
校園門廳是學生校園旅程的第一站,通高的門廳與來自自然日光的明亮光線,點亮空間活性,使人感到充沛的活力與生機,為學生的新階段啟航帶來關於未來的無限暢想與希望。
健康福利中心是國王學校成立理念的具現化空間之一,在人的成長過程中,心靈的健康發展與知識的學習同等重要,國王學校希望通過營造支持型社區,令來自不同世界、不同信仰與不同家庭的學生與教師都擁有被接納與被發展的權利,並為他們在繁忙的校園生活中提供能夠反思與放鬆的空間。
02. 卓越的學術能力——機會力
保留英國坎特伯雷國王學校的核心教育課程,同時融合中國課程,滿足學生不同的教育需求。邁入中西合並的教學大門,打造專業型學術空間,強調學生的創造性、主動性和深度學習,善於發現學習的樂趣,使學習成為愛好,提升學生的創造性、主動性和深度學習能力。
圖書館位於學校庭院中央,是校園內最核心的位置。圖書館藏書量豐富,國王學校每年都會對圖書館的藏書進行擴充。通過提供各種類型的書籍,孩子的語言邏輯性和學習自主性能夠得到培養,並且老師也將會協同學生一起展開“悅”讀,從書中汲取知識,探索書中奧秘。
溫暖的原木紋理質感的櫃架桌椅,日光透過玻璃在室內變幻流轉,打造明朗且靜謐的閱讀氛圍,通過輕鬆、舒適的空間,使閱讀不再成為枯燥孤獨的學習行為,而是與日光作伴,幫助孩子發掘其中的樂趣,享受閱讀旅程中書籍帶來的愉悅。
03. 空間的自由度——創造力
通過有序線條構築極具幾何感的階梯,這是進入到充滿無序的浪漫音樂世界的舒緩前奏。音樂給予人心靈放鬆的搖床,前廳的建造不僅為學生的音樂才能提供了表現的平台,同時也是學生與學生之間、老師與學生之間的精神交流場所。
國王學校在音樂方麵有著曆史悠久和優良的教學傳統,在深圳前海一樣延續這種傳統,開展古典樂、歌劇、爵士樂和流行音樂等。為學生營造多元且有活力的校園學習氛圍,通過有趣的活動感受理解,並在這裏開辟專屬於自己的小天地。
04. 課外活動機會——互動與溝通
國王學校打造校園大型體育綜合體 ,超大空間的自由度,全方位發展體育潛能,激發出學生青春蓬勃活力,創造美好校園生活。
體育鍛煉活動離不開豐富多元的體育場所支撐,潔淨舒適的運動場所能夠為學生帶來自在輕鬆的運動氛圍,通過軒敞的前廳引導學生自發加入體育活動中,發展健康積極的良好社交關係。
國王學校運動形式多種多樣,其中包括遊泳活動。校內打造標準化泳池,靜謐的池水結合透亮采光,使室內泳池既能保持與自然環境的親近,同時提供安全的運動環境。
05. 秩序井然和諧友愛——生活感
宿舍根據學生的年齡特點與學段特點設立了不同的生活宿舍,在校園時光中給予學生最優質的人文關懷,關愛孩子身心成長,提供合理健康的生活空間。
辦公環境簡潔大氣,以簡約的布置回歸事務處理的本質,實現高效高質的辦公,保障校園生活的有序進行。
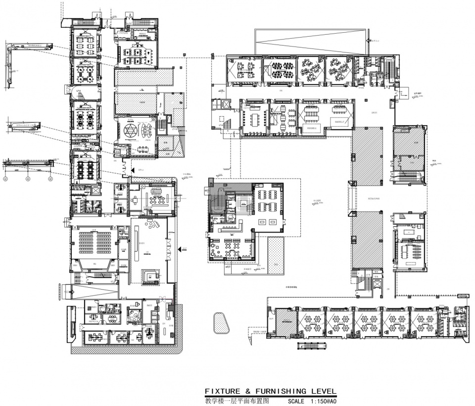
∇ 教學樓一層平麵圖
∇ 教學樓二層平麵圖
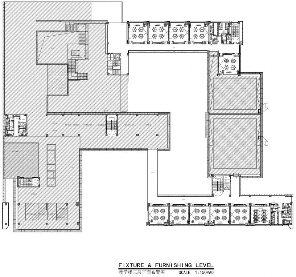
∇ 教學樓三層平麵圖
∇ 教學樓四層平麵圖
∇ 教學樓五層平麵圖
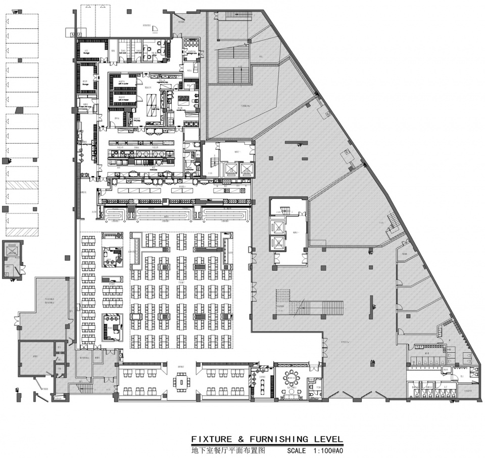
∇ 地下室餐廳平麵圖
項目信息
項目名稱:深圳前海國王國際學校
設計方:矩陣縱橫
完成年份:2022
主創及設計團隊:王冠 劉建輝 王兆寶 萬夫 張鳳 龍亞 王重光 盧玲
項目地址:前海合作區月灣街375號
建築麵積:3.08萬㎡
攝影版權:釋象萬合
合作方:steelcase
客戶:恒裕集團 前海國王國際學校
材料:木紋碳鎂板、磁力書寫板、波紋鋁板、木紋衝孔鋁格柵、吸音塗料、麥卡倫大理石、法國木紋大理石、古銅色不鏽鋼、衝孔石膏吸音板、礦棉吸音天花平貼板、木紋定製擴散體、塑膠地板

















































