城市更新的背景下,被擠壓的城市空間與未被滿足的美好生活需求是當下迫切需要解決的重要課題。新時代的城市更新不僅僅是房地產、老舊建築的改造,更是對消費升級背景下人們生活方式的更新,未來城市空間的功能和形式也將迎來重要改變。
本著服務於人們對美好生活的追求,更多元地體現人文關懷,南京中海與DAS Lab聯手打造了與山咖啡書吧,為未來的人居社區及品牌商業提供了新的可能。
項目落址於南京江寧區的中海·與山咖啡書吧,緊鄰方山,風物薈萃,契合項目區位優勢,DAS Lab致力於突破單一的美學思維導向,立足於以品牌思維和用戶體驗為核心,根植於項目的整體性與價值升級,為消費者提供未來可及的生活方式。
空間以“平衡 · 有度”為概念展開,一場關於平衡工作與生活、外在與內心的敘事,提倡一種有度的生活,一種內心豐盈的狀態。DAS Lab對設計探索不止於從生活方式、文化加載、藝術美學、社交需求等多維進行延展,打造未來社區場景歸屬感。
DAS Lab致力於行業的洞察和品牌的研究,聚焦商業轉化與最貼近於生活本真的場景之間的張弛平衡,推陳出新滿足商業運營、品牌傳播、共享社交和情感體驗等多元化空間。
在“平衡 · 有度”的理念下,設計師通過對消費者客群和運營商使用的功能分析,在空間中創造四個獨立各異而又相互聯係的功能體塊,打破空間固有的界限,串聯起消費者的行為動線和多種場景下的使用可能。
空間體塊的堆疊在中央形成一處關於“平衡”的功能道具,它既可以有著無聲的渲染力的裝置,亦是一個可以聊天遊戲、看書辦公的共享桌子,通過材料質感的語言與空間發生關係,呈現其特有的節奏和層次。
DAS Lab的初衷是尋求一種內在的平衡與回歸,在空間的家具和道具的設計中,設計師以旋切樺木的多層板做為主要的材料,以一種產品剖麵的視角展現給消費者,希望傳達一種真實的、貼近生活本真的狀態。
在分布於空間的道具中,我們點綴了很多來自於方山的火山碎屑岩,在空間的道具中藏與露,在靜與動、實與虛的平衡中構成趣味的整體。
本次的設計不僅於空間的演繹,也在咖啡書吧的選品上下足了功夫。在產品周邊的選擇上除了品牌相關的衍生周邊外,值得一提的是與生活家居創意品牌NaNarine聯名推出yushan X NaNarine定製款植物香氛禮盒,通過聯名的形式將力圖打造未來人居美好生活的理念進行傳播。
在書籍選品上,我們不僅選取了葉兆言先生的《南京人》這類的本土文學,還涵蓋了藝術設計、曆史人文等領域。
對品牌的洞察和商業的長效運營一直是DAS Lab所關注的。
將年輕元素滲透到品牌的肌理,營造“一個有溫度的場所空間”,打造一種麵向未來的生活方式,讓社區不隻是密閉的空間,而是社交活力發生的場所,使社區生活場景不斷延伸,在複雜敘事之中洞見生活本真,展示出更多創新的可能性。
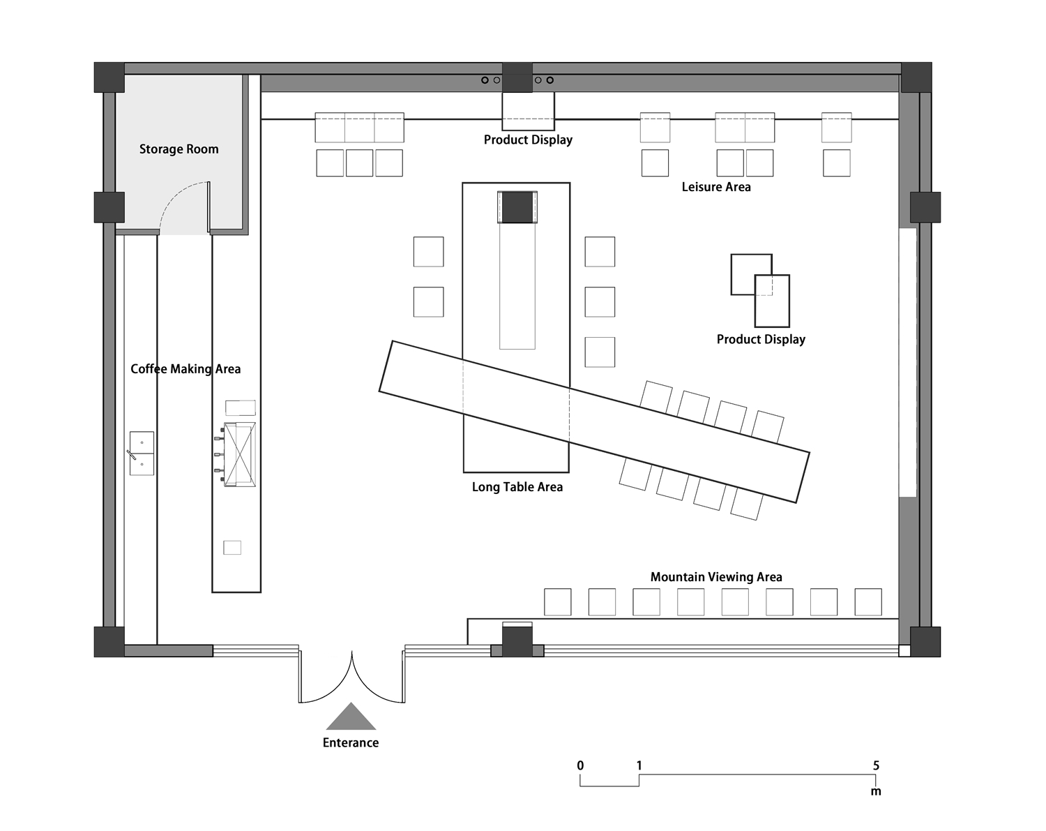
∇ 平麵圖
項目信息
項目名稱:南京中海與山咖啡書吧
項目地址:江蘇 南京
業主名稱:熊勃、金樑、沈欣、高威濤、錢嫻、唐紅梅、包軼楠、夏天
業主團隊:中海地產
室內設計:DAS Lab
道具設計:DAS Lab
軟裝設計:DAS Lab
動效團隊:YUAN STUDIO
完工時間:2022年11月
項目麵積:136 ㎡
項目攝影:汪敏傑

































