美國 / 洛杉磯 / 商店 # Odami #
伊索洛杉磯店靈感來自於它的自然環境,以及當地的鄉土建築。這家商店以新鮮的綠色色調和多層的質地材料為基礎,喚起了青翠的氛圍。
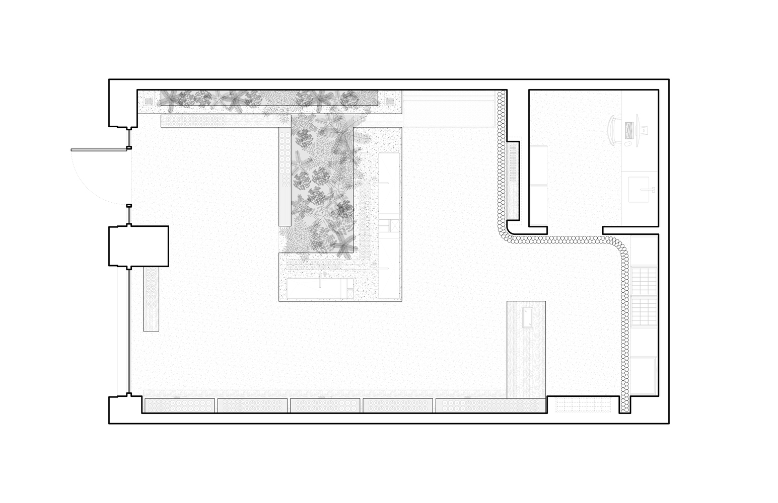
牆壁、天花板和地板都是用微水泥完成,給空間提供了一種有觸覺的、泥土般的氛圍。一個天鵝絨窗簾蜿蜒穿過整個商店的後麵,以隱藏存貨儲藏室和實用室,它的褶皺和質地強化了商店的物質性以及光和陰影的調節。
商品放置在這一正在展開的景觀中,各種存儲和展示需求被解決為由再生木材或不鏽鋼組成的長水平麵,以創造一個輕浮和質量的相互作用。
進一步融合內外環境,自然和建築環境,引入了一個天窗為一個新的室內花園,重點是自然光。伊索的設計,旨在創造一個生物環境,通過自然的存在和喚起,提升自我完善的儀式。
∇ 平麵圖
∇ 軸測圖
∇ 軸測圖
版權聲明:本站所有文章除投稿授權發布外,其他文字內容均為原創,享有著作權保護,未經許可不得以任何形式進行轉載(包括且不限於:媒體、網站、公眾號等)。所有項目照片/設計圖形版權歸原作者所有。本站部分內容源自網絡公開資源或用戶分享,如若侵犯了原作者的合法權益,可聯係我們進行處理。




















