當沒有空調和風扇時,許多代人從經驗中學到,在越南建造房屋時能夠適應炎熱潮濕的熱帶氣候:涼爽的風向;使用深頂;格子;厚實的牆壁;種植一棵大樹來製造樹蔭;水麵……所有這些都是創造緩衝空間的因素,為內部的生活空間帶來很多價值。
門廊是任何家庭的大緩衝區。無論是在內部還是外部,門廊都不能被認為是民居中最”人性”和大多數建築空間之一,尤其是在越南北部。這是一種空間模糊;是濕/熱/幹/蔭的交叉點;是家庭活動和鄰居聯係的多功能空間。
根據這一想法,位於越南北部–一個女兒(著名時裝設計師)為她的母親在家鄉建造的房子–是一個由可用空間和不同比例的門廊/緩衝區/或模糊空間組合而成的住宅結構。
12x12x7m大小的混凝土牆是一個視覺塑造元素,也是公共區域(咖啡店)和私人區域(住宅)之間的功能劃分。居住空間的整個功能被封裝在混凝土牆後麵的體積中,由一個傾斜的屋頂係統保護,屋頂脊(2米)下降。
∇ 爆炸分析圖
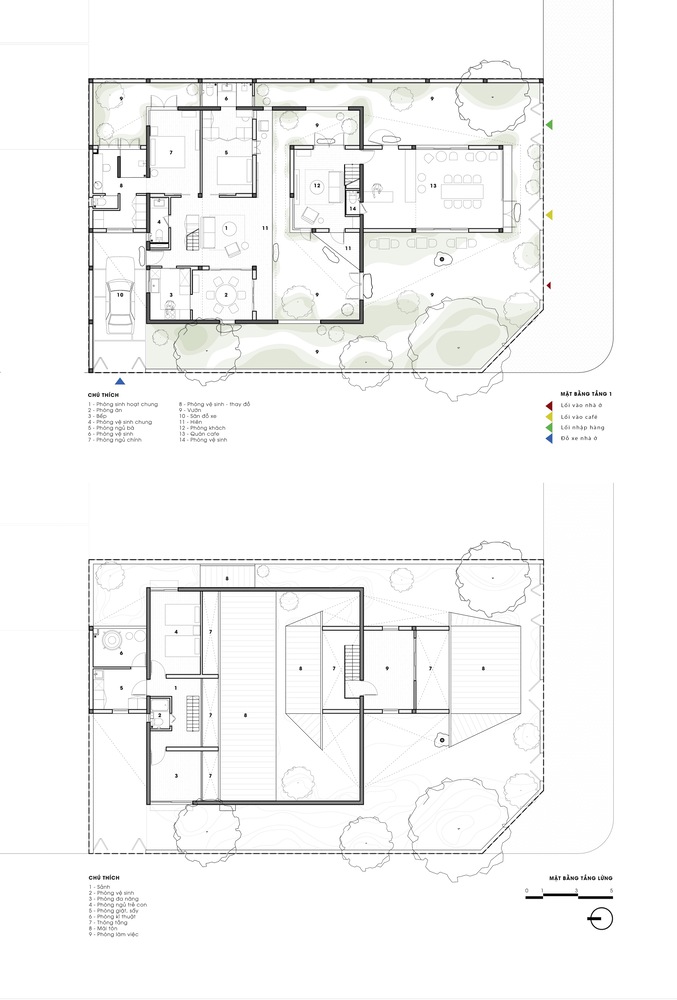
∇ 平麵圖
∇ 剖麵圖
∇ 結構分析圖
版權聲明:本站所有文章除投稿授權發布外,其他文字內容均為原創,享有著作權保護,未經許可不得以任何形式進行轉載(包括且不限於:媒體、網站、公眾號等)。所有項目照片/設計圖形版權歸原作者所有。本站部分內容源自網絡公開資源或用戶分享,如若侵犯了原作者的合法權益,可聯係我們進行處理。
















































