莫斯科熱鬧的景色促使設計師Yulia Barshevskaya產生了該項目的想法——支持城市的全景,但以充滿平靜和安寧的室內空間來對抗莫斯科的喧囂。
△ 設計師-Yulia Barshevskaya
“全景窗戶和從50層俯瞰莫斯科的景色決定了這個項目的主要理念,”設計師Yulia說道。“我想保持城市的全景,並使用天然材料、美麗的紋理和平靜的自然色調來創造一片平靜和安寧的綠洲。”
顧客是一名26歲的女孩,是銀行部門的負責人,要求有更多的存儲空間和舒適的工作場所。對她來說,功能性是首要任務。一個特別的願望是不要使用溫暖的淡黃色木材,因此朱莉婭為廚房和木地板精心挑選了柔和的冷色調單板。黃色是顧客最不喜歡的顏色,藍色是她最喜歡的顏色,這也體現在室內裝飾上。
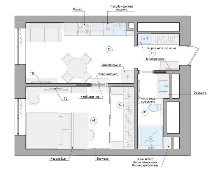
盡管麵積不大, 在公寓內可以組織六個功能區- 走廊、廚房、客廳、臥室、工作區、衣櫃。開發商的布局中設計了兩間房間加一間浴室。設計師去掉了通往臥室的小走廊,將衛生間的入口從房間移至走廊,從而擴大了更衣室的麵積。
臥室特別成功,其布局使公寓的主人可以從床上和工作區欣賞莫斯科的景色。在這裏可以製作最實用的存儲空間:為其中一堵牆設計了一個架子,它同時充當梳妝台和電視區。
“在這麼小的公寓裏,一切都一覽無遺,我盡可能地隱藏了所有功能細節,並使用內置家具,”Yulia說。走廊的衣櫃裏,除了衣架之外,還有一台洗衣機,對麵的吊櫃封閉了配電櫃,下麵開放式的架子,用來放置鑰匙、電話、眼鏡等進門時需要放置的小東西。浴室在空白和玻璃幕牆後麵還有很多儲物櫃,但它們並不引人注目,因為它們與牆壁的顏色融為一體,是空間建築的一部分。
∇ 平麵圖
版權聲明:本站所有文章除投稿授權發布外,其他文字內容均為原創,享有著作權保護,未經許可不得以任何形式進行轉載(包括且不限於:媒體、網站、公眾號等)。所有項目照片/設計圖形版權歸原作者所有。本站部分內容源自網絡公開資源或用戶分享,如若侵犯了原作者的合法權益,可聯係我們進行處理。



















