“自然”是上帝的造物”藝術”是人類的展品————朗費羅
一抹自然的綠意,滲透於窗外的景觀,推開九廬的大門,一股清新的氣息撲麵而來,仿佛進入了另一個世界,一切變得寧靜與和諧。
本案,位於陸家嘴·九廬,160㎡大平層,兩房的現代精裝交付標準不太能滿足四口之家的需求。屋主希望在盡量避免拆改廚衛的基礎上做設計。
白色係+輕法+溫暖明亮+自然質感的設計風格,軟裝上則采用現代+意式極簡的溫柔搭配,營造出優雅舒適的空間氛圍。布局上,設計師重新劃分,將原入戶玄關麵積減半,部分作為收納及通往房間的走道,部分給到玄關。主臥衣帽間拆除後,多出的空間與原走道的空間全部劃分至次臥,次臥麵積獲得延伸。
// 玄關:綠色係·藝術的動態趣味
∇ 軸測圖
逐一拆解時空的脈絡,將藏藝帶入空間。拱形門連接玄關與走道,客廳視角下,是“別有洞天”的景觀區。隱藏式收納與綠色係的組合,給人煥然一新之感。
錯落有致,層層包裹的Verpan貝殼燈,激發聽覺和視覺的雙重感知,為生活注入熱情和動態趣味的幸福。
集功能與美觀於一體的Zanotta藝術邊櫃像是為這個空間量身定製,無論是尺寸比例、獨特的設計風格,亦或是充足的雕塑感,仿佛都在訴說著:恰到好處的自然之美。
// 客廳:隱藏式收納,藏美於雅中
∇ 軸測圖
現代法式與浪漫時尚的溫柔搭配,奶白色與淡雅綠的清新相遇,細膩柔和的基調與克製線條的雅致融合,打造了高級感&時尚經典的客餐廳空間。
原寬廳設計的客餐廳,全景窗直麵江景,好不愜意。為加強互動感,設計師將原封閉式廚房調整為半開放式,島台上方設計的嵌入式卷簾,可以過度油煙,收放自如。
以藏為美的設計手法,滿足女屋主的強收納需求。客餐廳可見的牆麵均做了隱藏式收納櫃。窗戶的卡座,中間區域全部做鏤空設計,左邊區域、島台、右邊的臨時櫃體等兼具收納功能。
Linge Roset 多元化主沙發,滿足屋主幾代人的生活方式,可靈活移動位置的靠背,實現生活場景化的多種可能,既可以調整方向欣賞江景或追劇娛樂,也可以躺著小憩。Finn Juhl單椅,融合卡座,客廳圍合式氛圍感立現。
陽光透過紗窗灑在地麵上,靈動的白色係,給人一種寧靜而純粹的感受。自然質感的風格,似乎把天地萬物帶入了家,讓人與大自然和諧共融。
// 餐廳:圓桌設計·細節處精心雕琢
步入開放餐廳,猶如闖入一處美學空間。它將光與影、線條與曲度融入靈動設計,用簡約的方式來展現精致。
一桌美食,細數世間甜美,1.35米的圓桌和開放客廳的設計,增加了客餐廳外部的活動區域,視覺上更顯舒適。
現代摩登別致的造型,感受著簡單的美感,經典大理石餐桌Agapecasa 搭配極具未來感的Roche Bobois 透明圈椅,賦予空間豐富的定義與深度。
// 兒童房:柔軟與堅固,結構美學相融
∇ 軸測圖
逐一拆解時空的脈絡,將藏藝帶入房間。既可敞開又可關閉的兒童房,通過結構上的劃分,讓同一區域的兩位小屋主,既可以共享休閑娛樂空間,同時也擁有各自獨立的“秘密基地”。
淡綠色主色調區域是弟弟的“理想國”,哥哥的房間則是白色係,站在哥哥房間的視角看向弟弟的區域,有無限延伸的感覺,色塊分明,趣味十足。
中間推拉移門的設計,將兩個區域彼此關聯又相互獨立,當移門打開時,是兄弟倆一起交流互動的公共區,當移門關閉時,便是各自獨處的獨立空間。考慮到弟弟早睡,靠窗戶位置是弟弟的“寶庫”,哥哥則安排在了內側。
兩米長的書桌,公共活動空間充裕,兄弟倆平日對書房的要求非常高,設計書桌時,設計師盡可能設計成最舒適的尺度。書桌與單人床箱的燈帶設計保證了足夠的照明。
家,是每個人心中的港灣,亦是一座承載歲月的建築。觀賞窗外的風景,聆聽鍾聲的輕敲,仿佛置身於“世外桃源”,與浪漫共舞,感受流動的美學。
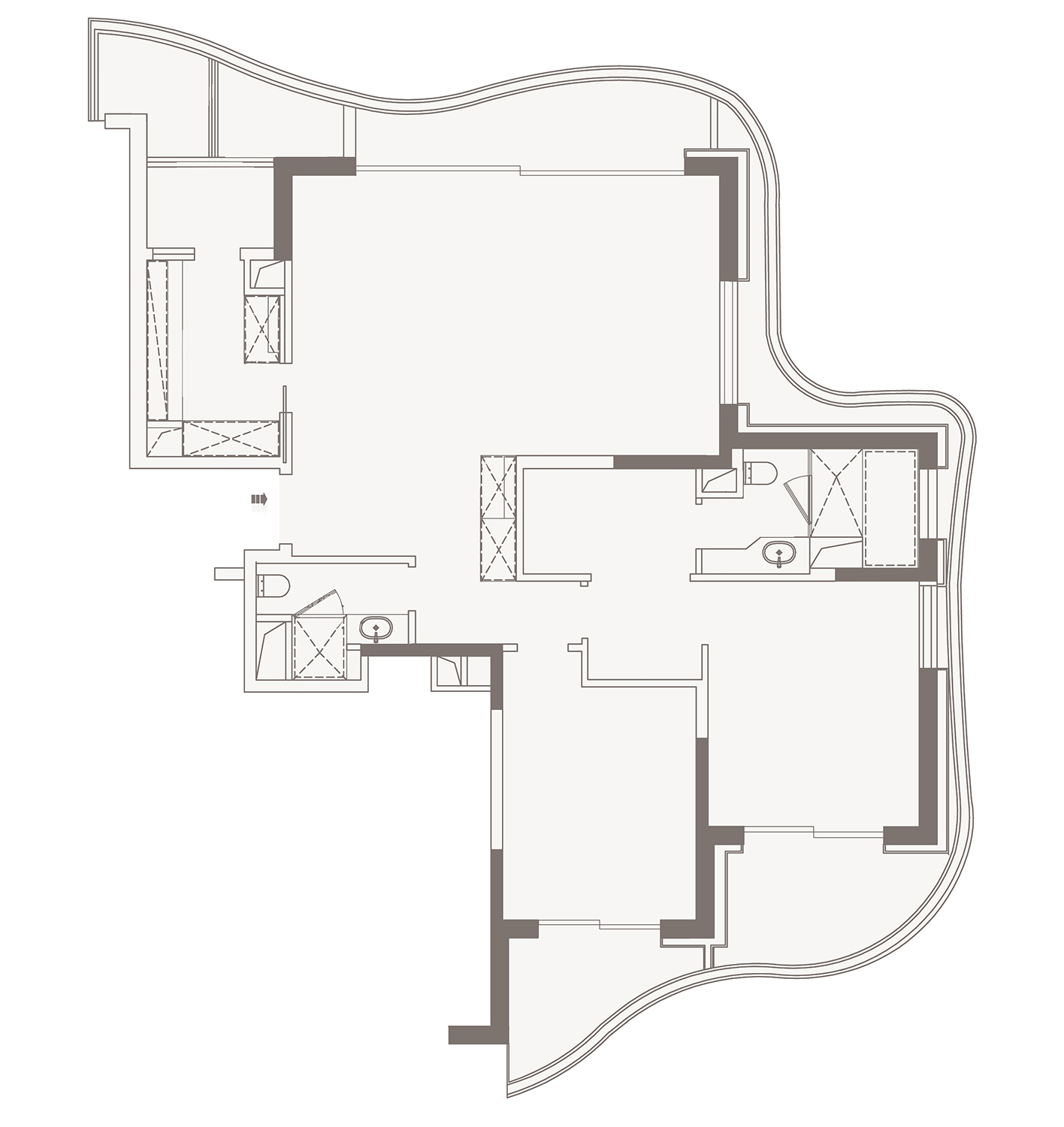
// 戶型設計:以藏為美,雅中拾趣
∇ 原始平麵圖
∇ 平麵布局圖
項目信息
項目地址丨Address:上海浦東
麵積丨Area:160㎡
設計單位丨Company:上海示覺室內設計事務所
服務方式丨Service:硬裝+軟裝全案設計服務,主材+軟裝代購及落地服務
聯係方式 | Tel:19921398746
![]() |
更多上海示覺設計作品 / 公司信息 進入主頁了解! |





































