TODAY’S SPECIAL 是一家簡單的商店,喚起日常生活的感覺,提供一生一次邂逅的興奮。在去商店之前,它會給人一種期待的感覺,比如,“如果我去那裏,也許他們有我一直在尋找的東西。” 當一個人去那裏時,會讓他們覺得,“也許這就是我真正想要的。”
Schemata Architects + Jo Nagasaka放置了各種紋理、高度和尺寸的裝置,以營造一種流通感,同時將通常隱藏在幕後的陳列元素帶入銷售樓層,以產生一種運動和喧鬧的感覺,類似於市場的活力。而且,與其他 Today’s Special 商店一樣,設計師嚐試拆除脆弱的填充物並將其簡化為骨架,以突出非裝飾性質和原材料。
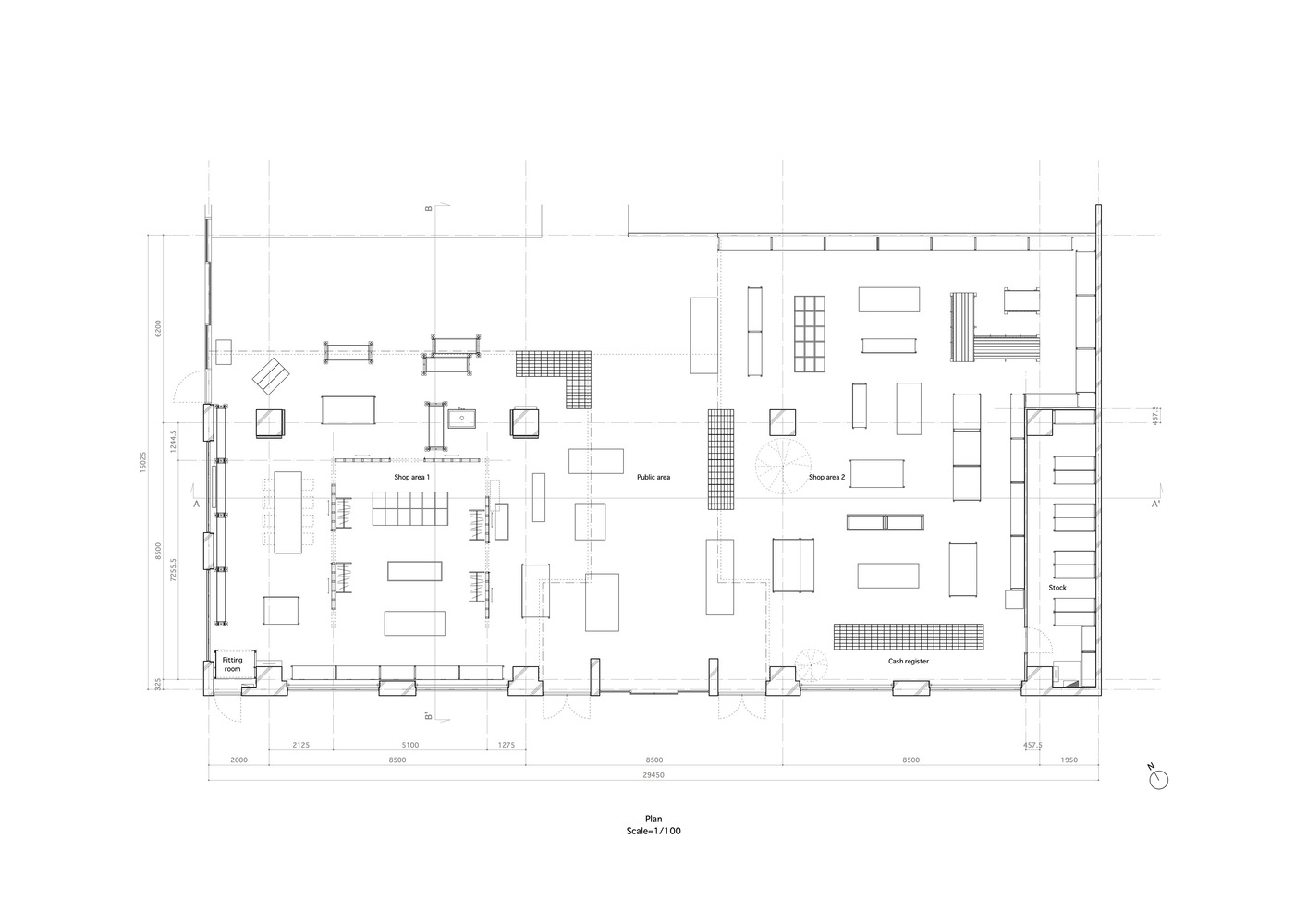
∇ 平麵圖
版權聲明:本站所有文章除投稿授權發布外,其他文字內容均為原創,享有著作權保護,未經許可不得以任何形式進行轉載(包括且不限於:媒體、網站、公眾號等)。所有項目照片/設計圖形版權歸原作者所有。本站部分內容源自網絡公開資源或用戶分享,如若侵犯了原作者的合法權益,可聯係我們進行處理。































