Cumulus Villa是位於巴厘島烏幹沙的一棟熱帶當代風格的家庭別墅。這是一座用來度假、擺脫日常束縛的別墅,建築兩側都有開闊的綠地區域。從建築物內部可欣賞到壯麗的景色。別墅以室外區域為主,不僅有花園,還設有遊泳池、涼亭和樹屋。此外,Arkana Architects傾斜了建築的體量以獲得更廣闊的綠色空間。
對角線形狀還可以讓客廳、餐廳和廚房區域變得更寬。就連客廳也被放置在下層的中間,創造出完美的放鬆空間。花園兩側的景色使客戶可以自由地確定他們的視野方向。在這裏,Arkana Architects使用透明的推拉門。當推拉門完全打開時,設計在一根直線軸線上的兩個綠地區域直接相連,沒有任何障礙。新鮮空氣也可以自由進出建築物。
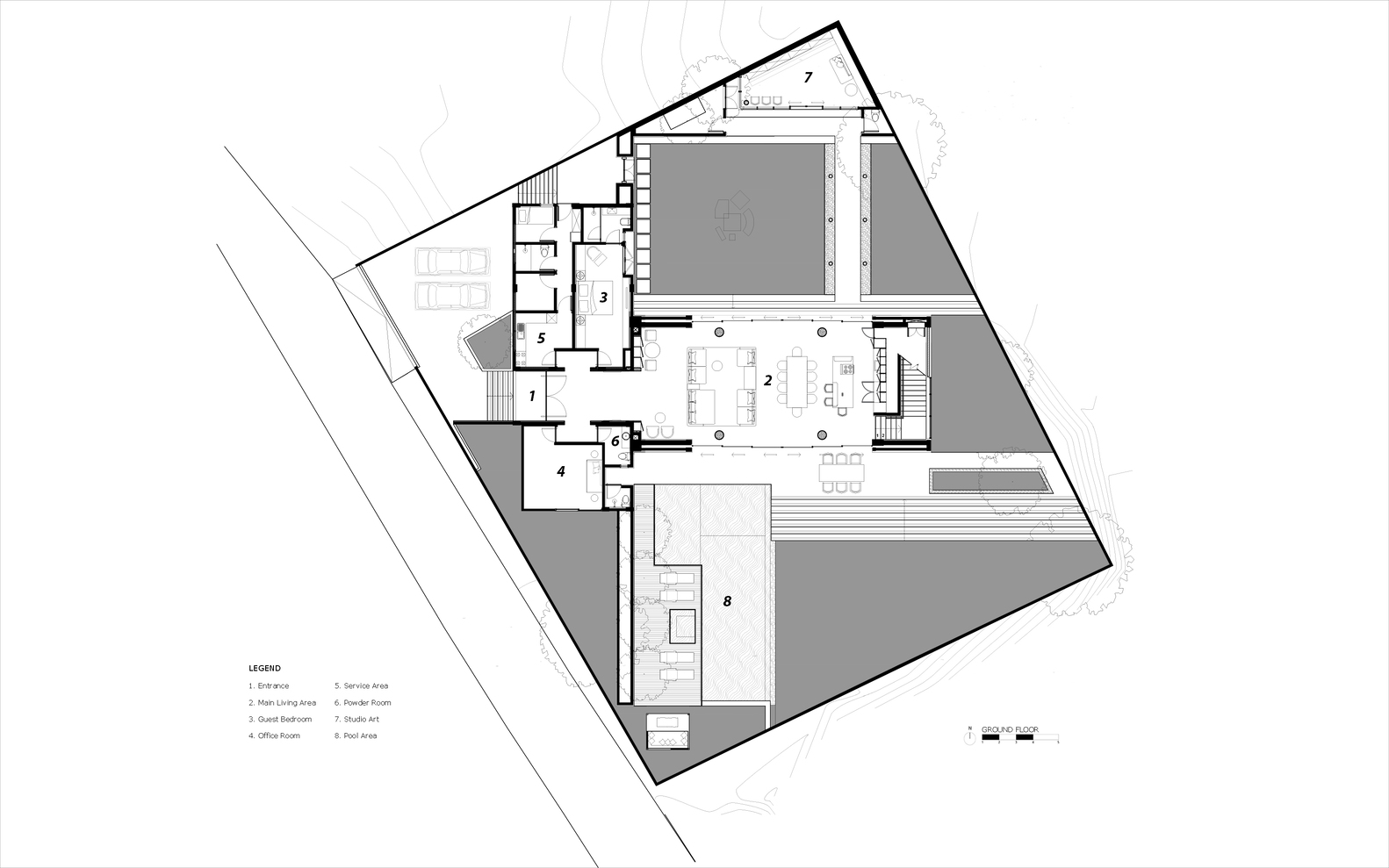
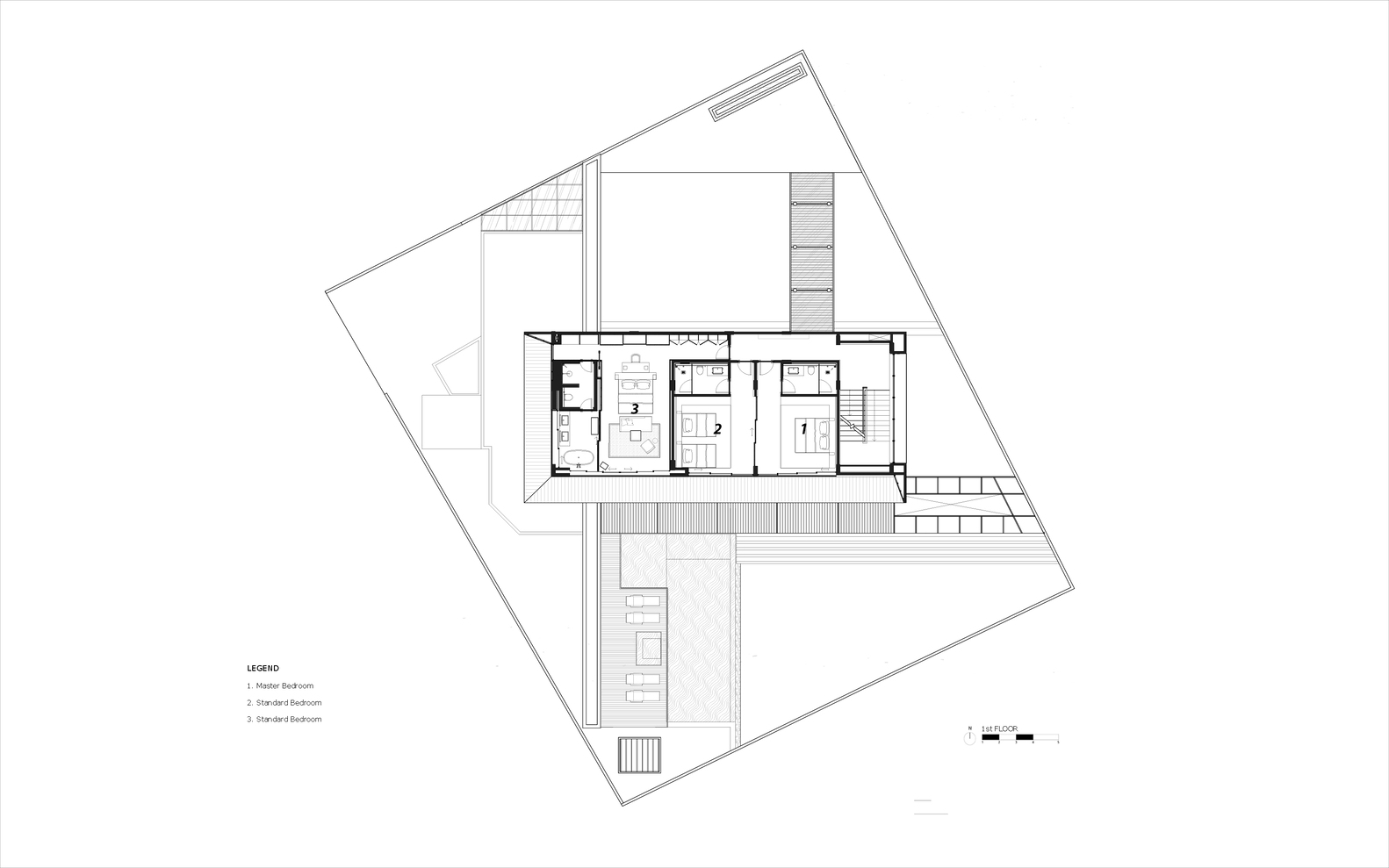
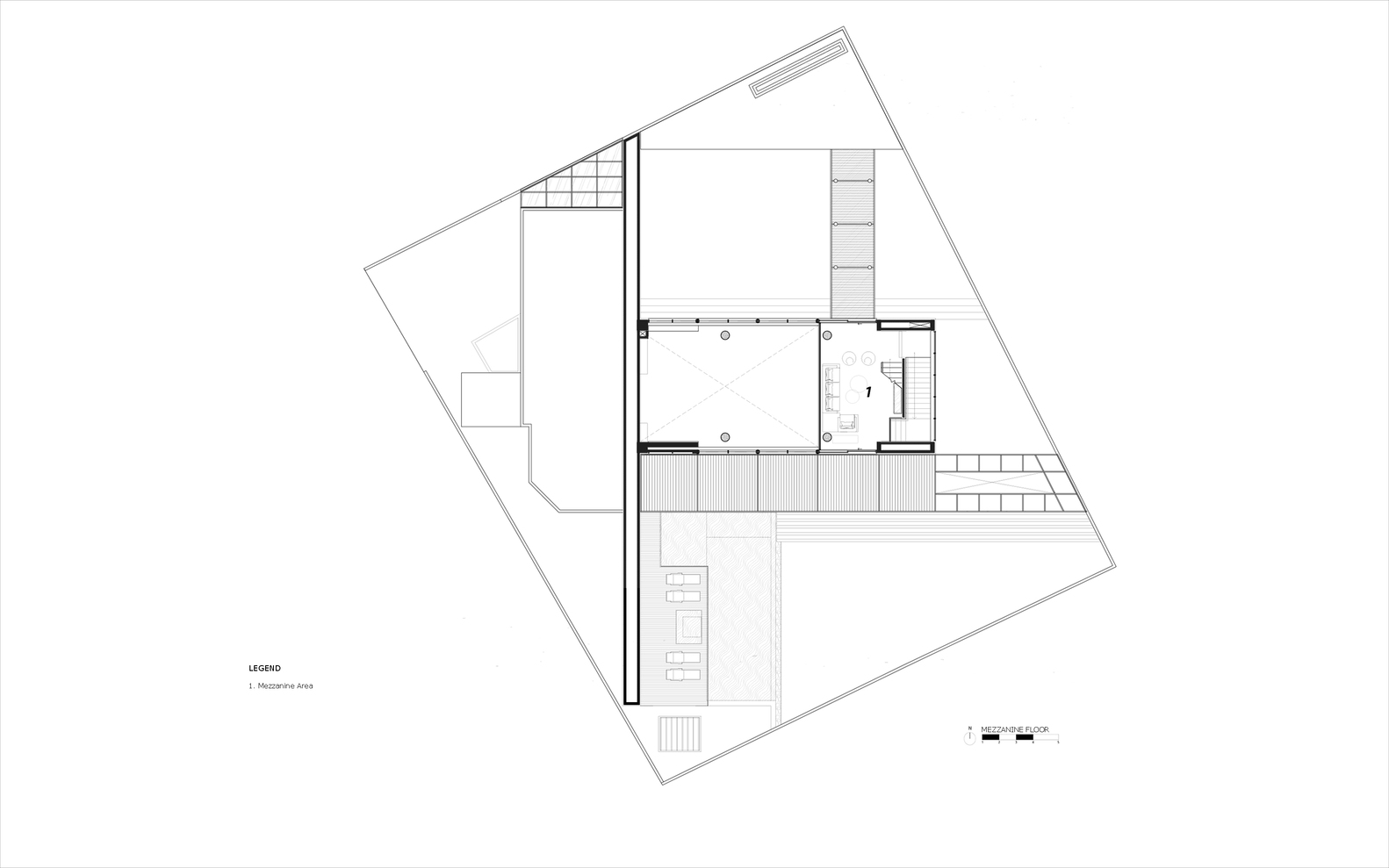
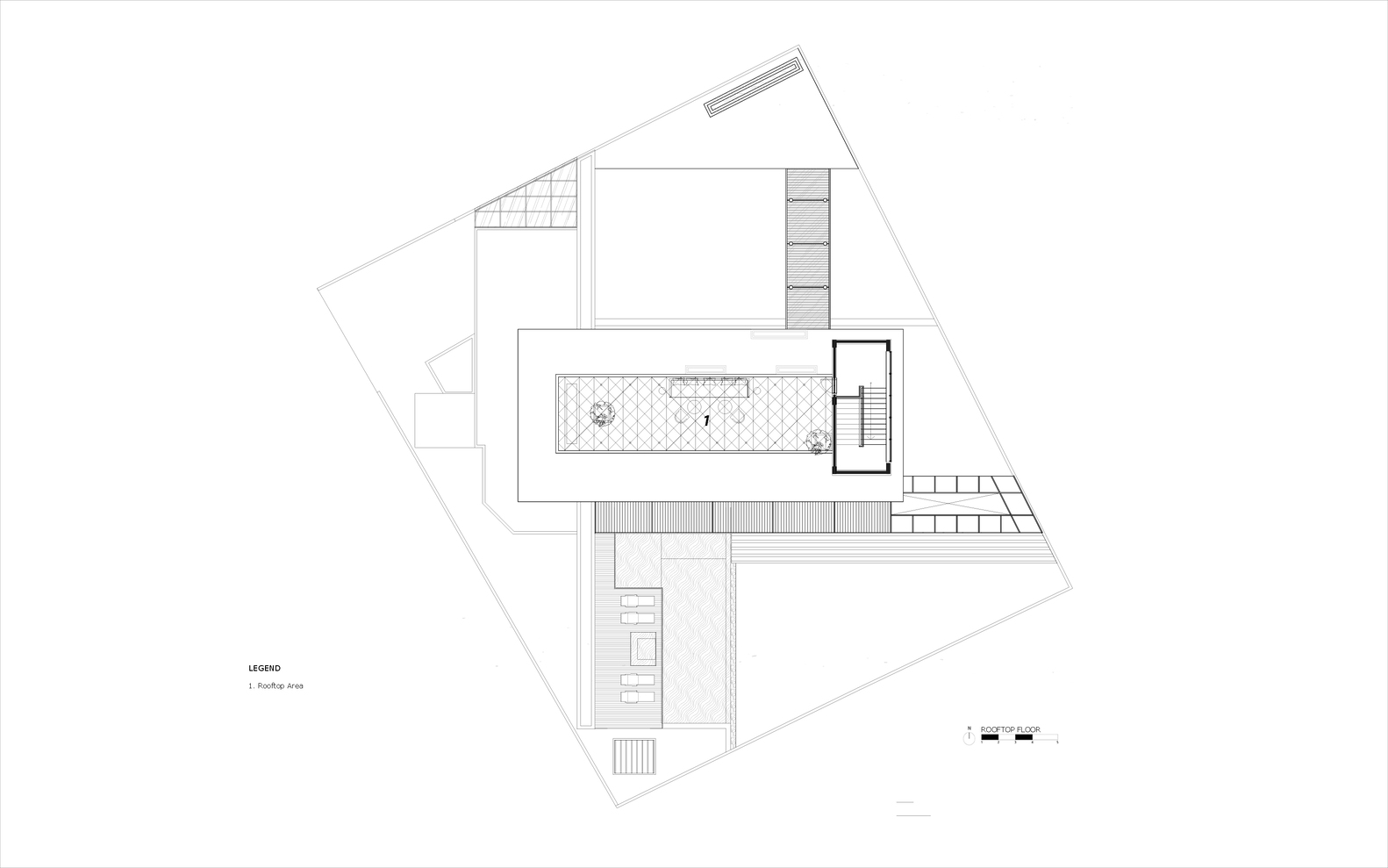
∇ 平麵圖
∇ 軸測圖
版權聲明:本站所有文章除投稿授權發布外,其他文字內容均為原創,享有著作權保護,未經許可不得以任何形式進行轉載(包括且不限於:媒體、網站、公眾號等)。所有項目照片/設計圖形版權歸原作者所有。本站部分內容源自網絡公開資源或用戶分享,如若侵犯了原作者的合法權益,可聯係我們進行處理。












































