成為風景中的“風景”
這是一個位於上海郊區的一層住宅,其中一層建築麵積73m²,院子建築麵積50m²,挑高地下室建築麵積35m²。業主由於要人在外地工作,所以委托我們全案設計並監督項目施工。等住宅完工時調往上海工作,並把母親也接到上海一起生活。
保持生活的溫度
帶有院子和地下室的木子宅,通過原始本質的材料,恬適安謐的空間氛圍,創造出契合居住者本身,溫暖的質樸感空間。
位於一層的客餐廳,能夠直接看見院子。由於空間麵積的局限,設計上將原有走道麵積包覆至室內,同時做了落地窗。引景如室,室內外形成開闊自如的互動。
業主的母親是個樸素的人,喜歡看書,坐墊針線活兒,吃的也很想簡單,紅薯,白粥,一日兩餐。在現場拍攝時也給了攝影師很多的靈感,對於我們年輕人的生活也有很多啟發和思考。
空間構造上用天花的半圓形設計,釋放空間的可視麵。同時天花弧形延伸至牆麵,形成半弧形通道和門洞,牆、頂、地在視野上無盡延伸。
溫暖的楓木飾麵板包裹原始結構牆體,使其區別牆、頂、地,直線的木作板,弧形的水泥麵讓空間在和諧中形成秩序與動感。原木色的家,心懷浪漫也惜人間煙火,不需要繁雜的裝飾。以柔和原木色作為基調溫暖又極具有質感的設計,很好地詮釋了家的溫度。
一半煙火,一半靜謐
柴米油鹽醬醋茶是煙火之味,是生活的本真。廚房地麵使用肌理地磚,具備防滑作用,簡潔實用,空間也因此更有層次。
光為空間塑造情緒
原建築的天井被保留,自然光線通過其漫反射到地下室。走廊連通閱讀區與天井,強化空間光感。光線絕佳處留給閱讀區,L型桌麵簡潔且利用率高。
日常詩性
地下室進門處的休息室,順應空間結構,設計了L型地台結合定製沙發墊。地台與地麵材質統一,增加了視覺延伸感。
空間原結構為地下一層挑高,通過隔離夾層,實現了上下共三層的空間。不同於傳統樓梯與扶手,錯落有致的逃生通道樓梯不僅為空間增加了安全性和趣味性,同時豐富了儲物空間。
天光漫射,氛圍靜謐。天井處放置了一把藤椅,貼合業主的閱讀喜好,讓天井更休閑實用。
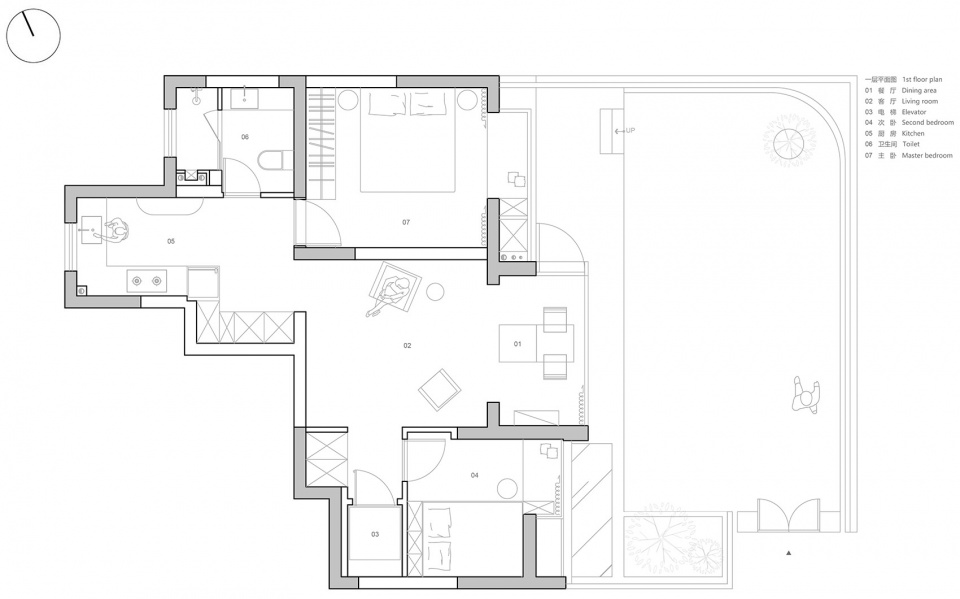
∇ 一層平麵圖
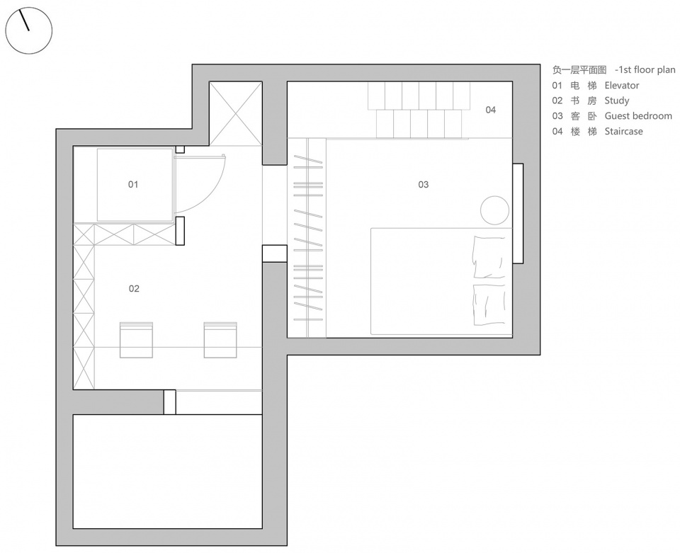
∇ 負一層平麵圖
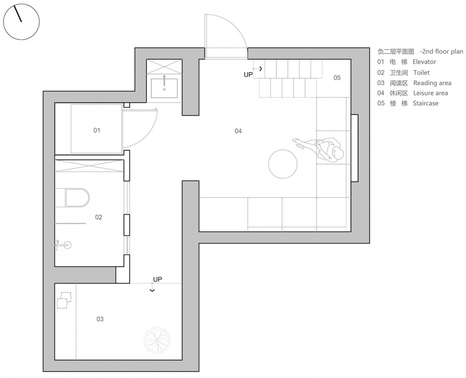
∇ 負二層平麵圖
項目信息
項目名稱:木子宅
設計公司:WUY無研建築
項目地址:上海閔行
建築麵積:130㎡
主持設計師:蘇問
項目完成時間:2022
攝影:ACT STUDIO,源築建築攝影
文字:楊兩隻
主要材料:天然黏土、天然楓木飾麵、微水泥
合作品牌:樓匠,築木集,T-Touching,COMO3,ACC






























