這是一次關於什麼是學校,什麼是教育的自問自答。
我的小學在北京的胡同裏,是一片由平房圍合而成的院落空間。每個教室就對著院子,大一點的院子有五六個班,小一點的隻有兩三個班,一下課大家都跑到自己院子裏玩,熟悉而有安全感。院子裏有著很高大的樹木,夏天,房子和院子都掩映在蔭涼下,而到了冬天,葉子落光,陽光又穿透枝幹灑進房間。記憶裏鳥啊蟲啊是每天都來的,偶爾還會有小刺蝟來到這裏,觀察和體驗是課餘生活的主旋律。院子跟教室感覺是連在一起的,共同組成了我們學習玩耍的地方。這樣美好的童年體驗是我對學校最初步的認識。
教育這回事則要從上一個虎年說起,我有了孩子,隨著生存問題漸漸歸於日常,他變成人類的速度超過了我對他了解的速度,迫使我不得做出種種選擇,那一刻我突然意識到,我對另外一個生命的人生似乎有所責任,對於他如何成長和長成什麼樣子的幹預程度是我需要一直思考的課題。在書架上網絡中鋪天蓋地的教育真經裏,在名人泰鬥們的教育經驗中,“興趣”是出現頻次最高的關鍵詞,發現並培養興趣的契機顯得尤為重要。
機緣下,我們接手了北大附中本校改造和某分校以及一土學校初中部兩個項目的設計。
∇ 北大附中本校區綜合樓、學生食堂、室外校史館、教師咖啡館、健身房 © 大料建築
∇ 北大附中某校區設計方案 © 大料建築
北大附中作為北京“卷中卷”的海澱六小強之一,在十幾年前就開始了走班製的探索,這種以“平台”為教育本質的模式,最打動我的是這裏師生的生命狀態,學生們在這裏往往比同齡人提前幾年認識了自己和世界真實的樣子,而這裏的老師,我相熟的從校長到老師都充滿理想和熱情。而通過一土學校初中部的設計,也讓我認識了另一種類型的私立學校教育模式和可能性,每一位學生身體和人格上的健康得到了充分的重視和培養。
∇ 一土學校初中部 © 大料建築
也源於這些不同類型學校的認識和設計,讓我對教育有了更廣闊的理解,慢慢建立了我的教育觀“先吸引,再引導,助堅持,共成長”。
回答的開端
在對教育這件事有了更整體的認知以後,我們又迎來了一次學校設計的挑戰。這次是為樂知現代教育產業園的設計一所小學,場地位於廣西南寧近郊的一片新開發區域,小學計劃在2021年9月正式開學。
結合以往的感受和經驗,我們發現在小學階段,與通常“老師對學生傳教解惑的學習方法”相比較,“孩子們之間的相互影響和模仿”似乎是更加有效和自然的學習方式。也就是我們常說的潛移默化。為此,我們希望能夠為孩子們提供更多的交流機會,這種交流不僅是學生之間,師生之間的,也是人與自然之間的,甚至與自己內心之間的交流。
於是,為了快樂生動的上學體驗也能夠延續到現在的孩子們的童年裏,這所學校在設計層麵除了滿足相應的教學功能外,我們便要營造更有吸引力和探索欲的空間。勾畫或動或靜、或相聚或獨處的場景,為孩子們興趣的發現與發展創造條件,也為塑造他們強健的體魄和完滿的人格提供場所,這也變成了我們建築設計的核心任務。
站在巨人肩膀
在項目開始之前,我們還是和以往一樣先去探究“巨人”的樣子,企圖能夠跨過校園建築發展的時間性,站在巨人的肩膀上摸索孩子們真正需要的學校的模樣。
時間倒回文藝複興時期,歐洲地區坐落在城市或鄉間的修道院是當時最先進的學術科研機構,它鼓勵對於知識的探索和傳承,也承擔了更多的社會責任與公共職能。作為與校園最為相似的建築環境,修道院利用回廊給教學和空間都賦予了更多積極意義,為特定生活群體構建了一個自給自足式的烏托邦,這正與現代教育體係所追尋的理想的教育意義相吻合。
而差不多同時期甚至更早的中國傳統書院,除了同樣在意教學功能外,因為受到“天人合一”思想的浸潤,還蘊含著對於自然的崇尚與追求。書院在規整嚴謹的空間軸線秩序下,通過建築圍合出層級豐富、互相滲透的院落空間,將庭院作為教育發生的第二場所,注重自然環境對學生的熏染和刺激,重構建築與自然、人與自然之間的關係,以空間形態去承載豐富的精神內涵。
∇ 左:歐洲文藝複興時期修道院;右:中國嶽麓書院
時間線上離我們更近一些的東海大學,它的校園規劃將中西方兩種學校空間形製進行了巧妙的結合,校舍作為典型的合院回廊式學院建築,沿景觀軸線豐富院落組合。並通過院牆結合草坡、樹木等自然環境靈活地組織公共活動空間,連續開放的界麵更加注重庭院的流動性,形成了現代化的中國校園建築,創造了清幽雅靜的環境氛圍。
∇ 東海大學
在充分汲取經驗之後,我們意識到這個設計或許不該隻是一所學校,它也可以是一個到處都充盈著教育公共性的公共空間,學習與教育在這樣的空間中能夠如天上月光般,不動聲色,不遺餘力,不知不覺,不可或缺。
掩映於樹影下:學校
首先,學校整體采用書院式布局,錯落有致三進院落相互交錯,圍合式布局為院落空間帶來更多的靜謐與安全。與此同時,根據南寧當地夏季以東南季風為主、冬季以東北季風為主的季風特點,增加東南和西北開口,保證夏季的空氣流通,並封閉院落空間東北角,在冬天減少冷空氣進入庭院。
∇ 平麵氣候分析
在平麵功能的劃分上,我們把普通教室、功能教室、辦公室等主要功能分散交織布置,建築圍合出院落,三個院落組團相交彙的地方我們設置為圖書館,使其形成開放的中心,方便師生經常來到這裏讀書學習。
此外,麵對學校要容納約1800人的建設條件,我們仍然降低了建築層數,整體建築以兩層為主,減少上下樓時長,為孩子們接觸自然提供更多便利條件。相對低矮的建築,也能夠為內院空間和建築帶來更多的風光雨露,隨著院落內樹木逐漸長高,直至超過建築,使得整座校園掩映林中,樹影婆娑,輕鬆愜意。
∇ 降低建築層數
交織動靜氛圍:庭院
我們將所有普通教室都布置在一二層,並在教學樓內設置了數量眾多的樓梯,故意不給建築設置固定出入口,使走廊與院子直接相連。如此一來,庭院的可達性就會有顯著地提高。即使課間休息隻有十分鍾,學生們也可以輕鬆到達各個庭院。庭院尺度不同,氛圍也不盡相同,校園中動態與靜態可同時存在且互不幹擾。
∇ 三個不同尺度、不同氛圍的庭院
麵積最大的庭院空間開敞,因此設置了更多運動設施與場地,院子中,孩子們在單雙杠上拉伸嬉戲,在籃球場上酣戰,或者隻是互相追逐奔跑,這樣的場景也給空間賦予了更加動態的氣質,學生與學生之間的交流因為運動變得愈發密切。
中等尺度的院子是一個能夠一起上寫生課、共同做戶外互動小遊戲的庭院,院中有一條滿足穿梭需求的蜿蜒小路。相較於運動庭院的活潑,這個庭院的節奏更加緩慢輕鬆,學生與老師、課堂之間的關係不再嚴肅,學習與教育的氛圍由此愈發鬆弛健康。
第三個庭院因為大量的植物種植顯然更生機勃勃,綠色起伏裏站著一棵大樹,風吹葉響,孩子們在樹下唱歌,和同伴說悄悄話,或者隻是趴在草叢裏觀察小小昆蟲,為自然中發生的每個細微變化而歡慶,靜悄悄地與自然發生更多對話。
模糊空間邊界:走廊
圍合院落的每一座單體建築都像一棵巨樹,與庭院裏高高低低的植物樹木交相應和。出簷深遠的屋頂,給教室帶來了更多的蔭涼,也撐起了寬大開敞的走廊,能夠在陰雨或暴曬的天氣裏為孩子們提供活動場地。
∇ 大屋頂概念圖
“回”型走廊將教室、辦公室等功能空間環繞其中,空間兩側均開設門洞,師生可以從不同方向走出房間,沿著教學樓轉圈連通的交通流線活動,直到最終相會。這樣的做法一方麵整合擴大了傳統交通空間,緩解功能集中所帶來的交通壓力,更重要的是能夠製造更多相遇和交流。
∇ 轉圈連通的走廊與交通流線
走廊亦成為了教學空間的擴展和延伸,廊上擺乒乓球台三兩張、座椅七八把, 在此學習、社交或者遊戲都變得合理,此時空間的使用邊界開始模糊,場地性質變得更加豐富多元。我們希望能通過空間設計將學習這一行為不局限在教室中,而學校也不僅僅隻是進行上課的地方。學習可以發生在教室中,可以發生在走廊裏,甚至延伸到庭院當中,使孩子們從被動接受教育轉化為主動自發地進行自主學習。
感受陽光和風:教室
我想,追求自然不該隻在意植物的生長,也需要關注陽光和風。
教室安置於屋頂之下,雙向采光,雙向陽台,帶來了通透的空間感受,也帶來了通透的視線交流。孩子們通過巨大的窗口能夠看到老師們在課堂之外的樣子,也可以觀察心儀的隔壁班男孩女孩什麼時間會從窗前走過。視線的交流在拓展空間的界限,也在打破各種各樣的隔閡和警惕。
坡屋頂之上,懸浮一拱頂。我們在拱頂和坡屋頂之間開窗,形成煙囪效應,利於熱空氣排出,在不需要空調支持的情況下就能感受到風在流動。教室內的拱頂空間則為教室提供了一個夾層,可以作為圖書角使用,也同樣拓展了教學和休息之間的邊界。
∇ 教室裏的拱頂空間
有些建築靠著震撼打動人,有些建築靠著溫柔觸動人。我們希望這座建築形成的巨樹,成為一片寧靜而豐富的獨立森林。這裏不一定是座學校,它隻是一個公共環境,是平台,公共教育的平台。老師和孩子們共同鑄就著教育公共性的同時,也被教育的公共性照亮,認知自我,找到自己的才能,發展自己的才能。
一晃眼,我的小孩今年小學畢業了,他在送給幾個要好的朋友的畢業書上,為每人寫了一段話,其中有一段我很喜歡。他跟我似乎沿著我們相互形成的教育觀共同成長著,師如月光,黑夜裏看清自己。
在漆黑如墨的大道上,
它射出了一縷淡黃色的月光;
在腳銬與鎖鏈生鏽的監獄中,
它推到了曾久久屹立的鐵門;
在輕煙環繞的神聖殿堂裏,
它點燃了上帝的火把;
在淺藍色的農場外,
它挖出了深長的隧道——
它生於古老之中;
它視古老之物為敵;
它將古老的一切打敗;
它死在古老之中,化為古老之物——
它是人性,也是藝術。
∇ 項目手工模型
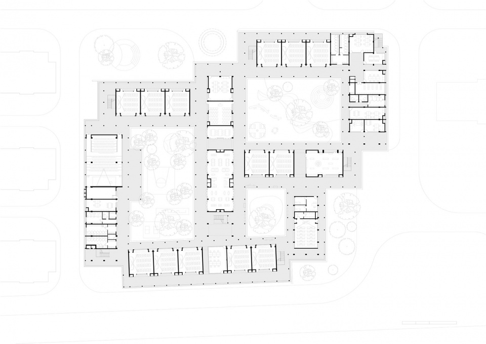
∇ 首層平麵圖
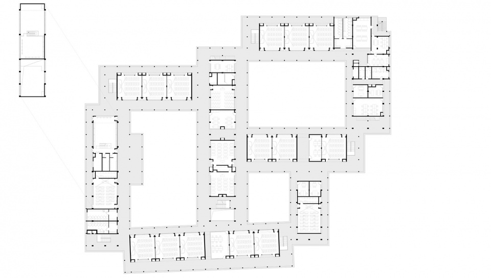
∇ 二層平麵圖
∇ 三層平麵圖
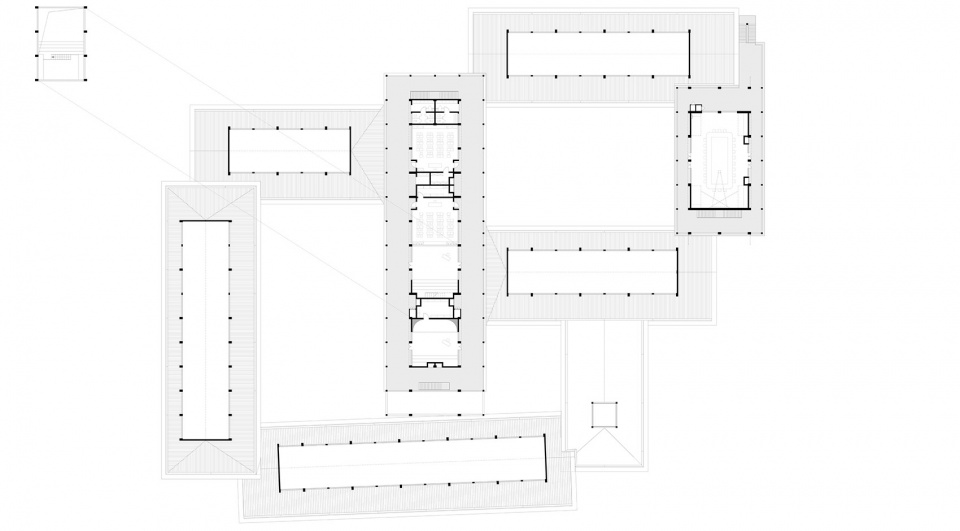
∇ 屋頂平麵圖
項目信息
位置:廣西,崇左
時間:2019-2022
功能:學校
麵積:12000㎡
業主:崇左市樂知新學道高級中學
建築+內裝+景觀的方案及擴初設計: 大料建築 (劉陽,胡驀懷,孫欣曄,段琦,丁月文,方正欣)
施工圖設計:中物聯規劃設計研究院
植物設計:簡思鍵
標識設計:SURE Design 爍設計
攝影:朱雨蒙































































