閣樓位於阿姆斯特丹北部的KNSM島上,原建築是一間海港酒吧的一部分,經由荷蘭Marc Koehler建築工作室改造成聯排式的閣樓住宅。閣樓的前後兩側為落地玻璃窗,有利於室內空間的采光和通風,也便於觀賞室外的景色。整棟建築內部空間被劃分為不同格局的小閣樓住宅,以供不同喜好的業主選擇。設計師並在建築內設置了一條小型的“街道”作為多功能生活空間的活動區域,如打球、聚會、洗滌和工作等。
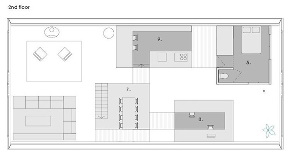
單個閣樓的內部麵積約為160平方米,內部為通透、開放式的格局,分為上下兩部分空間,一層的客廳占據了很大一部分空間,其他區域被設置成收納空間和臥室,二層空間為廚房、餐廳、工作區和臥室,設計師做如此空間布局的目的是:發揮二層空間最大的功能性,以獲得更加親密、私人的大型開放式客廳空間。
Marc Koehler建築工作室官方網站:Marc Koehler
Photos © Marcel van der Burg
Content Copyright © www.online4teile.com
版權聲明:本站所有文章除投稿授權發布外,其他文字內容均為原創,享有著作權保護,未經許可不得以任何形式進行轉載(包括且不限於:媒體、網站、公眾號等)。所有項目照片/設計圖形版權歸原作者所有。本站部分內容源自網絡公開資源或用戶分享,如若侵犯了原作者的合法權益,可聯係我們進行處理。

































評論(3)
真棒
來瞅瞅啦~