新加坡 / 咖啡廳 # Wynk Collaborative #
Alchemist Coffee的空間設計理念是在緩坡上建一個木涼亭,為路人提供庇護和休息的地方。位於新加坡烏節路拐角處的一個有遮蔽的露天空間,位於最繁忙的購物街之一的購物中心之間,旨在成為該地區喧囂中的一片安靜的綠洲。
木亭的想法主要是由於場地麵臨的挑戰之一:分配給咖啡廳的空間僅占據其所在室外結構的下半部分,上半部分由另一家餐廳使用。設計師的幹預措施必須在視覺上從現有結構中脫穎而出。通過展館的想法,創建了第二個“屋頂”,使咖啡廳空間在視覺上與主體結構分離。選擇木材作為調色板的主要材料(與最小結構的深灰色和玻璃形成對比)也有助於視覺分離。
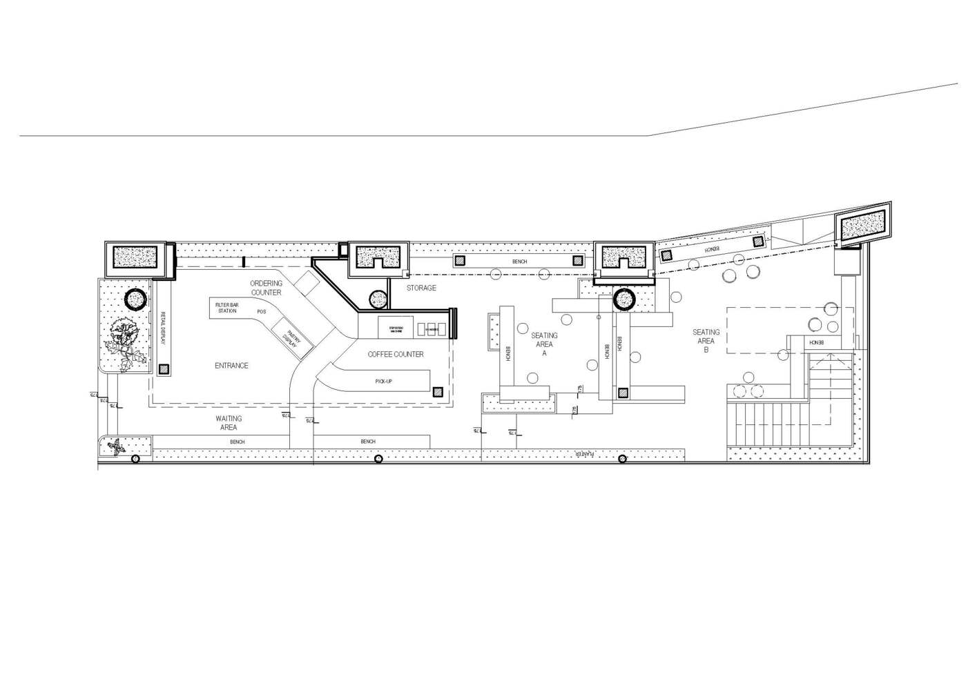
木質涼亭迎接從主路走來的顧客,配有景觀花盆和帶照明的網格天花板,標誌著空間的入口區域。這裏設有零售區、展示糕點的訂購櫃台以及顧客等候椅。
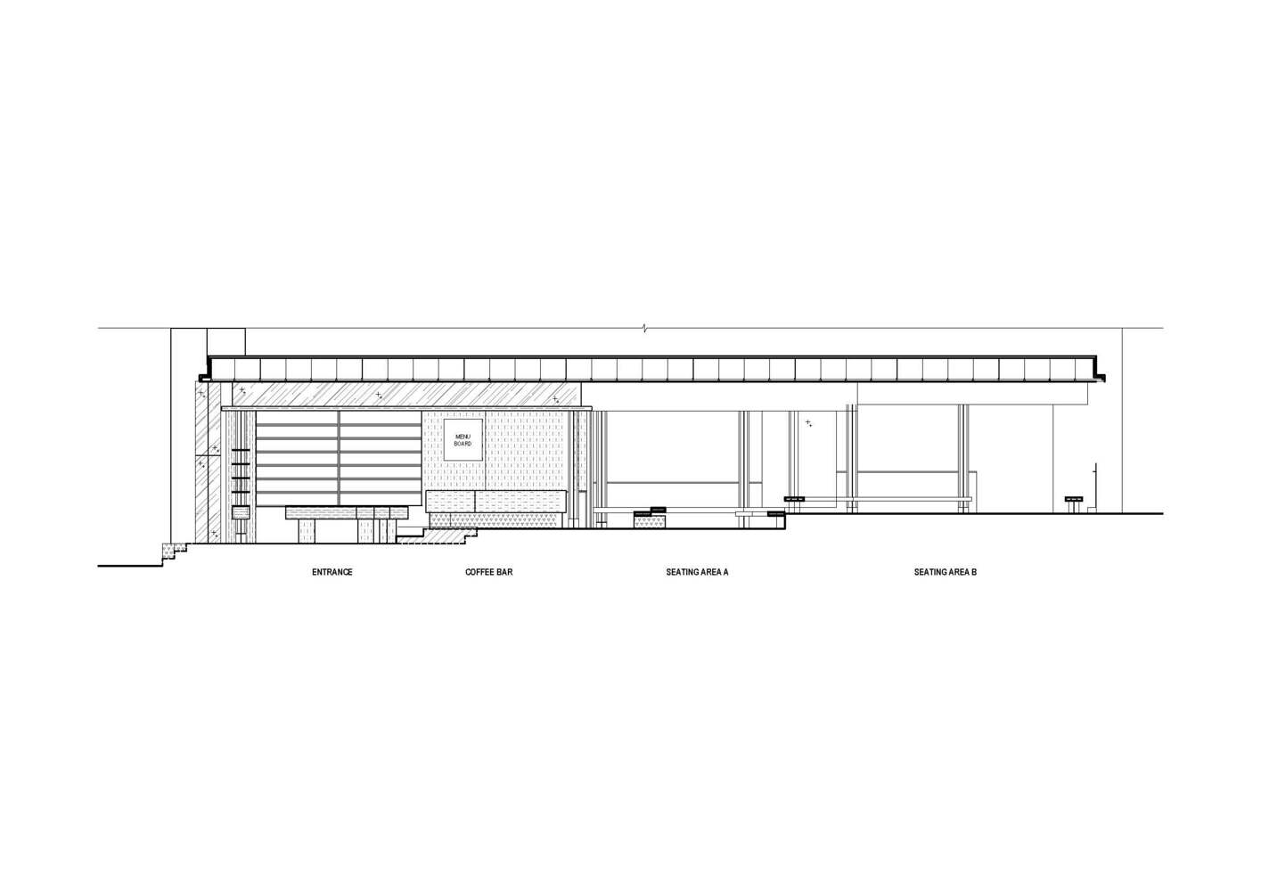
當顧客進一步走進空間時,空間沿著不鏽鋼咖啡櫃台逐漸變細,通向座位區,這些座位區由一係列建在傾斜地形上的露台平台連接起來,上麵覆蓋著抽象的木結構組合,形成了長凳。並將空間鬆散地劃分為更小的私密區域,同時仍然允許空間中的視覺孔隙。
這是由於在場地上遇到的另一個挑戰,法規不允許空間的任何部分從外部完全封閉,即使有透明的玻璃牆,這樣大多數垂直表麵要麼必須是開放的,要麼是高度多孔的。設計師必須設計它,使其具有封閉感,同時保持空間內部和外部的透明感。
景觀元素與木結構相互作用,相互重疊,將柔軟的有機元素與直線和工業風格融合在一起。
∇ 平麵圖
∇ 剖麵圖
版權聲明:本站所有文章除投稿授權發布外,其他文字內容均為原創,享有著作權保護,未經許可不得以任何形式進行轉載(包括且不限於:媒體、網站、公眾號等)。所有項目照片/設計圖形版權歸原作者所有。本站部分內容源自網絡公開資源或用戶分享,如若侵犯了原作者的合法權益,可聯係我們進行處理。




















