作為同類建築中的第一座建築,寵物資源中心是動物護理行業的一場革命。由於有意省略了寵物舍和籠子,其功能在很多方麵與動物收容所相似,但其基本理念卻截然相反。
Best Friends Animal Society 的目標是到 2025 年實現不殺戮。為了實現這一目標,他們必須設計一種替代方法來顛覆這個擁有 150 年曆史的行業。
在數據的驅動下,他們正在建設基礎設施,將動物從該國人口過剩的地區運輸到服務不足的地區,並將寵物安置在當地的寄養家庭中,而不是把它們關在不利於健康和行為的寵物舍和籠子裏。
這座建築沒有隱藏在城鎮邊緣,而是位於市中心,所有人都可以輕鬆看到和訪問。它設有一個為途經動物和當地救援提供服務的醫療中心、一個為當地人提供參與活動的社區中心以及一個為所有養父母和動物提供支持的中心。與小貓一起編織、寄養星期五和收養星期六等活動使他們與社區保持聯係,並使之成為全球未來的典範。
∇ 區位圖
∇ 設計概念圖
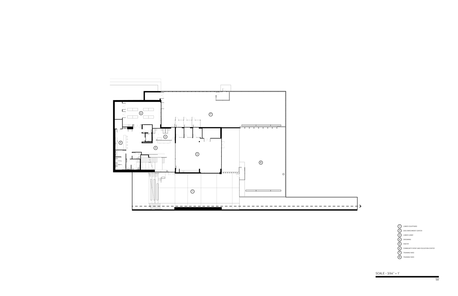
∇ 平麵圖
版權聲明:本站所有文章除投稿授權發布外,其他文字內容均為原創,享有著作權保護,未經許可不得以任何形式進行轉載(包括且不限於:媒體、網站、公眾號等)。所有項目照片/設計圖形版權歸原作者所有。本站部分內容源自網絡公開資源或用戶分享,如若侵犯了原作者的合法權益,可聯係我們進行處理。











































