由心而生,打造舒適如家的醫療空間體驗
隨著全民健康意識從“治已病”走向“治未病”,養防結合的健康需求成為當下健康生活方式的主流,心髒作為人體的生命之源,所需的專業幹預變得越來越重要,與之相配套的心髒康複醫療門診,正逐漸被重視和推廣。
傳統印象的診所空間是怎樣的?冷清呆板的問診大廳、封閉單一的診室、冰冷無色的治療器械。在JYDP間睦設計看來,現下的診所空間需要一些新的設計語言。
∇ © JYDP間睦設計
在位於上海浦東濱江的永馨康複診所中,JYDP間睦設計跳脫於傳統門診的“刻板印象”,利用弧線造型、開放隔斷、通透材質,使空間流暢緩和並擁有更多的可能性,為患者提供一個舒適如家的康複環境。
#01 打破範式,從心出發
{Start with the heart}
在設計概念上,由心而生,以“心髒”作為空間的發散點,對品牌LOGO的視覺符號進行解構和轉譯,生成空間的多元形態。
∇ 品牌標識 © JYDP間睦設計
在空間形態上,以曲線的設計手法激發視野深層次的連接。位於一層的空間中,根據“心”型交錯的曲線理念,采用曲線型形態規劃,讓原本並不開闊的空間在無限流動中重構空間的延伸感,隔而不斷。
∇ 設計前 © JYDP間睦設計
∇ 設計後
在空間基調上,以負責全身血液流通的血脈作為空間底色,動脈為紅,靜脈為藍,紅色代表了熱情、鮮活、溫暖,藍色代表了穩定、專業、安全,兩色的穿插交疊,造就空間動區與靜區的情緒色彩。
在功能布局上,采用色彩與材質區分不同區域,建立動靜交融、舒適平和的空間體驗。紅色動區為患者進行評估、監測、運動康複的功能區域,藍色靜區為醫生、患者、家屬等群體提供接待、休憩、問診的共享區域。
∇ 樓層功能分布圖 © JYDP間睦設計
在動線規劃上,結合現有空間結構,JYDP與客戶多次研究和深入探討就診流程的流暢合理,發現從接待、問診、評估到治療上存在共通性,即在評估時和治療時均需患者進行運動。基於此,擁有三層樓的建築空間中,其中一層和二層都設置相同的功能區,即運動區、更衣室、淋浴室、衛生間,為患者提供人性化的醫療服務體驗的同時,讓空間形成更清晰高效的流程閉環。
#02 流動生長的“紅藍”與“弧”
{Fluid red and blue curves}
∇ 接待前台
在首層的設計中,紅藍漸變成為空間入口的第一印象。在接待區與休閑區之間,運用不同材質、顏色打造區域上的串聯、交接,紅色吊燈裝置穿透至藍色門洞,圓潤的線性與方正的體塊營造視覺上的通透性和一致性。
紅藍的撞色搭配使得空間靈動活力,中性色的過渡亦不可或缺。一反以往醫療空間的純白和鋁扣板帶來的疏離感,米色從膠質地麵生長蔓延,幹淨而溫和,肌理漆的豐富麵層突顯舒適的柔霧美。
∇ 一樓評估與谘詢
品牌視覺符號轉譯為當下的空間形態,以“心形”的幾何形態具象為半圓與半圓上的空間交疊,即休閑區與心髒評估室共同構成空間的流動路徑。弧線造型引導著人們深入其中。
在心髒評估室,整個空間以弧線造型呈現,從透明的玻璃隔斷、天花的弧形燈帶到隔音板牆飾,鮮活的紅調讓原本機械和衛生的環境,增添了輕盈感和舒適感。
∇ 評估室可以指導評估的動態屏
考慮到該區可滿足醫生對多位患者同時進行多項評估,米色窗簾順應天花的方形軌道,分隔成三個不同項目的評估區域,為患者提供適宜的私密性和安全感。當然,窗簾向一旁拉開時,原本封閉私密的空間靈活轉換為開放的場域。即使是身處接待區、休閑區的醫生、家屬,也可實時觀察到心髒評估室的患者狀態。
∇ 評估室可私密可敞開
除了醫療規範所需的固定診室,在整體的空間設計上,以場景需求為主,將ABW靈活辦公模式與醫療空間實現創新性融合。診所員工可根據日程事務需求選擇合適的地點進行“移動”辦公,更為貼合診所對打造人性關懷的服務需求。通道作為附屬空間轉換為第三空間,實現各個區域的連接作用,讓空間過渡自然無痕。
∇ 一樓通道 © JYDP間睦設計
休閑區順著落地窗的走向排布,自然光賦予空間靈動跳躍之感,溫潤米色搭配沉穩藍調,拉近醫生與患者、家屬的社交距離,創造友好放鬆的溝通氛圍。相較於休閑區的開放,後方的商務休息區以更淺的藍調呈現,半包圍的模塊組合桌椅,相對私密的對話氛圍由此生成。
∇ 一樓休閑區
#03 指引路徑的“光”
{Light guides the route}
∇ 二樓通道,隔而不斷
建築現有空間的電梯,成為上下樓層相互連接的樞紐。二層電梯沿左右分設主次通道,屏風的隔斷特性形成診所員工與患者內外有別的動線。休息區設置在通往診室的通道上,高腳桌椅可供患者短暫休憩,也可供醫生靈活辦公。
∇ 二樓通往康複大廳的通道
∇ 二樓診室及康複訓練大廳
直徑向內,不同於以往醫療空間的平行排列造成診室通道的單一和狹窄,在層樓麵積有限的條件下,以半圍合的聚集形態構成獨立的診室區域,挑高的圓形天花燈幕投射下引導性光源,引領人們去往診室。
∇ 診室穹頂
柔和光影穿過木門,是象征靜區色係的藍調診室,靜謐潔淨的環境一定程度上緩解患者內心的不安和焦慮。
∇ 診室
#04 植入“巨大的紅框”
{Insert huge red frames}
∇ © JYDP間睦設計
康複訓練大廳圍繞中心的多功能休閑區,順沿牆麵、落地窗劃分為阻抗訓練區、有氧訓練區、團體訓練區。在三大區塊分別植入“巨大的紅框”,隱去消防通道與藏板間的同時,打破空間視覺上的平靜,既作為空間功能的延伸,亦成為空間內流動著的立體結構。
∇ 康複訓練大廳
多功能休閑區采用模塊化的概念,令其可以無限擴展場地功能的可塑性,配置多種組合的家具,或可作為患者訓練時的休息區,或可作為多人訓練課程的場地。
∇ 培訓模式&公共訓練模式
#05 構建後場的舒適體驗
{Build a comfortable experience in the back area}
隱於公共區域後的空間,亦能感受到溫暖。穿透紅藍漸變玻璃的光線照射在後場的通道上,讓空間變得更加有趣和平靜。在統一色係的標識下,走向更衣室、淋浴室、衛生間,牆地一體的水磨石界定著後場的區域感,暖灰條紋磚和木質紋理門給予感官上的親和力。
∇ 一樓後區通道
∇ 二樓後區通道
從海內外市場調研到室內空間設計,再細化到空間的標識設計、就診流程的動線設計,JYDP以其在醫療空間領域的專業執行力和提升空間美學性的設計思維力,突破受限的醫療規範,平麵化的設計語言走向立體化的表達,創造一個傳遞柔性關懷、開放友好的醫療康複空間。
∇ 漸變色建築外立麵
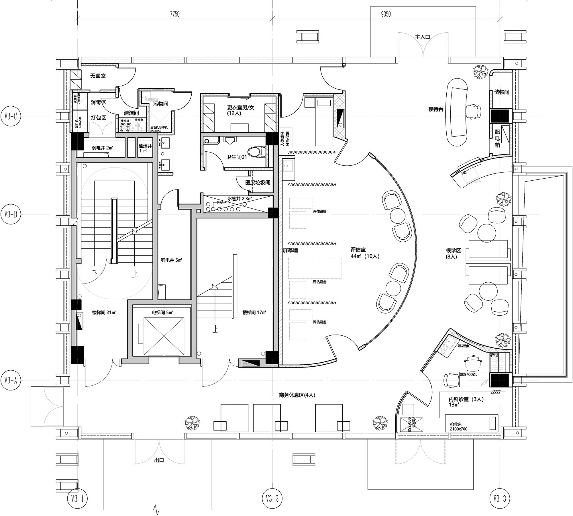
∇ 一層平麵圖 © JYDP間睦設計
∇ 二層平麵圖 © JYDP間睦設計
項目信息
項目名稱:永馨康複
項目類型:醫療門診
項目地址:上海市濱江大道257弄6號V3室
建築麵積:810㎡
設計年份:2022
完成年份:2023
設計公司:JYDP間睦設計
設計團隊:Michelle Sun、Leah Li
項目攝影:Yuuuun Studio










































